埼玉県三郷市早稲田6丁目(三郷駅)の賃貸:物件詳細
交通 所在地 |
駅徒歩 |
賃料 管理費等 |
敷金/保証金 礼金 |
間取り 面積 |
物件種目 築年月 |
|
JR武蔵野線/三郷
埼玉県三郷市早稲田6丁目
|
15分
|
7.5万円
-
|
1ヶ月 / なし
1ヶ月
|
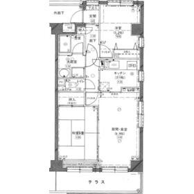
2LDK
54.92m²
|
賃貸マンション
1988年10月(築37年3ヶ月)
|
ペット相談、分譲タイプ、常時ゴミ出し可能、角部屋、南向き、閑静な住宅街、外観タイル張り
|
|
間取図
|
外観
|
<
その他の画像
>
|
|
|
| 交通 | JR武蔵野線 三郷駅 徒歩15分 |
|---|
| その他の交通 | JR武蔵野線 新三郷駅 徒歩16分 |
| 所在地 |
埼玉県三郷市早稲田6丁目
|
| 物件種目 |
賃貸マンション |
| 賃料 |
7.5万円 |
管理費等 |
- |
| 敷金 / 保証金 |
1ヶ月 / なし |
礼金 |
1ヶ月 |
| 敷引 |
- |
保証金償却 |
- |
| その他一時金 |
- |
保険等 |
要 2年 23,100円 借家人賠償責任付保住宅総合 |
| 維持費等 |
- |
| 間取り |
2LDK(和 6 洋 5.2 LDK 12) |
専有面積 |
54.92m² |
| 築年月 |
1988年10月(築37年3ヶ月)
|
階建 / 階 |
6階建 / 1階 |
| 建物構造 |
RC |
総戸数 |
30戸 |
| 主要採光面 |
南 |
駐車場 |
- |
| バイク置き場 |
- |
駐輪場 |
- |
| 建物名・部屋番号 |
グリーンパーク早稲田Ⅲ |
ペット |
小型犬可・ 猫可・ 但し礼金2カ月になります。 |
| アピールポイント |
お探しの方には嬉しいペット(小型犬)相談可。広々とした延床面積54.92㎡の居室空間、更に居住空間を広く感じさせる専用庭付だから、住スペースと心の両方にゆとりがもてます。また閑静な住宅街の住戸で、その上お出かけの多い人も助かる常時ゴミ出し可の住戸だから、季節外れの大掃除でもゴミを出しにいけます。ちなみに素材を均一に温められるIHクッキングヒーター付です。自然に団らんが生まれる2LDK。ご案内いたしますのでお気軽にご連絡ください。 |
| リフォーム履歴 |
■水回り:2025年9月 給湯器 ■共用部の大規模修繕工事:2025年12月 塗装、改修工事2025年10月から同年12月 ■その他:2025年9月 和室、リビングダイニング、廊下の壁天井クロス張替え。リビングダイニングのカーペット張替え、和室畳の表替え、障子・襖の張替え、モニター付インターホン交換 ※実施年月は最も古い履歴を表示 |
| リノベーション履歴 |
- |
| 備考 |
賃貸保証等:加入要(日本賃貸保証株式会社『トリオ50』初回保証料:賃料の50%、更新時30%。他保証会社選択可)
管理形態/管理員の勤務形態:-/巡回
バルコニー:7.56m²
区画整理地内、管理人巡回
|
| エネルギー消費性能 |
- |
| 断熱性能 |
- |
| 目安光熱費 |
- |
| バス・トイレ |
バス・トイレ別、追焚機能、シャワー付洗面化粧台、洗面所独立、シャワー、温水洗浄便座 |
| キッチン |
独立型キッチン、食器洗浄乾燥機、浄水器、2WAYキッチン、IHクッキングヒーター |
| セキュリティー |
モニター付インターホン |
| 収納 |
収納スペース、クローゼット、シューズボックス |
| 設備・サービス |
室内洗濯機置場、都市ガス給湯、都市ガス、エアコン |
| TV・通信 |
BS端子 |
| その他 |
専用庭 |
| 契約期間 |
2年 |
現況 |
空家 |
| 条件等 |
- |
入居可能時期 |
相談 |
| 仲介手数料 |
0.55ヶ月 |
|
|
| 更新料 |
新賃料 1ヶ月 |
物件番号 |
6987755248 |
| 情報公開日 |
2025年10月12日 |
次回更新予定日 |
2025年12月20日 |
| ケータイ用バーコード |
- スマートフォンでこの物件を見る
- スマートフォンからもこの物件をご覧になれます。
|
※「-」と表示されている項目については、情報提供会社にご確認ください。
| 周辺施設 |
ほっともっと三郷早稲田店 |
| 距離 |
463m |
| 周辺施設 |
マツモトキヨシ早稲田団地店 |
| 距離 |
717m |
ここから簡単にお問い合わせをすることができます。
(SSLでの暗号化での送信を希望されるお客さまは
こちら
よりお問い合わせください)
お問い合わせを行う前に
「個人情報の取り扱いについて」を必ずお読みください。
「個人情報の取り扱いについて」に同意いただいた場合は「上記にご同意の上 確認画面へ進む」のボタンをクリックしてください。
個人情報の取り扱いについて
皆さまが送付された個人情報はアットホーム(株)のサーバを経由し、お問い合わせ先の不動産会社にメールまたはFAXにて転送されるためアットホーム(株)にも保管されます。アットホーム(株)で保管された個人情報の取り扱いについては、【こちら】をご覧ください。
また、本画面でご記入いただいた個人情報は、お問い合わせ先の不動産会社でも保管します。 お問い合わせ先の不動産会社が保管する個人情報の取り扱いについては、不動産会社に直接お問い合わせください。
埼玉県知事免許(1)第24571号 |
|---|
- 交通:
- JR武蔵野線/三郷駅 徒歩2分
- 埼玉県三郷市三郷2丁目11-5-403 グリーンパーク三郷
- TEL:
- 048-953-7111
- 所属団体:
- (公社)埼玉県宅地建物取引業協会会員(公社)首都圏不動産公正取引協議会加盟
取引態様:仲介  - 00271082
|
- スマートフォンで
この不動産会社を見る

|
- 提携サイト等より掲載されている物件情報につきましては、不動産会社詳細情報にリンクされていないものがあります。
- 物件に関するお問合せは、物件詳細ページの「情報提供会社」に表示されている不動産会社へ直接お願いいたします。
- 間取図は、現況を優先させていただきます。
- 映像は物件の一部を撮影したものです。物件の契約にあたっての最終判断はご自身の判断に基づいて行ってください。
- 仲介手数料について

アットホームは物件情報の適正化に努めております。
内容に誤りがある場合にはこちらへご連絡ください。