東京都荒川区南千住6丁目(千住大橋駅)の賃貸:物件詳細
交通 所在地 |
駅徒歩 |
賃料 管理費等 |
敷金/保証金 礼金 |
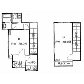
間取り 面積 |
物件種目 築年月 |
|
京成本線/千住大橋
東京都荒川区南千住6丁目
|
9分
|
12.5万円
-
|
1ヶ月 / なし
なし
|
1DK
46.27m²
|
賃貸一戸建て
1965年2月(築60年11ヶ月)
|
2面採光
|
|
間取図
|
外観
|
<
その他の画像
>
|
| 交通 | 京成本線 千住大橋駅 徒歩9分 |
|---|
| その他の交通 | 東京メトロ日比谷線 南千住駅 徒歩11分 JR常磐線 南千住駅 徒歩11分 |
| 所在地 |
東京都荒川区南千住6丁目
|
| 物件種目 |
賃貸一戸建て |
| 賃料 |
12.5万円 |
管理費等 |
- |
| 敷金 / 保証金 |
1ヶ月 / なし |
礼金 |
なし |
| 敷引 |
- |
保証金償却 |
- |
| その他一時金 |
鍵交換代等:16,500円~ |
保険等 |
要 2年 20,000円 住宅総合 |
| 維持費等 |
- |
| 間取り |
1DK(洋 8.5) |
専有面積 |
46.27m² |
| 築年月 |
1965年2月(築60年11ヶ月)
|
階建 / 階 |
2階建 |
| 建物構造 |
木造 |
総戸数 |
- |
| 主要採光面 |
|
駐車場 |
- |
| バイク置き場 |
- |
駐輪場 |
有 無料 |
| 建物名・部屋番号 |
|
ペット |
-
|
| アピールポイント |
南千住駅周辺 商業施設徒歩圏内 |
| リフォーム履歴 |
- |
| リノベーション履歴 |
- |
| 備考 |
賃貸保証等:加入要(保証人有り60%、保証人無し80%、別途年間手数料1万円有り)
管理形態/管理員の勤務形態:-/-
ライフサポート24プラス月額1100円あり、スムービングサービス月額1100円あり、退去時クリーニング費用あり、早期解約違約金あり、更新料は新賃料1ヶ月分、更新事務手数料0.275ヶ月(税込)
|
| エネルギー消費性能 |
- |
| 断熱性能 |
- |
| 目安光熱費 |
- |
| バス・トイレ |
バス・トイレ別、追焚機能、洗面所独立、シャワー、トイレ |
| キッチン |
システムキッチン、2口コンロ、ガスコンロ付 |
| セキュリティー |
- |
| 収納 |
収納スペース、シューズボックス |
| 設備・サービス |
エアコン2台以上、室内洗濯機置場 |
| TV・通信 |
- |
| その他 |
バルコニー、駐輪場 |
| 契約期間 |
2年 |
現況 |
空家 |
| 条件等 |
- |
入居可能時期 |
相談 |
| 仲介手数料 |
1.1ヶ月 |
|
|
| 更新料 |
新賃料 1ヶ月 |
物件番号 |
6987789279 |
| 情報公開日 |
2025年9月29日 |
次回更新予定日 |
2025年12月29日 |
| ケータイ用バーコード |
- スマートフォンでこの物件を見る
- スマートフォンからもこの物件をご覧になれます。
|
※「-」と表示されている項目については、情報提供会社にご確認ください。
ここから簡単にお問い合わせをすることができます。
(SSLでの暗号化での送信を希望されるお客さまは
こちら
よりお問い合わせください)
お問い合わせを行う前に
「個人情報の取り扱いについて」を必ずお読みください。
「個人情報の取り扱いについて」に同意いただいた場合は「上記にご同意の上 確認画面へ進む」のボタンをクリックしてください。
個人情報の取り扱いについて
皆さまが送付された個人情報はアットホーム(株)のサーバを経由し、お問い合わせ先の不動産会社にメールまたはFAXにて転送されるためアットホーム(株)にも保管されます。アットホーム(株)で保管された個人情報の取り扱いについては、【こちら】をご覧ください。
また、本画面でご記入いただいた個人情報は、お問い合わせ先の不動産会社でも保管します。 お問い合わせ先の不動産会社が保管する個人情報の取り扱いについては、不動産会社に直接お問い合わせください。
東京都知事免許(11)第43248号 |
|---|
- 交通:
- 東京メトロ銀座線/浅草駅 徒歩10分
- 東京都台東区浅草6丁目32-8
- TEL:
- 03-3875-7281
- FAX:
- 03-5827-3122
- 所属団体:
- (公社)東京都宅地建物取引業協会会員(公社)首都圏不動産公正取引協議会加盟
取引態様:仲介  - 00420071
|
- スマートフォンで
この不動産会社を見る

|
- 提携サイト等より掲載されている物件情報につきましては、不動産会社詳細情報にリンクされていないものがあります。
- 物件に関するお問合せは、物件詳細ページの「情報提供会社」に表示されている不動産会社へ直接お願いいたします。
- 間取図は、現況を優先させていただきます。
- 映像は物件の一部を撮影したものです。物件の契約にあたっての最終判断はご自身の判断に基づいて行ってください。
- 仲介手数料について

アットホームは物件情報の適正化に努めております。
内容に誤りがある場合にはこちらへご連絡ください。