東京都渋谷区代々木2丁目(新宿駅)の賃貸:物件詳細
交通 所在地 |
駅徒歩 |
賃料 管理費等 |
敷金/保証金 礼金 |
間取り 面積 |
物件種目 築年月 |
京王線/新宿
東京都渋谷区代々木2丁目
|
3分
|
11.4万円
13,000円
|
1ヶ月 / なし
1ヶ月
|
1K
21.37m²
|
賃貸マンション
2014年8月(築11年3ヶ月)
|
デザイナーズ、分譲タイプ、常時ゴミ出し可能、二人入居可、24時間セキュリティー、24時間換気システム、閑静な住宅街、外観タイル張り
|
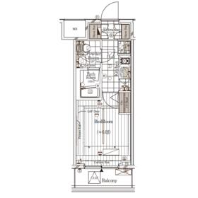
間取図
|
|
<
その他の画像
>
|
交通 | 京王線 新宿駅 徒歩3分 |
---|
その他の交通 | 都営大江戸線 新宿駅 徒歩5分 JR山手線 新宿駅 徒歩7分 |
所在地 |
東京都渋谷区代々木2丁目
|
物件種目 |
賃貸マンション |
賃料 |
11.4万円 |
管理費等 |
13,000円 |
敷金 / 保証金 |
1ヶ月 / なし |
礼金 |
1ヶ月 |
敷引 |
- |
保証金償却 |
- |
その他一時金 |
鍵交換代等:38,500円~ |
保険等 |
要 2,530円 BRIプライムプラス(月額) |
維持費等 |
BRIプライムプラス:2,530円/月 |
間取り |
1K(洋 6) |
専有面積 |
21.37m² |
築年月 |
2014年8月(築11年3ヶ月)
|
階建 / 階 |
地上9階地下2階建 / 5階 |
建物構造 |
RC |
総戸数 |
- |
主要採光面 |
東 |
駐車場 |
- |
バイク置き場 |
- |
駐輪場 |
- |
建物名・部屋番号 |
ガリシア代々木 506 |
ペット |
-
|
リフォーム履歴 |
- |
リノベーション履歴 |
- |
備考 |
賃貸保証等:加入要(〈個人〉①株式会社ジャックス[VICCS-ONE]初回合計家賃50%、1%/月、10,500円/年②株式会社エポスカード[ROOM iD]初回合計家賃50%、1.5%/月、年間更新料無し※法人契約も可)
管理形態/管理員の勤務形態:-/-
バルコニー:3.48m²
火災保険及び緊急24時間駆け付け、近隣トラブル解決支援、優待サービスが付帯した入居者様への安心サービス「BRIプライムプラス」への加入が必須となります(月額2,530円)お申込は「イタンジBB」よりお手続きください。更新事務手数料:新賃料0.5カ月 先行契約のみ可。<賃貸保証>信販系①ジャックス②エポスカード※①、②が審査落ちの場合別途ルームバンクインシュア、にじいろインシュアにて審査可。※法人契約の場合②利用 外国籍の場合:ニッポンインシュア(WAKLUS保証)初回合計家賃100%、2%/月、敷金追加1ヶ月(学生の場合さらに追加1ヶ月)※海外審査可※本契約は株式会社WAKLUSが貸主となる特定賃貸借(転貸借)契約です。詳細はATBBをご参照ください。
|
エネルギー消費性能 |
- |
断熱性能 |
- |
目安光熱費 |
- |
バス・トイレ |
バス・トイレ別、浴室暖房、浴室乾燥機、洗面所、洗面台、シャワー、温水洗浄便座、トイレ |
キッチン |
システムキッチン、2口コンロ、ガスコンロ付 |
セキュリティー |
モニター付オートロック、オートロック、モニター付インターホン、ディンプルキー、ダブルロックドア、防犯カメラ |
収納 |
全居室収納、収納スペース、クローゼット、シューズボックス |
設備・サービス |
全居室エアコン、室内洗濯機置場、洗濯機置場、給湯、全居室フローリング、フローリング、都市ガス、エアコン、暖房、冷房 |
TV・通信 |
インターネット対応、インターネット使用料無料、CS、BS端子、マルチメディアコンセント |
その他 |
宅配BOX、バルコニー、エレベーター |
契約期間 |
2年 |
現況 |
居住中 |
条件等 |
- |
入居可能時期 |
2025年11月中旬予定 |
更新料 |
新賃料 1ヶ月 |
物件番号 |
6987824411 |
情報公開日 |
2025年9月29日 |
次回更新予定日 |
2025年10月27日 |
ケータイ用バーコード |
- スマートフォンでこの物件を見る
- スマートフォンからもこの物件をご覧になれます。
|
※「-」と表示されている項目については、情報提供会社にご確認ください。
周辺施設 |
まいばすけっと代々木2丁目店 |
距離 |
347m |
周辺施設 |
ファミリーマート代々木二丁目北店 |
距離 |
84m |
周辺施設 |
ミニストップ代々木2丁目店 |
距離 |
133m |
周辺施設 |
セブンイレブン西新宿甲州街道店 |
距離 |
211m |
周辺施設 |
セブンイレブン渋谷代々木2丁目店 |
距離 |
203m |
ここから簡単にお問い合わせをすることができます。
(SSLでの暗号化での送信を希望されるお客さまは
こちら
よりお問い合わせください)
お問い合わせを行う前に
「個人情報の取り扱いについて」を必ずお読みください。
「個人情報の取り扱いについて」に同意いただいた場合は「上記にご同意の上 確認画面へ進む」のボタンをクリックしてください。
個人情報の取り扱いについて
皆さまが送付された個人情報はアットホーム(株)のサーバを経由し、お問い合わせ先の不動産会社にメールまたはFAXにて転送されるためアットホーム(株)にも保管されます。アットホーム(株)で保管された個人情報の取り扱いについては、【こちら】をご覧ください。
また、本画面でご記入いただいた個人情報は、お問い合わせ先の不動産会社でも保管します。 お問い合わせ先の不動産会社が保管する個人情報の取り扱いについては、不動産会社に直接お問い合わせください。
東京都知事免許(1)第105529号 |
---|
- 交通:
- 小田急小田原線/豪徳寺駅 徒歩1分
- 東京都世田谷区豪徳寺1丁目22-4
- TEL:
- 03-3427-3201
- FAX:
- 03-3427-3203
- 所属団体:
- (公社)東京都宅地建物取引業協会会員(公社)首都圏不動産公正取引協議会加盟
取引態様:仲介  - 00269129
|
- スマートフォンで
この不動産会社を見る

|
- 提携サイト等より掲載されている物件情報につきましては、不動産会社詳細情報にリンクされていないものがあります。
- 物件に関するお問合せは、物件詳細ページの「情報提供会社」に表示されている不動産会社へ直接お願いいたします。
- 間取図は、現況を優先させていただきます。
- 映像は物件の一部を撮影したものです。物件の契約にあたっての最終判断はご自身の判断に基づいて行ってください。
- 仲介手数料について

アットホームは物件情報の適正化に努めております。
内容に誤りがある場合にはこちらへご連絡ください。