兵庫県神戸市灘区八幡町4丁目(六甲駅)の賃貸:物件詳細
交通 所在地 |
駅徒歩 |
賃料 管理費等 |
敷金/保証金 礼金 |
間取り 面積 |
物件種目 築年月 |
|
阪急神戸線/六甲
兵庫県神戸市灘区八幡町4丁目
|
2分
|
7.3万円
2,000円
|
15万円 / なし
15万円
|
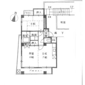
2DK
43.47m²
|
賃貸マンション
1989年3月(築36年8ヶ月)
|
ペット相談、角部屋、3面採光
|
|
間取図
|
|
その他の画像
|
| 交通 | 阪急神戸線 六甲駅 徒歩2分 |
|---|
| その他の交通 | JR東海道本線 六甲道駅 徒歩12分 阪神本線 新在家駅 徒歩18分 |
| 所在地 |
兵庫県神戸市灘区八幡町4丁目
|
| 物件種目 |
賃貸マンション |
| 賃料 |
7.3万円 |
管理費等 |
2,000円 |
| 敷金 / 保証金 |
15万円 / なし |
礼金 |
15万円 |
| 敷引 |
- |
保証金償却 |
- |
| その他一時金 |
- |
保険等 |
要 2年 19,170円 住宅安心保険 |
| 維持費等 |
- |
| 間取り |
2DK(和 6 洋 6 DK 7) |
専有面積 |
43.47m² |
| 築年月 |
1989年3月(築36年8ヶ月)
|
階建 / 階 |
5階建 / 3階 |
| 建物構造 |
RC |
総戸数 |
- |
| 主要採光面 |
南西 |
駐車場 |
有 13,000円/月 |
| バイク置き場 |
- |
駐輪場 |
- |
| 建物名・部屋番号 |
六甲KIハイツ |
ペット |
小型犬可・ 猫可・ 小型犬もしくは猫1頭まで相談可 |
| リフォーム履歴 |
■内装:2025年9月 和室畳表替え、DK・洋室の壁・天井クロス張替え ※実施年月は最も古い履歴を表示 |
| リノベーション履歴 |
- |
| 備考 |
賃貸保証等:加入要(日本セーフティ株式会社 初回保証料(保証人有30%・保証人無50%)、継続保証料月払い800円もしくは年払い10,000円、口座振替手数料330円)
管理形態/管理員の勤務形態:-/-
非喫煙者限定
阪急六甲駅より徒歩2分です Jcom Wi-Fi(1G)無料 原付1台月額1,000円にて駐車可 小型車1台13,000円にて駐車可(サイズ制限有)
|
| エネルギー消費性能 |
- |
| 断熱性能 |
- |
| 目安光熱費 |
- |
| バス・トイレ |
バス・トイレ別 |
| キッチン |
- |
| セキュリティー |
- |
| 収納 |
- |
| 設備・サービス |
室内洗濯機置場 |
| TV・通信 |
- |
| その他 |
三面バルコニー |
| 契約期間 |
2年 |
現況 |
空家 |
| 条件等 |
- |
入居可能時期 |
相談 |
| 更新料 |
- |
物件番号 |
6987842942 |
| 情報公開日 |
2025年9月30日 |
次回更新予定日 |
2025年10月28日 |
| ケータイ用バーコード |
- スマートフォンでこの物件を見る
- スマートフォンからもこの物件をご覧になれます。
|
※「-」と表示されている項目については、情報提供会社にご確認ください。
| 周辺施設 |
いかりスーパーマーケット六甲店 |
| 距離 |
346m |
| 周辺施設 |
コクミンドラッグ阪急六甲店 |
| 距離 |
237m |
ここから簡単にお問い合わせをすることができます。
(SSLでの暗号化での送信を希望されるお客さまは
こちら
よりお問い合わせください)
お問い合わせを行う前に
「個人情報の取り扱いについて」を必ずお読みください。
「個人情報の取り扱いについて」に同意いただいた場合は「上記にご同意の上 確認画面へ進む」のボタンをクリックしてください。
個人情報の取り扱いについて
皆さまが送付された個人情報はアットホーム(株)のサーバを経由し、お問い合わせ先の不動産会社にメールまたはFAXにて転送されるためアットホーム(株)にも保管されます。アットホーム(株)で保管された個人情報の取り扱いについては、【こちら】をご覧ください。
また、本画面でご記入いただいた個人情報は、お問い合わせ先の不動産会社でも保管します。 お問い合わせ先の不動産会社が保管する個人情報の取り扱いについては、不動産会社に直接お問い合わせください。
兵庫県知事免許(3)第11495号 |
|---|
- 交通:
- 【バス】 摩耶埠頭
- 兵庫県神戸市灘区森後町2丁目2-22
- TEL:
- 078-805-1977
- FAX:
- 078-862-5615
- 所属団体:
- (一社)兵庫県宅地建物取引業協会会員(一社)不動産協会会員(公社)近畿地区不動産公正取引協議会加盟
取引態様:仲介  - 50026583
|
- スマートフォンで
この不動産会社を見る

|
- 提携サイト等より掲載されている物件情報につきましては、不動産会社詳細情報にリンクされていないものがあります。
- 物件に関するお問合せは、物件詳細ページの「情報提供会社」に表示されている不動産会社へ直接お願いいたします。
- 間取図は、現況を優先させていただきます。
- 映像は物件の一部を撮影したものです。物件の契約にあたっての最終判断はご自身の判断に基づいて行ってください。
- 仲介手数料について

アットホームは物件情報の適正化に努めております。
内容に誤りがある場合にはこちらへご連絡ください。