静岡県沼津市下香貫藤井原(沼津駅)の賃貸:物件詳細
交通 所在地 |
駅徒歩 |
賃料 管理費等 |
敷金/保証金 礼金 |
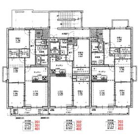
間取り 面積 |
物件種目 築年月 |
|
東海道本線/沼津 [バス利用可] バス 下香貫 停歩2分
静岡県沼津市下香貫藤井原
|
3300m
|
5.8万円
7,350円
|
なし / なし
なし
|
2LDK
60.00m²
|
賃貸マンション
2017年2月(築9年2ヶ月)
|
フリーレント、常時ゴミ出し可能、最上階、ルームシェア可、二人入居可、閑静な住宅街、保証人不要
|
|
間取図
|
外観
|
<
その他の画像
>
|
| 交通 | 東海道本線 沼津駅 徒歩3300m [バス利用可] バス 下香貫 停歩2分 |
| 所在地 |
静岡県沼津市下香貫藤井原
|
| 物件種目 |
賃貸マンション |
| 賃料 |
5.8万円 |
管理費等 |
7,350円 |
| 敷金 / 保証金 |
なし / なし |
礼金 |
なし |
| 敷引 |
- |
保証金償却 |
- |
| その他一時金 |
内装負担金:100,000円 |
保険等 |
要 2年 15,000円 あいおいニッセイ同和 |
| 維持費等 |
- |
| 間取り |
2LDK |
専有面積 |
60.00m² |
| 築年月 |
2017年2月(築9年2ヶ月)
|
階建 / 階 |
4階建 / 4階 |
| 建物構造 |
RC |
総戸数 |
10戸 |
| 主要採光面 |
南東 |
駐車場 |
近有 4,400円/月 |
| バイク置き場 |
有 |
駐輪場 |
有 |
| 建物名・部屋番号 |
|
ペット |
-
|
| アピールポイント |
対面キッチンでビルトインガスコンロ付だから便利!!お洒落で奇麗なお部屋です。お風呂は1坪タイプなのでお子様と入っても狭くない!!香貫小学校・第三中学校まで徒歩10分以内。生活利便性も良好!! 安心の鉄筋コンクリート造です。追加駐車場(近隣)あり月額4,400円(税込) 敷金・礼金なしで初期費用が抑えられます。 |
| リフォーム履歴 |
■内装:2025年11月 壁・天井(クロス・塗装等) ※実施年月は最も古い履歴を表示 |
| リノベーション履歴 |
- |
| 備考 |
賃貸保証等:加入要(月額賃料等の50%(更新あり)または67.5%(更新なし))
管理形態/管理員の勤務形態:-/-
バルコニー:6.1m²
フリーレント:1ヶ月(2年以内の解約の場合は、違約金1か月分)
|
| エネルギー消費性能 |
- |
| 断熱性能 |
- |
| 目安光熱費 |
- |
| バス・トイレ |
バス・トイレ別、追焚機能、シャワー付洗面化粧台、洗面所独立、洗面所、シャワー、温水洗浄便座、トイレ |
| キッチン |
3口以上コンロ、ガスコンロ付、グリル |
| セキュリティー |
オートロック、モニター付インターホン、ダブルロックドア |
| 収納 |
ウォークインクローゼット、収納スペース、シューズボックス |
| 設備・サービス |
室内洗濯機置場、省エネ給湯器、プロパンガス給湯、全居室フローリング、フローリング、プロパンガス、エアコン、照明器具 |
| TV・通信 |
ケーブルTV |
| その他 |
バイク置き場、バルコニー、駐輪場 |
| 契約期間 |
2年 |
現況 |
空家 |
| 条件等 |
- |
入居可能時期 |
即時 |
| 仲介手数料 |
1ヶ月 |
|
|
| 更新料 |
なし |
物件番号 |
6987851225 |
| 情報公開日 |
2026年3月23日 |
次回更新予定日 |
2026年4月6日 |
| ケータイ用バーコード |
- スマートフォンでこの物件を見る
- スマートフォンからもこの物件をご覧になれます。
|
※「-」と表示されている項目については、情報提供会社にご確認ください。
| 周辺施設 |
マックスバリュ沼津香貫店 |
| 距離 |
431m |
| 周辺施設 |
ほっともっと沼津下香貫店 |
| 距離 |
108m |
ここから簡単にお問い合わせをすることができます。
(SSLでの暗号化での送信を希望されるお客さまは
こちら
よりお問い合わせください)
お問い合わせを行う前に
「個人情報の取り扱いについて」を必ずお読みください。
「個人情報の取り扱いについて」に同意いただいた場合は「上記にご同意の上 確認画面へ進む」のボタンをクリックしてください。
個人情報の取り扱いについて
皆さまが送付された個人情報はアットホーム(株)のサーバを経由し、お問い合わせ先の不動産会社にメールまたはFAXにて転送されるためアットホーム(株)にも保管されます。アットホーム(株)で保管された個人情報の取り扱いについては、【こちら】をご覧ください。
また、本画面でご記入いただいた個人情報は、お問い合わせ先の不動産会社でも保管します。 お問い合わせ先の不動産会社が保管する個人情報の取り扱いについては、不動産会社に直接お問い合わせください。
静岡県知事免許(5)第12108号 |
|---|
- 交通:
- 東海道本線/富士駅
- 静岡県富士市大淵2358-1
- TEL:
- 0545-37-1115
- FAX:
- 0545-37-1116
- 所属団体:
- (公社)静岡県宅地建物取引業協会会員東海不動産公正取引協議会加盟
取引態様:仲介  - 40409909
|
- スマートフォンで
この不動産会社を見る

|
- 提携サイト等より掲載されている物件情報につきましては、不動産会社詳細情報にリンクされていないものがあります。
- 物件に関するお問合せは、物件詳細ページの「情報提供会社」に表示されている不動産会社へ直接お願いいたします。
- 間取図は、現況を優先させていただきます。
- 映像は物件の一部を撮影したものです。物件の契約にあたっての最終判断はご自身の判断に基づいて行ってください。
- 仲介手数料について

アットホームは物件情報の適正化に努めております。
内容に誤りがある場合にはこちらへご連絡ください。