福岡県福岡市東区多の津4丁目(柚須駅)の賃貸:物件詳細
交通 所在地 |
駅徒歩 |
賃料 管理費等 |
敷金/保証金 礼金 |
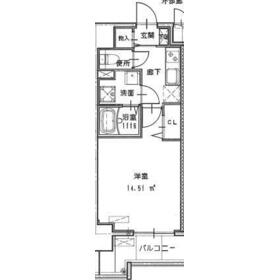
間取り 面積 |
物件種目 築年月 |
|
JR篠栗線/柚須
福岡県福岡市東区多の津4丁目
|
22分
|
6.5万円
5,000円
|
なし / なし
6.5万円
|
1K
29.22m²
|
賃貸マンション
2021年1月(築4年10ヶ月)
|
最上階
|
|
間取図
|
外観
|
<
その他の画像
>
|
| 交通 | JR篠栗線 柚須駅 徒歩22分 |
|---|
| その他の交通 | JR鹿児島本線 箱崎駅 徒歩31分 |
| 所在地 |
福岡県福岡市東区多の津4丁目
|
| 物件種目 |
賃貸マンション |
| 賃料 |
6.5万円 |
管理費等 |
5,000円 |
| 敷金 / 保証金 |
なし / なし |
礼金 |
6.5万円 |
| 敷引 |
- |
保証金償却 |
- |
| その他一時金 |
契約事務手数料:11,000円 |
保険等 |
要 2年 22,000円 |
| 維持費等 |
町会費:500円/月 |
| 間取り |
1K |
専有面積 |
29.22m² |
| 築年月 |
2021年1月(築4年10ヶ月)
|
階建 / 階 |
12階建 / 12階 |
| 建物構造 |
RC |
総戸数 |
55戸 |
| 主要採光面 |
|
駐車場 |
有 8,800円/月 |
| バイク置き場 |
無 |
駐輪場 |
無 |
| 建物名・部屋番号 |
レスポワール 1204 |
ペット |
-
|
| リフォーム履歴 |
- |
| リノベーション履歴 |
- |
| 備考 |
賃貸保証等:加入要(初回50%、更新時12,000円/年)
管理形態/管理員の勤務形態:-/-
オートロック、宅配ボックス、インターネット無料、エアコン、2口ガスコンロ、モニター付インターホン、温水洗浄暖房便座、照明
|
| エネルギー消費性能 |
- |
| 断熱性能 |
- |
| 目安光熱費 |
- |
| バス・トイレ |
- |
| キッチン |
- |
| セキュリティー |
- |
| 収納 |
- |
| 設備・サービス |
- |
| TV・通信 |
- |
| その他 |
エレベーター |
| 契約期間 |
2年 |
現況 |
空家 |
| 条件等 |
- |
入居可能時期 |
即時 |
| 更新料 |
65,000円 |
物件番号 |
6987877475 |
| 情報公開日 |
2025年10月3日 |
次回更新予定日 |
2025年11月2日 |
| ケータイ用バーコード |
- スマートフォンでこの物件を見る
- スマートフォンからもこの物件をご覧になれます。
|
※「-」と表示されている項目については、情報提供会社にご確認ください。
| 周辺施設 |
ファミリーマート福岡流通センター店 |
| 距離 |
458m |
| 周辺施設 |
フクショクプライスクラブ福岡店 |
| 距離 |
983m |
ここから簡単にお問い合わせをすることができます。
(SSLでの暗号化での送信を希望されるお客さまは
こちら
よりお問い合わせください)
お問い合わせを行う前に
「個人情報の取り扱いについて」を必ずお読みください。
「個人情報の取り扱いについて」に同意いただいた場合は「上記にご同意の上 確認画面へ進む」のボタンをクリックしてください。
個人情報の取り扱いについて
皆さまが送付された個人情報はアットホーム(株)のサーバを経由し、お問い合わせ先の不動産会社にメールまたはFAXにて転送されるためアットホーム(株)にも保管されます。アットホーム(株)で保管された個人情報の取り扱いについては、【こちら】をご覧ください。
また、本画面でご記入いただいた個人情報は、お問い合わせ先の不動産会社でも保管します。 お問い合わせ先の不動産会社が保管する個人情報の取り扱いについては、不動産会社に直接お問い合わせください。
福岡県知事免許(1)第20214号 |
|---|
- 交通:
- 地下鉄空港線/博多駅 徒歩22分
- 福岡県福岡市博多区博多駅南4丁目19番29号 駅南第2ケイコービル103号室
- TEL:
- 092-334-1048
- 所属団体:
- (公社)福岡県宅地建物取引業協会会員(一社)九州不動産公正取引協議会加盟
取引態様:仲介  - 80508461
|
- スマートフォンで
この不動産会社を見る

|
- 提携サイト等より掲載されている物件情報につきましては、不動産会社詳細情報にリンクされていないものがあります。
- 物件に関するお問合せは、物件詳細ページの「情報提供会社」に表示されている不動産会社へ直接お願いいたします。
- 間取図は、現況を優先させていただきます。
- 映像は物件の一部を撮影したものです。物件の契約にあたっての最終判断はご自身の判断に基づいて行ってください。
- 仲介手数料について

アットホームは物件情報の適正化に努めております。
内容に誤りがある場合にはこちらへご連絡ください。