東京都中央区八丁堀2丁目(東京駅)の賃貸:物件詳細
交通 所在地 |
駅徒歩 |
賃料 管理費等 |
敷金/保証金 礼金 |
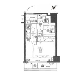
間取り 面積 |
物件種目 築年月 |
JR山手線/東京
東京都中央区八丁堀2丁目
|
6分
|
13.3万円
12,000円
|
なし / なし
1ヶ月
|
1K
25.31m²
|
賃貸マンション
2011年9月(築14年2ヶ月)
|
ペット相談、デザイナーズ、分譲タイプ、24時間セキュリティー、24時間換気システム、外観タイル張り
|
間取図
|
|
<
その他の画像
>
|
交通 | JR山手線 東京駅 徒歩6分 |
---|
その他の交通 | 東京メトロ日比谷線 八丁堀駅 徒歩4分 都営浅草線 宝町駅 徒歩6分 |
所在地 |
東京都中央区八丁堀2丁目
|
物件種目 |
賃貸マンション |
賃料 |
13.3万円 |
管理費等 |
12,000円 |
敷金 / 保証金 |
なし / なし |
礼金 |
1ヶ月 |
敷引 |
- |
保証金償却 |
- |
その他一時金 |
清掃費用:49,500円、防虫除菌施工:19,250円 |
保険等 |
要 2年 23,100円 |
維持費等 |
- |
間取り |
1K(洋 7.5) |
専有面積 |
25.31m² |
築年月 |
2011年9月(築14年2ヶ月)
|
階建 / 階 |
10階建 / 5階 |
建物構造 |
RC |
総戸数 |
- |
主要採光面 |
南東 |
駐車場 |
- |
バイク置き場 |
- |
駐輪場 |
空無 |
建物名・部屋番号 |
AXAS東京ステーション 502 |
ペット |
小型犬可・ 猫可・ 1匹まで、敷1追加/償却 |
アピールポイント |
探されていたのはこういう耳寄りなお話では?敷金(保証金)0円。お探しの方には嬉しいペット(小型犬)相談可。スタイリッシュに暮らせるデザイナーズの物件、更に寝ている間も換気が続く24時間換気システム採用なので、こもる湿気の対策もバッチリです。またフットワークが軽くなる東京駅徒歩6分ロケーションで、その上留守番いらずの宅配BOX付なので、ネット通販大好き派にはお勧めです。ちなみに365日異変を監視する24時間セキュリティー採用です。単身のシンプルライフに最適の1K。実際の空間をご自身で体感ください。 |
リフォーム履歴 |
- |
リノベーション履歴 |
- |
備考 |
賃貸保証等:加入要(初回保証料:総賃料50%~、更新時:10,000円/年)
管理形態/管理員の勤務形態:-/-
敷金0円!
分譲賃貸設備充実!
バストイレ別!
浴室乾燥機!
独立洗面台!
温水式洗浄便座!
室内洗濯機置場!
システムキッチン2口コンログリル付き!
エアコン!
クローゼット!
シューズボックス!
TVモニターホン!
バルコニー!
オートロック!
宅配ボックス!
防犯カメラ!
エレベーター!
複数路線利用可能な好立地!
|
エネルギー消費性能 |
- |
断熱性能 |
- |
目安光熱費 |
- |
バス・トイレ |
バス・トイレ別、浴室乾燥機、洗面所、洗面台、シャワー、温水洗浄便座、トイレ |
キッチン |
システムキッチン、2口コンロ、ガスコンロ付、グリル |
セキュリティー |
モニター付オートロック、オートロック、モニター付インターホン、ダブルロックドア、防犯カメラ |
収納 |
全居室収納、収納スペース、クローゼット、シューズボックス |
設備・サービス |
全居室エアコン、室内洗濯機置場、洗濯機置場、給湯、全居室フローリング、フローリング、室内物干し、都市ガス、エアコン |
TV・通信 |
インターネット対応、ケーブルTV、CS、BS端子 |
その他 |
宅配BOX、バルコニー、駐輪場、エレベーター |
契約期間 |
2年 |
現況 |
居住中 |
条件等 |
- |
入居可能時期 |
相談 |
仲介手数料 |
1.1ヶ月 |
|
|
更新料 |
新賃料 1ヶ月 |
物件番号 |
6987885496 |
情報公開日 |
2025年10月3日 |
次回更新予定日 |
2025年10月23日 |
ケータイ用バーコード |
- スマートフォンでこの物件を見る
- スマートフォンからもこの物件をご覧になれます。
|
※「-」と表示されている項目については、情報提供会社にご確認ください。
周辺施設 |
日本橋高島屋S.C.東館 |
距離 |
441m |
ここから簡単にお問い合わせをすることができます。
(SSLでの暗号化での送信を希望されるお客さまは
こちら
よりお問い合わせください)
お問い合わせを行う前に
「個人情報の取り扱いについて」を必ずお読みください。
「個人情報の取り扱いについて」に同意いただいた場合は「上記にご同意の上 確認画面へ進む」のボタンをクリックしてください。
個人情報の取り扱いについて
皆さまが送付された個人情報はアットホーム(株)のサーバを経由し、お問い合わせ先の不動産会社にメールまたはFAXにて転送されるためアットホーム(株)にも保管されます。アットホーム(株)で保管された個人情報の取り扱いについては、【こちら】をご覧ください。
また、本画面でご記入いただいた個人情報は、お問い合わせ先の不動産会社でも保管します。 お問い合わせ先の不動産会社が保管する個人情報の取り扱いについては、不動産会社に直接お問い合わせください。
東京都知事免許(3)第97594号 |
---|
- 交通:
- 東京メトロ日比谷線/築地駅 徒歩1分
- 東京都中央区築地3丁目9-10 築地ビル6F
- TEL:
- 03-6328-0601
- FAX:
- 03-6328-0602
- 所属団体:
- (公社)東京都宅地建物取引業協会会員(公社)首都圏不動産公正取引協議会加盟
取引態様:仲介  - 00260052
|
- スマートフォンで
この不動産会社を見る

|
- 提携サイト等より掲載されている物件情報につきましては、不動産会社詳細情報にリンクされていないものがあります。
- 物件に関するお問合せは、物件詳細ページの「情報提供会社」に表示されている不動産会社へ直接お願いいたします。
- 間取図は、現況を優先させていただきます。
- 映像は物件の一部を撮影したものです。物件の契約にあたっての最終判断はご自身の判断に基づいて行ってください。
- 仲介手数料について

アットホームは物件情報の適正化に努めております。
内容に誤りがある場合にはこちらへご連絡ください。