東京都品川区西中延2丁目(荏原中延駅)の賃貸:物件詳細
交通 所在地 |
駅徒歩 |
賃料 管理費等 |
敷金/保証金 礼金 |
間取り 面積 |
物件種目 築年月 |
|
東急池上線/荏原中延
東京都品川区西中延2丁目
|
4分
|
18万円
10,000円
|
なし / 10.5万円
1ヶ月
|
1LDK
41.12m²
|
賃貸マンション
2015年12月(築10年1ヶ月)
|
ペット相談、フリーレント、常時ゴミ出し可能、角部屋、高齢者相談、ルームシェア可、二人入居可、24時間セキュリティー、2面採光、24時間換気システム、外観タイル張り、保証人不要
|
|
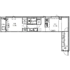
間取図
|
|
その他の画像
|
| 交通 | 東急池上線 荏原中延駅 徒歩4分 |
|---|
| その他の交通 | 都営浅草線 中延駅 徒歩10分 東急大井町線 戸越公園駅 徒歩13分 |
| 所在地 |
東京都品川区西中延2丁目
|
| 物件種目 |
賃貸マンション |
| 賃料 |
18万円 |
管理費等 |
10,000円 |
| 敷金 / 保証金 |
なし / 10.5万円 |
礼金 |
1ヶ月 |
| 敷引 |
- |
保証金償却 |
解約時10.50万円 ※ハウスクリーニング費用含む、故意、過失部分別途請求あります。 |
| その他一時金 |
24時間安心サポート:22,000円、鍵交換代等:38,500円~ |
保険等 |
要 2年 23,000円 住宅総合 |
| 維持費等 |
- |
| 間取り |
1LDK(洋 6.2 LDK 12.1) |
専有面積 |
41.12m² |
| 築年月 |
2015年12月(築10年1ヶ月)
|
階建 / 階 |
7階建 / 2階 |
| 建物構造 |
RC |
総戸数 |
- |
| 主要採光面 |
南西 |
駐車場 |
無 |
| バイク置き場 |
無 |
駐輪場 |
有 |
| 建物名・部屋番号 |
B CITY APARTMENT SHINAGAWA WEST 209 |
ペット |
小型犬可・ 猫可・ 敷+犬1ヶ月猫1.5ヶ月2匹可 |
| アピールポイント |
お探しの方には嬉しいペット(小型犬)相談可、高齢者入居相談可。広々とした延床面積41.12㎡の居室空間、更に部屋にゴミがたまらずにスッキリする常時ゴミ出し可だから、ゴミが室内に積み上がりません。また不在時の受け取りも楽々の宅配BOX付で、その上365日異変を監視する24時間セキュリティー採用で、万一の対応が素早い点も魅力です。ちなみに食後お皿を下げるのもスムーズなカウンターキッチンです。一人暮らしやカップルにお勧めの1LDK。実際の空間をご自身で体感ください。 |
| リフォーム履歴 |
- |
| リノベーション履歴 |
- |
| 備考 |
賃貸保証等:加入要(Casa・JID・GTN他。審査状況により金額の変更有。初回保証料50~65%)
管理形態/管理員の勤務形態:-/-
フリーレント:1ヶ月
|
| エネルギー消費性能 |
- |
| 断熱性能 |
- |
| 目安光熱費 |
- |
| バス・トイレ |
バス・トイレ別、浴室乾燥機、洗面台、シャワー、温水洗浄便座、トイレ |
| キッチン |
カウンターキッチン、システムキッチン、3口以上コンロ、ガスコンロ付 |
| セキュリティー |
オートロック、モニター付インターホン、ディンプルキー、防犯カメラ、火災警報器(報知機) |
| 収納 |
収納スペース、クローゼット、シューズボックス |
| 設備・サービス |
室内洗濯機置場、洗濯機置場、都市ガス給湯、給湯、全居室フローリング、フローリング、都市ガス、エアコン、暖房、冷房 |
| TV・通信 |
インターネット対応 |
| その他 |
宅配BOX、バルコニー、駐輪場、エレベーター |
| 契約期間 |
2年 |
現況 |
空家 |
| 条件等 |
定期借家 |
入居可能時期 |
指定有り2025年12月2日 |
| 更新料 |
新賃料 1.5ヶ月 |
物件番号 |
6987892750 |
| 情報公開日 |
2025年10月4日 |
次回更新予定日 |
2025年12月18日 |
| ケータイ用バーコード |
- スマートフォンでこの物件を見る
- スマートフォンからもこの物件をご覧になれます。
|
※「-」と表示されている項目については、情報提供会社にご確認ください。
ここから簡単にお問い合わせをすることができます。
(SSLでの暗号化での送信を希望されるお客さまは
こちら
よりお問い合わせください)
お問い合わせを行う前に
「個人情報の取り扱いについて」を必ずお読みください。
「個人情報の取り扱いについて」に同意いただいた場合は「上記にご同意の上 確認画面へ進む」のボタンをクリックしてください。
個人情報の取り扱いについて
皆さまが送付された個人情報はアットホーム(株)のサーバを経由し、お問い合わせ先の不動産会社にメールまたはFAXにて転送されるためアットホーム(株)にも保管されます。アットホーム(株)で保管された個人情報の取り扱いについては、【こちら】をご覧ください。
また、本画面でご記入いただいた個人情報は、お問い合わせ先の不動産会社でも保管します。 お問い合わせ先の不動産会社が保管する個人情報の取り扱いについては、不動産会社に直接お問い合わせください。
東京都知事免許(4)第86703号 |
|---|
- 交通:
- JR山手線/大崎駅 徒歩6分
- 東京都品川区大崎5丁目6-17
- TEL:
- 03-6426-1190
- FAX:
- 03-6426-1192
- 所属団体:
- (公社)全日本不動産協会会員(公社)首都圏不動産公正取引協議会加盟
取引態様:仲介  - 00015668
|
- スマートフォンで
この不動産会社を見る

|
- 提携サイト等より掲載されている物件情報につきましては、不動産会社詳細情報にリンクされていないものがあります。
- 物件に関するお問合せは、物件詳細ページの「情報提供会社」に表示されている不動産会社へ直接お願いいたします。
- 間取図は、現況を優先させていただきます。
- 映像は物件の一部を撮影したものです。物件の契約にあたっての最終判断はご自身の判断に基づいて行ってください。
- 仲介手数料について

アットホームは物件情報の適正化に努めております。
内容に誤りがある場合にはこちらへご連絡ください。