埼玉県鶴ヶ島市大字上広谷(鶴ヶ島駅)の賃貸:物件詳細
交通 所在地 |
駅徒歩 |
賃料 管理費等 |
敷金/保証金 礼金 |
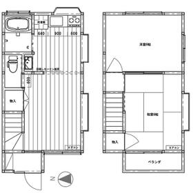
間取り 面積 |
物件種目 築年月 |
東武東上線/鶴ヶ島
埼玉県鶴ヶ島市大字上広谷
|
10分
|
6万円
-
|
1ヶ月 / なし
1ヶ月
|
2LDK
48.00m²
|
賃貸アパート
1990年4月(築35年7ヶ月)
|
ペット相談、角部屋、二人入居可、全室2面採光、2面採光、閑静な住宅街、メゾネット、前面棟無、保証人不要
|
間取図
|
外観
|
<
その他の画像
>
|
交通 | 東武東上線 鶴ヶ島駅 徒歩10分 |
---|
その他の交通 | 東武東上線 若葉駅 徒歩19分 |
所在地 |
埼玉県鶴ヶ島市大字上広谷
|
物件種目 |
賃貸アパート |
賃料 |
6万円 |
管理費等 |
- |
敷金 / 保証金 |
1ヶ月 / なし |
礼金 |
1ヶ月 |
敷引 |
- |
保証金償却 |
- |
その他一時金 |
畳表替え費用(任意):31,680円 |
保険等 |
要 2年 15,000円 |
維持費等 |
- |
間取り |
2LDK(和 6 洋 6 LDK 10.5) |
専有面積 |
48.00m² |
築年月 |
1990年4月(築35年7ヶ月)
|
階建 / 階 |
2階建 / メゾネット1階~2階部分 |
建物構造 |
木造 |
総戸数 |
9戸 |
主要採光面 |
西 |
駐車場 |
有 無料 |
バイク置き場 |
有 無料 |
駐輪場 |
有 無料 |
建物名・部屋番号 |
ビューティハイム金子 101号室 |
ペット |
小型犬可・ 猫可・ 敷金2ヶ月から3ヶ月 |
アピールポイント |
お探しの方には嬉しいペット(小型犬・猫ちゃん)相談可!ルームシェア相談可!閑静な住宅街の住戸、更に良好な日当たりが嬉しい全室2面採光の居室空間だから、日が長い夏場は照明代の節約にも。また無駄のない造りのシステムキッチンで、その上お風呂準備はおまかせのオートバス仕様だから、台所で料理しながらお風呂の準備ができます。ちなみに服を着たまま洗髪ができるシャンプードレッサー付です。家族の安心拠点になる2LDK。是非見学にお越しください。 |
リフォーム履歴 |
- |
リノベーション履歴 |
- |
備考 |
賃貸保証等:加入要(初回保証料:月額賃料の50% 更新保証料:10000円/1年 引落手数料:330円/月額)
管理形態/管理員の勤務形態:-/-
☆3DKにも対応可能な2LDK
☆室内大変きれいです、いつでも入居可!
☆ワンちゃん猫ちゃん相談可!
☆南西の角部屋で日当たり、通風良好なメゾネットタイプ!
☆あると便利な追炊き機能付き!
☆畳の表替え(任意):31680円
|
エネルギー消費性能 |
- |
断熱性能 |
- |
目安光熱費 |
- |
バス・トイレ |
バス・トイレ別、オートバス、追焚機能、シャワー付洗面化粧台、洗面所、洗面台、温水洗浄便座 |
キッチン |
システムキッチン、2口コンロ、ガスコンロ付 |
セキュリティー |
- |
収納 |
収納スペース、シューズボックス |
設備・サービス |
室内洗濯機置場、給湯、出窓、フローリング、プロパンガス、エアコン、暖房、冷房 |
TV・通信 |
- |
その他 |
バイク置き場、バルコニー、駐輪場 |
契約期間 |
2年 |
現況 |
空家 |
条件等 |
- |
入居可能時期 |
即時 |
更新料 |
新賃料 1ヶ月 |
物件番号 |
6987948418 |
情報公開日 |
2025年10月9日 |
次回更新予定日 |
2025年11月3日 |
ケータイ用バーコード |
- スマートフォンでこの物件を見る
- スマートフォンからもこの物件をご覧になれます。
|
※「-」と表示されている項目については、情報提供会社にご確認ください。
周辺施設 |
ヤオコー鶴ヶ島店 |
距離 |
503m |
写真を見る |
周辺施設 |
ファッションセンターしまむら鶴ヶ島店 |
距離 |
850m |
写真を見る |
周辺施設 |
コモディイイダ鶴ヶ島店 |
距離 |
694m |
写真を見る |
周辺施設 |
セブンイレブン鶴ヶ島上広谷店 |
距離 |
827m |
写真を見る |
周辺施設 |
マツモトキヨシ鶴ヶ島店 |
距離 |
821m |
写真を見る |
周辺施設 |
鶴ヶ島市立藤中学校 |
距離 |
1208m |
写真を見る |
周辺施設 |
鶴ヶ島市立鶴ケ島第二小学校 |
距離 |
297m |
写真を見る |
ここから簡単にお問い合わせをすることができます。
(SSLでの暗号化での送信を希望されるお客さまは
こちら
よりお問い合わせください)
お問い合わせを行う前に
「個人情報の取り扱いについて」を必ずお読みください。
「個人情報の取り扱いについて」に同意いただいた場合は「上記にご同意の上 確認画面へ進む」のボタンをクリックしてください。
個人情報の取り扱いについて
皆さまが送付された個人情報はアットホーム(株)のサーバを経由し、お問い合わせ先の不動産会社にメールまたはFAXにて転送されるためアットホーム(株)にも保管されます。アットホーム(株)で保管された個人情報の取り扱いについては、【こちら】をご覧ください。
また、本画面でご記入いただいた個人情報は、お問い合わせ先の不動産会社でも保管します。 お問い合わせ先の不動産会社が保管する個人情報の取り扱いについては、不動産会社に直接お問い合わせください。
埼玉県知事免許(9)第14462号 |
---|
- 交通:
- 東武東上線/鶴ヶ島駅 徒歩8分
- 埼玉県鶴ヶ島市大字五味ヶ谷7-38
- TEL:
- 049-287-1112
- FAX:
- 049-227-3088
- 所属団体:
- (公社)埼玉県宅地建物取引業協会会員(公社)首都圏不動産公正取引協議会加盟
取引態様:仲介  - 00980055
|
- スマートフォンで
この不動産会社を見る

|
- 提携サイト等より掲載されている物件情報につきましては、不動産会社詳細情報にリンクされていないものがあります。
- 物件に関するお問合せは、物件詳細ページの「情報提供会社」に表示されている不動産会社へ直接お願いいたします。
- 間取図は、現況を優先させていただきます。
- 映像は物件の一部を撮影したものです。物件の契約にあたっての最終判断はご自身の判断に基づいて行ってください。
- 仲介手数料について

アットホームは物件情報の適正化に努めております。
内容に誤りがある場合にはこちらへご連絡ください。