長崎県佐世保市山手町(北佐世保駅)の賃貸:物件詳細
交通 所在地 |
駅徒歩 |
賃料 管理費等 |
敷金/保証金 礼金 |
間取り 面積 |
物件種目 築年月 |
|
松浦鉄道西九州線/北佐世保
長崎県佐世保市山手町
|
14分
|
5.7万円
2,000円
|
なし / なし
2ヶ月
|
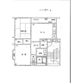
2LDK
48.20m²
|
賃貸マンション
2000年3月(築25年8ヶ月)
|
角部屋、最上階、南向き、2面採光
|
|
間取図
|
外観
|
<
その他の画像
>
|
| 交通 | 松浦鉄道西九州線 北佐世保駅 徒歩14分 |
| 所在地 |
長崎県佐世保市山手町
|
| 物件種目 |
賃貸マンション |
| 賃料 |
5.7万円 |
管理費等 |
2,000円 |
| 敷金 / 保証金 |
なし / なし |
礼金 |
2ヶ月 |
| 敷引 |
- |
保証金償却 |
- |
| その他一時金 |
鍵交換代等:16,500円~ |
保険等 |
要 2年 15,500円 家財 |
| 維持費等 |
- |
| 間取り |
2LDK(和 6 洋 6 LDK 8) |
専有面積 |
48.20m² |
| 築年月 |
2000年3月(築25年8ヶ月)
|
階建 / 階 |
3階建 / 2階 |
| 建物構造 |
RC |
総戸数 |
6戸 |
| 主要採光面 |
南 |
駐車場 |
有 6,000円/月 |
| バイク置き場 |
- |
駐輪場 |
- |
| 建物名・部屋番号 |
|
ペット |
-
|
| リフォーム履歴 |
- |
| リノベーション履歴 |
- |
| 備考 |
賃貸保証等:加入要(ジェイリース 初回家賃総額60%、月々1.5%)
管理形態/管理員の勤務形態:-/-
町費:500円/月
退去時清掃代:55,000円(税込)
鍵交換希望の場合のみ別途16,500円(税込)
|
| エネルギー消費性能 |
- |
| 断熱性能 |
- |
| 目安光熱費 |
- |
| バス・トイレ |
バス・トイレ別、洗面所、洗面台、シャワー、温水洗浄便座 |
| キッチン |
- |
| セキュリティー |
- |
| 収納 |
クローゼット、シューズボックス |
| 設備・サービス |
エアコン2台以上、室内洗濯機置場、給湯 |
| TV・通信 |
- |
| その他 |
二面バルコニー、バルコニー |
| 契約期間 |
2年 |
現況 |
空家 |
| 条件等 |
- |
入居可能時期 |
即時 |
| 更新料 |
なし |
物件番号 |
6987953340 |
| 情報公開日 |
2025年10月9日 |
次回更新予定日 |
2025年10月30日 |
| ケータイ用バーコード |
- スマートフォンでこの物件を見る
- スマートフォンからもこの物件をご覧になれます。
|
※「-」と表示されている項目については、情報提供会社にご確認ください。
ここから簡単にお問い合わせをすることができます。
(SSLでの暗号化での送信を希望されるお客さまは
こちら
よりお問い合わせください)
お問い合わせを行う前に
「個人情報の取り扱いについて」を必ずお読みください。
「個人情報の取り扱いについて」に同意いただいた場合は「上記にご同意の上 確認画面へ進む」のボタンをクリックしてください。
個人情報の取り扱いについて
皆さまが送付された個人情報はアットホーム(株)のサーバを経由し、お問い合わせ先の不動産会社にメールまたはFAXにて転送されるためアットホーム(株)にも保管されます。アットホーム(株)で保管された個人情報の取り扱いについては、【こちら】をご覧ください。
また、本画面でご記入いただいた個人情報は、お問い合わせ先の不動産会社でも保管します。 お問い合わせ先の不動産会社が保管する個人情報の取り扱いについては、不動産会社に直接お問い合わせください。
長崎県知事免許(12)第1597号 |
|---|
- 交通:
- 松浦鉄道西九州線/泉福寺駅 徒歩5分 【バス】 瀬戸越 停歩3分
- 長崎県佐世保市瀬戸越3丁目4-1
- TEL:
- 0956-40-5055
- FAX:
- 0956-49-8011
- 所属団体:
- (公社)長崎県宅地建物取引業協会会員(一社)九州不動産公正取引協議会加盟
取引態様:仲介  - 80500954
|
- スマートフォンで
この不動産会社を見る

|
- 提携サイト等より掲載されている物件情報につきましては、不動産会社詳細情報にリンクされていないものがあります。
- 物件に関するお問合せは、物件詳細ページの「情報提供会社」に表示されている不動産会社へ直接お願いいたします。
- 間取図は、現況を優先させていただきます。
- 映像は物件の一部を撮影したものです。物件の契約にあたっての最終判断はご自身の判断に基づいて行ってください。
- 仲介手数料について

アットホームは物件情報の適正化に努めております。
内容に誤りがある場合にはこちらへご連絡ください。