大阪府大阪市浪速区元町1丁目(なんば駅)の賃貸:物件詳細
交通 所在地 |
駅徒歩 |
賃料 管理費等 |
敷金/保証金 礼金 |
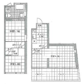
間取り 面積 |
物件種目 築年月 |
地下鉄御堂筋線/なんば
大阪府大阪市浪速区元町1丁目
|
4分
|
14.2万円
8,000円
|
1ヶ月 / なし
1ヶ月
|
3K
54.21m²
|
賃貸マンション
2007年2月(築18年9ヶ月)
|
デザイナーズ、角部屋、最上階、二人入居可、天井高2.5M以上、24時間換気システム、メゾネット
|
間取図
|
|
<
その他の画像
>
|
交通 | 地下鉄御堂筋線 なんば駅 徒歩4分 |
---|
その他の交通 | 地下鉄四つ橋線 なんば駅 徒歩1分 JR関西本線 JR難波駅 徒歩1分 |
所在地 |
大阪府大阪市浪速区元町1丁目
|
物件種目 |
賃貸マンション |
賃料 |
14.2万円 |
管理費等 |
8,000円 |
敷金 / 保証金 |
1ヶ月 / なし |
礼金 |
1ヶ月 |
敷引 |
- |
保証金償却 |
- |
その他一時金 |
退去時クリーニング費用:59,400円、鍵交換代等:22,000円~ |
保険等 |
要 2年 23,000円 |
維持費等 |
- |
間取り |
3K(洋 14.5・5.1・3.6 K 5.3) |
専有面積 |
54.21m² |
築年月 |
2007年2月(築18年9ヶ月)
|
階建 / 階 |
10階建 / メゾネット9階~10階部分 |
建物構造 |
RC |
総戸数 |
- |
主要採光面 |
西 |
駐車場 |
- |
バイク置き場 |
- |
駐輪場 |
有 500円/月 |
建物名・部屋番号 |
|
ペット |
-
|
リフォーム履歴 |
- |
リノベーション履歴 |
- |
備考 |
賃貸保証等:加入要(貸主指定の保証会社に加入要)
管理形態/管理員の勤務形態:-/-
※短期解約違約金有り。
民泊・転貸・レンタルスペースは厳禁。
|
エネルギー消費性能 |
- |
断熱性能 |
- |
目安光熱費 |
- |
バス・トイレ |
浴室暖房、浴室乾燥機、洗面所独立、洗面台、バス・トイレ同室、シャワー、トイレ |
キッチン |
システムキッチン、2口コンロ、ガスコンロ付 |
セキュリティー |
モニター付オートロック、オートロック、モニター付インターホン、ディンプルキー、防犯カメラ |
収納 |
- |
設備・サービス |
エアコン2台以上、室内洗濯機置場、給湯、都市ガス、エアコン、人感センサー付照明、ダウンライト |
TV・通信 |
インターネット対応、光ファイバー |
その他 |
バルコニー、駐輪場、エレベーター |
契約期間 |
2年 |
現況 |
居住中 |
条件等 |
- |
入居可能時期 |
2025年12月中旬予定 |
更新料 |
55,000円 |
物件番号 |
6987973274 |
情報公開日 |
2025年10月10日 |
次回更新予定日 |
2025年10月24日 |
ケータイ用バーコード |
- スマートフォンでこの物件を見る
- スマートフォンからもこの物件をご覧になれます。
|
※「-」と表示されている項目については、情報提供会社にご確認ください。
周辺施設 |
ライフセントラルスクエアなんば店 |
距離 |
222m |
周辺施設 |
セブンイレブンJR難波駅東店 |
距離 |
123m |
周辺施設 |
スターバックスコーヒーJR難波駅前店 |
距離 |
130m |
周辺施設 |
(株)ジュンク堂書店難波店 |
距離 |
96m |
ここから簡単にお問い合わせをすることができます。
(SSLでの暗号化での送信を希望されるお客さまは
こちら
よりお問い合わせください)
お問い合わせを行う前に
「個人情報の取り扱いについて」を必ずお読みください。
「個人情報の取り扱いについて」に同意いただいた場合は「上記にご同意の上 確認画面へ進む」のボタンをクリックしてください。
個人情報の取り扱いについて
皆さまが送付された個人情報はアットホーム(株)のサーバを経由し、お問い合わせ先の不動産会社にメールまたはFAXにて転送されるためアットホーム(株)にも保管されます。アットホーム(株)で保管された個人情報の取り扱いについては、【こちら】をご覧ください。
また、本画面でご記入いただいた個人情報は、お問い合わせ先の不動産会社でも保管します。 お問い合わせ先の不動産会社が保管する個人情報の取り扱いについては、不動産会社に直接お問い合わせください。
大阪府知事免許(5)第51558号 |
---|
- 交通:
- 地下鉄御堂筋線/なんば駅 徒歩3分
- 大阪府大阪市浪速区難波中1丁目14-14 エミューイモト1F
- TEL:
- 06-6636-3500
- FAX:
- 06-6636-3501
- 所属団体:
- (一社)大阪府宅地建物取引業協会会員(公社)近畿地区不動産公正取引協議会加盟
取引態様:仲介  - 50010067
|
- スマートフォンで
この不動産会社を見る

|
- 提携サイト等より掲載されている物件情報につきましては、不動産会社詳細情報にリンクされていないものがあります。
- 物件に関するお問合せは、物件詳細ページの「情報提供会社」に表示されている不動産会社へ直接お願いいたします。
- 間取図は、現況を優先させていただきます。
- 映像は物件の一部を撮影したものです。物件の契約にあたっての最終判断はご自身の判断に基づいて行ってください。
- 仲介手数料について

アットホームは物件情報の適正化に努めております。
内容に誤りがある場合にはこちらへご連絡ください。