福岡県糸島市板持1丁目(波多江駅)の賃貸:物件詳細
交通 所在地 |
駅徒歩 |
賃料 管理費等 |
敷金/保証金 礼金 |
間取り 面積 |
物件種目 築年月 |
JR筑肥線/波多江
福岡県糸島市板持1丁目
|
13分
|
5.4万円
3,000円
|
2ヶ月 / なし
1ヶ月
|
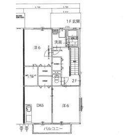
2SDK
53.52m²
|
賃貸アパート
2005年3月(築20年8ヶ月)
|
メゾネット、保証人不要
|
間取図
|
|
<
その他の画像
>
|
交通 | JR筑肥線 波多江駅 徒歩13分 |
---|
その他の交通 | JR筑肥線 周船寺駅 徒歩25分 JR筑肥線 糸島高校前駅 徒歩29分 |
所在地 |
福岡県糸島市板持1丁目
|
物件種目 |
賃貸アパート |
賃料 |
5.4万円 |
管理費等 |
3,000円 |
敷金 / 保証金 |
2ヶ月 / なし |
礼金 |
1ヶ月 |
敷引 |
- |
保証金償却 |
- |
その他一時金 |
鍵交換代等:25,300円~ |
保険等 |
不要 |
維持費等 |
- |
間取り |
2SDK(洋 6・6 DK 6 S 1.5) |
専有面積 |
53.52m² |
築年月 |
2005年3月(築20年8ヶ月)
|
階建 / 階 |
2階建 / メゾネット1階~2階部分 |
建物構造 |
軽量鉄骨造 |
総戸数 |
6戸 |
主要採光面 |
|
駐車場 |
有 4,400円/月 |
バイク置き場 |
- |
駐輪場 |
- |
建物名・部屋番号 |
リバーサイド伊都 201 |
ペット |
-
|
リフォーム履歴 |
- |
リノベーション履歴 |
- |
備考 |
賃貸保証等:加入要(全保連Z-VALUE 保証・保険・振替 2190円/月)
管理形態/管理員の勤務形態:-/-
退去時クリーニング費用 27,000円税込 内装工事中17日から内覧可能
|
エネルギー消費性能 |
- |
断熱性能 |
- |
目安光熱費 |
- |
バス・トイレ |
- |
キッチン |
- |
セキュリティー |
- |
収納 |
- |
設備・サービス |
- |
TV・通信 |
- |
その他 |
- |
契約期間 |
2年 |
現況 |
空家 |
条件等 |
- |
入居可能時期 |
相談 |
更新料 |
なし |
物件番号 |
6987983994 |
情報公開日 |
2025年10月11日 |
次回更新予定日 |
2025年10月25日 |
ケータイ用バーコード |
- スマートフォンでこの物件を見る
- スマートフォンからもこの物件をご覧になれます。
|
※「-」と表示されている項目については、情報提供会社にご確認ください。
周辺施設 |
セブンイレブン前原高田1丁目店 |
距離 |
808m |
周辺施設 |
リンガーハット福岡前原店 |
距離 |
878m |
ここから簡単にお問い合わせをすることができます。
(SSLでの暗号化での送信を希望されるお客さまは
こちら
よりお問い合わせください)
お問い合わせを行う前に
「個人情報の取り扱いについて」を必ずお読みください。
「個人情報の取り扱いについて」に同意いただいた場合は「上記にご同意の上 確認画面へ進む」のボタンをクリックしてください。
個人情報の取り扱いについて
皆さまが送付された個人情報はアットホーム(株)のサーバを経由し、お問い合わせ先の不動産会社にメールまたはFAXにて転送されるためアットホーム(株)にも保管されます。アットホーム(株)で保管された個人情報の取り扱いについては、【こちら】をご覧ください。
また、本画面でご記入いただいた個人情報は、お問い合わせ先の不動産会社でも保管します。 お問い合わせ先の不動産会社が保管する個人情報の取り扱いについては、不動産会社に直接お問い合わせください。
福岡県知事免許(1)第20214号 |
---|
- 交通:
- 地下鉄空港線/博多駅 徒歩22分
- 福岡県福岡市博多区博多駅南4丁目19番29号 駅南第2ケイコービル103号室
- TEL:
- 092-334-1048
- 所属団体:
- (公社)福岡県宅地建物取引業協会会員(一社)九州不動産公正取引協議会加盟
取引態様:仲介  - 80508461
|
- スマートフォンで
この不動産会社を見る

|
- 提携サイト等より掲載されている物件情報につきましては、不動産会社詳細情報にリンクされていないものがあります。
- 物件に関するお問合せは、物件詳細ページの「情報提供会社」に表示されている不動産会社へ直接お願いいたします。
- 間取図は、現況を優先させていただきます。
- 映像は物件の一部を撮影したものです。物件の契約にあたっての最終判断はご自身の判断に基づいて行ってください。
- 仲介手数料について

アットホームは物件情報の適正化に努めております。
内容に誤りがある場合にはこちらへご連絡ください。