埼玉県さいたま市大宮区東町2丁目(大宮駅)の賃貸:物件詳細
交通 所在地 |
駅徒歩 |
賃料 管理費等 |
敷金/保証金 礼金 |
間取り 面積 |
物件種目 築年月 |
JR京浜東北線/大宮
埼玉県さいたま市大宮区東町2丁目
|
13分
|
6.3万円
4,000円
|
なし / なし
0.5ヶ月
|
1K
22.64m²
|
賃貸マンション
2014年5月(築11年6ヶ月)
|
角部屋、IT重説対応物件
|
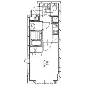
間取図
|
|
<
その他の画像
>
|
交通 | JR京浜東北線 大宮駅 徒歩13分 |
---|
その他の交通 | 東武野田線 北大宮駅 徒歩20分 JR高崎線 さいたま新都心駅 徒歩25分 |
所在地 |
埼玉県さいたま市大宮区東町2丁目
|
物件種目 |
賃貸マンション |
賃料 |
6.3万円 |
管理費等 |
4,000円 |
敷金 / 保証金 |
なし / なし |
礼金 |
0.5ヶ月 |
敷引 |
- |
保証金償却 |
- |
その他一時金 |
退去時クリーニング費用:57,200円、鍵交換代等:30,800円~ |
保険等 |
要 2年 18,000円 火災保険 |
維持費等 |
ReloRent24クラブ:990円/月 |
クレジットカード決済 |
初期費用可 クレジット可能条件等:保証会社Casaで審査承認時のみ利用可能 |
間取り |
1K(洋 6.6) |
専有面積 |
22.64m² |
築年月 |
2014年5月(築11年6ヶ月)
|
階建 / 階 |
4階建 / 3階 |
建物構造 |
RC |
総戸数 |
- |
主要採光面 |
東 |
駐車場 |
無 |
バイク置き場 |
- |
駐輪場 |
有 無料 |
建物名・部屋番号 |
|
ペット |
-
|
アピールポイント |
オンライン内見・オンライン契約対応可能!遠方で現地内見が難しい方もご相談ください!
初期費用カード決済可能!(保証会社Casaで審査承認時のみ利用可能) |
リフォーム履歴 |
- |
リノベーション履歴 |
- |
備考 |
賃貸保証等:加入要(Casa・賃料総額の50%+月次保証料1.5%)
管理形態/管理員の勤務形態:-/-
非喫煙者限定、IT重説対応物件
|
エネルギー消費性能 |
- |
断熱性能 |
- |
目安光熱費 |
- |
バス・トイレ |
バス・トイレ別、浴室暖房、浴室乾燥機、シャワー付洗面化粧台、洗面所独立、洗面所、シャワー、温水洗浄便座、トイレ |
キッチン |
IHクッキングヒーター |
セキュリティー |
オートロック、モニター付インターホン、ディンプルキー、ダブルロックドア、火災警報器(報知機) |
収納 |
全居室収納、クローゼット、シューズボックス |
設備・サービス |
室内洗濯機置場、給湯、全居室フローリング、フローリング、室内物干し、都市ガス、エアコン、照明器具 |
TV・通信 |
インターネット対応、光ファイバー、ケーブルTV |
その他 |
駐輪場、内廊下 |
契約期間 |
2年 |
現況 |
空家 |
条件等 |
- |
入居可能時期 |
即時 |
仲介手数料 |
1.1ヶ月 |
|
|
更新料 |
新賃料 1ヶ月 |
物件番号 |
6988021397 |
情報公開日 |
2025年10月15日 |
次回更新予定日 |
2025年10月29日 |
ケータイ用バーコード |
- スマートフォンでこの物件を見る
- スマートフォンからもこの物件をご覧になれます。
|
※「-」と表示されている項目については、情報提供会社にご確認ください。
周辺施設 |
マルエツ天沼店 |
距離 |
456m |
写真を見る |
周辺施設 |
セブンイレブンさいたま大宮氷川参道店 |
距離 |
348m |
周辺施設 |
ドラッグセイムス堀の内店 |
距離 |
466m |
周辺施設 |
私立国際学院埼玉短期大学 |
距離 |
1557m |
周辺施設 |
医療法人社団双愛会大宮双愛病院 |
距離 |
523m |
ここから簡単にお問い合わせをすることができます。
(SSLでの暗号化での送信を希望されるお客さまは
こちら
よりお問い合わせください)
お問い合わせを行う前に
「個人情報の取り扱いについて」を必ずお読みください。
「個人情報の取り扱いについて」に同意いただいた場合は「上記にご同意の上 確認画面へ進む」のボタンをクリックしてください。
個人情報の取り扱いについて
皆さまが送付された個人情報はアットホーム(株)のサーバを経由し、お問い合わせ先の不動産会社にメールまたはFAXにて転送されるためアットホーム(株)にも保管されます。アットホーム(株)で保管された個人情報の取り扱いについては、【こちら】をご覧ください。
また、本画面でご記入いただいた個人情報は、お問い合わせ先の不動産会社でも保管します。 お問い合わせ先の不動産会社が保管する個人情報の取り扱いについては、不動産会社に直接お問い合わせください。
埼玉県知事免許(2)第23704号 |
---|
- 交通:
- JR京浜東北線/浦和駅 徒歩13分
- 埼玉県さいたま市浦和区仲町3丁目8-10 エクセレンスビル3階
- TEL:
- 048-767-4150
- FAX:
- 048-767-4151
- 所属団体:
- (公社)全日本不動産協会会員(公社)首都圏不動産公正取引協議会加盟
取引態様:仲介  - 00106368
|
- スマートフォンで
この不動産会社を見る

|
- 提携サイト等より掲載されている物件情報につきましては、不動産会社詳細情報にリンクされていないものがあります。
- 物件に関するお問合せは、物件詳細ページの「情報提供会社」に表示されている不動産会社へ直接お願いいたします。
- 間取図は、現況を優先させていただきます。
- 映像は物件の一部を撮影したものです。物件の契約にあたっての最終判断はご自身の判断に基づいて行ってください。
- 仲介手数料について

アットホームは物件情報の適正化に努めております。
内容に誤りがある場合にはこちらへご連絡ください。