神奈川県横浜市南区白妙町3丁目(阪東橋駅)の賃貸:物件詳細
交通 所在地 |
駅徒歩 |
賃料 管理費等 |
敷金/保証金 礼金 |
間取り 面積 |
物件種目 築年月 |
|
ブルーライン/阪東橋
神奈川県横浜市南区白妙町3丁目
|
3分
|
7.6万円
10,000円
|
なし / なし
なし
|
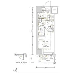
1K
20.86m²
|
賃貸マンション
2019年8月(築6年4ヶ月)
|
ペット相談、分譲タイプ、常時ゴミ出し可能、角部屋、二人入居可、24時間換気システム、外観タイル張り
|
|
間取図
|
外観
|
<
その他の画像
>
|
| 交通 | ブルーライン 阪東橋駅 徒歩3分 |
|---|
| その他の交通 | 京急本線 黄金町駅 徒歩8分 JR根岸線 関内駅 徒歩19分 |
| 所在地 |
神奈川県横浜市南区白妙町3丁目
|
| 物件種目 |
賃貸マンション |
| 賃料 |
7.6万円 |
管理費等 |
10,000円 |
| 敷金 / 保証金 |
なし / なし |
礼金 |
なし |
| 敷引 |
- |
保証金償却 |
- |
| その他一時金 |
事務手数料:11,000円、除菌消臭代:16,500円、退去時退去時エアコンクリーニング費用:16,500円、退去時ハウスクリーニング:55,000円、鍵交換代等:55,000円~ |
保険等 |
要 20,000円 |
| 維持費等 |
緊急サポート料:980円/月 |
| 間取り |
1K |
専有面積 |
20.86m² |
| 築年月 |
2019年8月(築6年4ヶ月)
|
階建 / 階 |
11階建 / 5階 |
| 建物構造 |
RC |
総戸数 |
- |
| 主要採光面 |
南東 |
駐車場 |
- |
| バイク置き場 |
無 |
駐輪場 |
有 |
| 建物名・部屋番号 |
阪東橋KNOTS 501 |
ペット |
小型犬可・ 猫可 |
| アピールポイント |
探されていたのはこういう耳寄りなお話では?礼金敷金(保証金)0円。お探しの方には嬉しいペット(小型犬)相談可。不在時の受け取りも楽々の宅配BOX付、更にスマホやPCの使用には不可欠なインターネット使用料無料の物件なので、端末あれば繋がります。またアクセスのいい阪東橋駅徒歩3分立地の物件で、その上出張時や旅行前でも収集日にしばられることがない常時ゴミ出し可の住戸だから、ゴミ収集の時間や曜日に縛られません。ちなみにシステムキッチン付です。使い勝手のよい1K。是非その目でお確かめください。 |
| リフォーム履歴 |
- |
| リノベーション履歴 |
- |
| 備考 |
賃貸保証等:加入要(初回保証料:総賃料50% 月額保証料:1,000円)
管理形態/管理員の勤務形態:-/-
■短期解約違約金あり:1年未満賃料2ヶ月分 1年以上2年未満賃料1ヶ月分 ■法人契約は、敷金2ヶ月、礼金2ヶ月 ■更新事務料 賃料の0.55ヶ月(税込) ■ペット飼育時、敷金2ヶ月積増(退去時償却) ■外国籍(日本語力不足)・留学生は日本セーフティーのみ。(初回総賃料100% 月額1,250円 口座振替料440円)
|
| エネルギー消費性能 |
- |
| 断熱性能 |
- |
| 目安光熱費 |
- |
| バス・トイレ |
バス・トイレ別、浴室乾燥機、洗面所独立、洗面所、洗面台、シャワー、温水洗浄便座、トイレ |
| キッチン |
システムキッチン、2口コンロ、ガスコンロ付 |
| セキュリティー |
オートロック、モニター付インターホン、ディンプルキー、ダブルロックドア、防犯カメラ |
| 収納 |
全居室収納、収納スペース、シューズボックス |
| 設備・サービス |
室内洗濯機置場、洗濯機置場、フローリング、室内物干し、都市ガス、エアコン、都市ガス暖房、暖房、冷房 |
| TV・通信 |
インターネット使用料無料、CS、BS端子 |
| その他 |
宅配BOX、駐輪場、エレベーター |
| 契約期間 |
2年 |
現況 |
空家 |
| 条件等 |
- |
入居可能時期 |
即時 |
| 更新料 |
- |
物件番号 |
6988054438 |
| 情報公開日 |
2025年10月18日 |
次回更新予定日 |
2025年11月15日 |
| ケータイ用バーコード |
- スマートフォンでこの物件を見る
- スマートフォンからもこの物件をご覧になれます。
|
※「-」と表示されている項目については、情報提供会社にご確認ください。
ここから簡単にお問い合わせをすることができます。
(SSLでの暗号化での送信を希望されるお客さまは
こちら
よりお問い合わせください)
お問い合わせを行う前に
「個人情報の取り扱いについて」を必ずお読みください。
「個人情報の取り扱いについて」に同意いただいた場合は「上記にご同意の上 確認画面へ進む」のボタンをクリックしてください。
個人情報の取り扱いについて
皆さまが送付された個人情報はアットホーム(株)のサーバを経由し、お問い合わせ先の不動産会社にメールまたはFAXにて転送されるためアットホーム(株)にも保管されます。アットホーム(株)で保管された個人情報の取り扱いについては、【こちら】をご覧ください。
また、本画面でご記入いただいた個人情報は、お問い合わせ先の不動産会社でも保管します。 お問い合わせ先の不動産会社が保管する個人情報の取り扱いについては、不動産会社に直接お問い合わせください。
神奈川県知事免許(1)第32553号 |
|---|
- 交通:
- JR根岸線/山手駅
- 神奈川県横浜市中区本郷町2丁目47 コリドール山手1F
- TEL:
- 045-900-5417
- FAX:
- 045-319-4771
- 所属団体:
- (公社)神奈川県宅地建物取引業協会会員(公社)首都圏不動産公正取引協議会加盟
取引態様:仲介  - 00277886
|
- スマートフォンで
この不動産会社を見る

|
- 提携サイト等より掲載されている物件情報につきましては、不動産会社詳細情報にリンクされていないものがあります。
- 物件に関するお問合せは、物件詳細ページの「情報提供会社」に表示されている不動産会社へ直接お願いいたします。
- 間取図は、現況を優先させていただきます。
- 映像は物件の一部を撮影したものです。物件の契約にあたっての最終判断はご自身の判断に基づいて行ってください。
- 仲介手数料について

アットホームは物件情報の適正化に努めております。
内容に誤りがある場合にはこちらへご連絡ください。