福岡県北九州市若松区塩屋4丁目(折尾駅)の賃貸:物件詳細
交通 所在地 |
駅徒歩 |
賃料 管理費等 |
敷金/保証金 礼金 |
間取り 面積 |
物件種目 築年月 |
|
JR鹿児島本線/折尾
福岡県北九州市若松区塩屋4丁目
|
4600m
|
12万円
5,500円
|
なし / なし
2ヶ月
|
3LDK
84.00m²
|
賃貸マンション
2022年2月(築3年11ヶ月)
|
ペット相談、二人入居可、事務所使用可、24時間セキュリティー
|
|
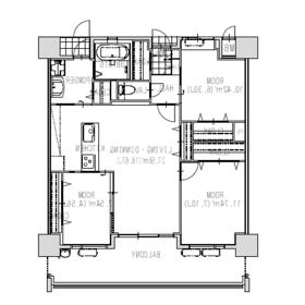
間取図
|
|
<
その他の画像
>
|
| 交通 | JR鹿児島本線 折尾駅 徒歩4600m |
| 所在地 |
福岡県北九州市若松区塩屋4丁目
|
| 物件種目 |
賃貸マンション |
| 賃料 |
12万円 |
管理費等 |
5,500円 |
| 敷金 / 保証金 |
なし / なし |
礼金 |
2ヶ月 |
| 敷引 |
- |
保証金償却 |
- |
| その他一時金 |
なし、鍵交換代等:9,900円~ |
保険等 |
要 2年 22,000円 e-net少額短期保険 |
| 維持費等 |
安心サポート:880円/月 |
| 間取り |
3LDK(洋 7.1・6.2・4.5 LDK 16.7) |
専有面積 |
84.00m² |
| 築年月 |
2022年2月(築3年11ヶ月)
|
階建 / 階 |
12階建 / 9階 |
| 建物構造 |
RC |
総戸数 |
- |
| 主要採光面 |
|
駐車場 |
有 6,600円/月 |
| バイク置き場 |
- |
駐輪場 |
有 |
| 建物名・部屋番号 |
LEGEND111 910 |
ペット |
小型犬可・ 共益費+1000円/匹 |
| アピールポイント |
探されていたのはこういう耳寄りなお話では?敷金(保証金)0円。お探しの方には嬉しいペット(小型犬)相談可、事務所利用可。侵入者やガス漏れ、火災などを監視する24時間セキュリティー有の住居、更に複製が難しくピッキングに強いカードキー採用なので、先端技術で空き巣や犯罪から家を守ります。また広々とした延床面積84㎡の居室空間で、その上留守番いらずの宅配BOX付なので、ネット通販大好き派にはお勧めです。ちなみに転居後のネット接続がスムーズに行えるインターネット使用料無料の物件です。自然に団らんが生まれる3LDK。是非その目でお確かめください。 |
| リフォーム履歴 |
- |
| リノベーション履歴 |
- |
| 備考 |
賃貸保証等:加入要(初回総賃料の80%(最低保証料25,000円) 月額550円(引落手数料込み))
管理形態/管理員の勤務形態:-/-
|
| エネルギー消費性能 |
- |
| 断熱性能 |
- |
| 目安光熱費 |
- |
| バス・トイレ |
バス・トイレ別、浴室乾燥機、追焚機能、シャワー付洗面化粧台、洗面所独立、洗面所、シャワー、温水洗浄便座、トイレ |
| キッチン |
カウンターキッチン、3口以上コンロ、ガスコンロ付 |
| セキュリティー |
オートロック、モニター付インターホン、カードキー、防犯カメラ、火災警報器(報知機) |
| 収納 |
全居室収納、収納スペース、クローゼット、シューズボックス |
| 設備・サービス |
室内洗濯機置場、洗濯機置場、プロパンガス、エアコン |
| TV・通信 |
インターネット対応、インターネット使用料無料、ケーブルTV、CS |
| その他 |
宅配BOX、エレベーター2基以上、バルコニー、駐輪場、エレベーター |
| 契約期間 |
2年 |
現況 |
空家 |
| 条件等 |
- |
入居可能時期 |
即時 |
| 更新料 |
なし |
物件番号 |
6988116165 |
| 情報公開日 |
2025年10月23日 |
次回更新予定日 |
2026年1月5日 |
| ケータイ用バーコード |
- スマートフォンでこの物件を見る
- スマートフォンからもこの物件をご覧になれます。
|
※「-」と表示されている項目については、情報提供会社にご確認ください。
| 周辺施設 |
おしゃれ生活空間シャンブルひびきの店 |
| 距離 |
370m |
| 周辺施設 |
ディスカウントドラッグコスモスひびきの店 |
| 距離 |
1067m |
| 周辺施設 |
北九州市立大学ひびきのキャンパス |
| 距離 |
985m |
| 周辺施設 |
北九州市立ひびきの小学校 |
| 距離 |
954m |
ここから簡単にお問い合わせをすることができます。
(SSLでの暗号化での送信を希望されるお客さまは
こちら
よりお問い合わせください)
お問い合わせを行う前に
「個人情報の取り扱いについて」を必ずお読みください。
「個人情報の取り扱いについて」に同意いただいた場合は「上記にご同意の上 確認画面へ進む」のボタンをクリックしてください。
個人情報の取り扱いについて
皆さまが送付された個人情報はアットホーム(株)のサーバを経由し、お問い合わせ先の不動産会社にメールまたはFAXにて転送されるためアットホーム(株)にも保管されます。アットホーム(株)で保管された個人情報の取り扱いについては、【こちら】をご覧ください。
また、本画面でご記入いただいた個人情報は、お問い合わせ先の不動産会社でも保管します。 お問い合わせ先の不動産会社が保管する個人情報の取り扱いについては、不動産会社に直接お問い合わせください。
福岡県知事免許(2)第18654号 |
|---|
- 交通:
- JR鹿児島本線/折尾駅 【バス】 市営バス ひびきの東 停歩6分
- 福岡県北九州市若松区小敷ひびきの1丁目16番12号 LEGEND157 103号
- TEL:
- 093-742-1777
- FAX:
- 093-742-1778
- 所属団体:
- (公社)福岡県宅地建物取引業協会会員(一社)九州不動産公正取引協議会加盟
取引態様:代理  - 80503711
|
- スマートフォンで
この不動産会社を見る

|
- 提携サイト等より掲載されている物件情報につきましては、不動産会社詳細情報にリンクされていないものがあります。
- 物件に関するお問合せは、物件詳細ページの「情報提供会社」に表示されている不動産会社へ直接お願いいたします。
- 間取図は、現況を優先させていただきます。
- 映像は物件の一部を撮影したものです。物件の契約にあたっての最終判断はご自身の判断に基づいて行ってください。
- 仲介手数料について

アットホームは物件情報の適正化に努めております。
内容に誤りがある場合にはこちらへご連絡ください。