東京都豊島区東池袋3丁目(大塚駅)の賃貸:物件詳細
交通 所在地 |
駅徒歩 |
賃料 管理費等 |
敷金/保証金 礼金 |
間取り 面積 |
物件種目 築年月 |
|
JR山手線/大塚
東京都豊島区東池袋3丁目
|
8分
|
31.5万円
15,000円
|
1ヶ月 / なし
1ヶ月
|
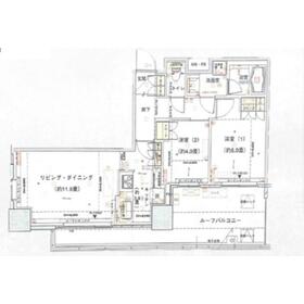
2LDK
57.19m²
|
賃貸マンション
2008年1月(築17年10ヶ月)
|
常時ゴミ出し可能、24時間セキュリティー
|
|
間取図
|
|
その他の画像
|
| 交通 | JR山手線 大塚駅 徒歩8分 |
|---|
| その他の交通 | JR山手線 池袋駅 徒歩13分 |
| 所在地 |
東京都豊島区東池袋3丁目
|
| 物件種目 |
賃貸マンション |
| 賃料 |
31.5万円 |
管理費等 |
15,000円 |
| 敷金 / 保証金 |
1ヶ月 / なし |
礼金 |
1ヶ月 |
| 敷引 |
- |
保証金償却 |
- |
| その他一時金 |
- |
保険等 |
要 火災 |
| 維持費等 |
- |
| 間取り |
2LDK |
専有面積 |
57.19m² |
| 築年月 |
2008年1月(築17年10ヶ月)
|
階建 / 階 |
地上31階地下2階建 / 20階 |
| 建物構造 |
RC |
総戸数 |
- |
| 主要採光面 |
|
駐車場 |
無 |
| バイク置き場 |
- |
駐輪場 |
- |
| 建物名・部屋番号 |
パークタワー池袋イーストプレイス 2003 |
ペット |
-
|
| アピールポイント |
ゆったりめの延床面積57.19㎡の居室空間、更に常時ゴミ出し可なので、室内にゴミを溜めず居住空間をいつもすっきりと生活できます。また昼夜を問わず対応する24時間セキュリティー採用で、その上夕食の支度をしながら翌日の献立も調理できるコンロ3口以上は調理時間の時短の強い味方です。ちなみに利用者を分散するエレベーター2基以上有です。家族が帰宅を焦がれる2LDK。是非見学にお越しください。 |
| リフォーム履歴 |
- |
| リノベーション履歴 |
- |
| 備考 |
管理形態/管理員の勤務形態:-/-
非喫煙者限定
|
| エネルギー消費性能 |
- |
| 断熱性能 |
- |
| 目安光熱費 |
- |
| バス・トイレ |
バス・トイレ別、洗面所独立、温水洗浄便座 |
| キッチン |
3口以上コンロ |
| セキュリティー |
オートロック |
| 収納 |
クローゼット |
| 設備・サービス |
エアコン |
| TV・通信 |
- |
| その他 |
エレベーター2基以上、バルコニー |
| 契約期間 |
2年 |
現況 |
居住中 |
| 条件等 |
定期借家 |
入居可能時期 |
相談 |
| 更新料 |
新賃料 1ヶ月 |
物件番号 |
6988141296 |
| 情報公開日 |
2025年10月25日 |
次回更新予定日 |
2025年11月8日 |
| ケータイ用バーコード |
- スマートフォンでこの物件を見る
- スマートフォンからもこの物件をご覧になれます。
|
※「-」と表示されている項目については、情報提供会社にご確認ください。
ここから簡単にお問い合わせをすることができます。
(SSLでの暗号化での送信を希望されるお客さまは
こちら
よりお問い合わせください)
お問い合わせを行う前に
「個人情報の取り扱いについて」を必ずお読みください。
「個人情報の取り扱いについて」に同意いただいた場合は「上記にご同意の上 確認画面へ進む」のボタンをクリックしてください。
個人情報の取り扱いについて
皆さまが送付された個人情報はアットホーム(株)のサーバを経由し、お問い合わせ先の不動産会社にメールまたはFAXにて転送されるためアットホーム(株)にも保管されます。アットホーム(株)で保管された個人情報の取り扱いについては、【こちら】をご覧ください。
また、本画面でご記入いただいた個人情報は、お問い合わせ先の不動産会社でも保管します。 お問い合わせ先の不動産会社が保管する個人情報の取り扱いについては、不動産会社に直接お問い合わせください。
東京都知事免許(6)第78467号 |
|---|
- 交通:
- JR山手線/高田馬場駅 徒歩1分
- 東京都新宿区高田馬場4丁目8-4 ORAGAビル9FB
- TEL:
- 03-5332-6155
- FAX:
- 03-5332-6158
- 所属団体:
- (公社)全日本不動産協会会員(公社)首都圏不動産公正取引協議会加盟
取引態様:仲介  - 00353161
|
- スマートフォンで
この不動産会社を見る

|
- 提携サイト等より掲載されている物件情報につきましては、不動産会社詳細情報にリンクされていないものがあります。
- 物件に関するお問合せは、物件詳細ページの「情報提供会社」に表示されている不動産会社へ直接お願いいたします。
- 間取図は、現況を優先させていただきます。
- 映像は物件の一部を撮影したものです。物件の契約にあたっての最終判断はご自身の判断に基づいて行ってください。
- 仲介手数料について

アットホームは物件情報の適正化に努めております。
内容に誤りがある場合にはこちらへご連絡ください。