群馬県前橋市国領町2丁目(前橋駅)の賃貸:物件詳細
交通 所在地 |
駅徒歩 |
賃料 管理費等 |
敷金/保証金 礼金 |
間取り 面積 |
物件種目 築年月 |
|
JR両毛線/前橋
群馬県前橋市国領町2丁目
|
39分
|
12万円
-
|
12万円 / なし
12万円
|
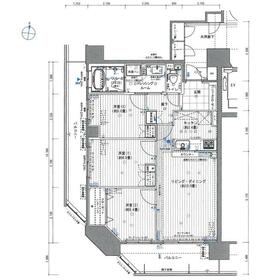
3LDK
73.13m²
|
賃貸マンション
2008年8月(築17年4ヶ月)
|
角部屋、南向き、24時間換気システム、バリアフリー、外観タイル張り
|
|
間取図
|
外観
周辺より一際高い建物となっています
|
<
その他の画像
>
|
| 交通 | JR両毛線 前橋駅 徒歩39分 |
|---|
| その他の交通 | 上毛電鉄 中央前橋駅 徒歩27分 |
| 所在地 |
群馬県前橋市国領町2丁目
|
| 物件種目 |
賃貸マンション |
| 賃料 |
12万円 |
管理費等 |
- |
| 敷金 / 保証金 |
12万円 / なし |
礼金 |
12万円 |
| 敷引 |
- |
保証金償却 |
- |
| その他一時金 |
鍵交換代等:26,400円~ |
保険等 |
要 2年 25,000円 損害 |
| 維持費等 |
トラブルサポート24:1,100円/月 |
| 間取り |
3LDK(洋 6・5.4・5 LDK 15.4) |
専有面積 |
73.13m² |
| 築年月 |
2008年8月(築17年4ヶ月)
|
階建 / 階 |
14階建 / 12階 |
| 建物構造 |
RC |
総戸数 |
54戸 |
| 主要採光面 |
南 |
駐車場 |
有 無料 |
| バイク置き場 |
有 1,000円/月 |
駐輪場 |
有 無料 |
| 建物名・部屋番号 |
|
ペット |
-
|
| リフォーム履歴 |
- |
| リノベーション履歴 |
- |
| 備考 |
賃貸保証等:加入要(初回:月額合計賃料の60%/月次手数料:月額合計賃料の1.7%)
管理形態/管理員の勤務形態:-/-
バルコニー:20.28m²
敷地内に無料駐車場1台分付き!2台目をご希望の方には、近隣の月極駐車場をご案内いたしますので、お気軽にご相談ください(契約可能)。
|
| エネルギー消費性能 |
- |
| 断熱性能 |
- |
| 目安光熱費 |
- |
| バス・トイレ |
バス・トイレ別、浴室乾燥機、追焚機能、洗面所独立、シャワー、温水洗浄便座 |
| キッチン |
カウンターキッチン、システムキッチン、浄水器、3口以上コンロ |
| セキュリティー |
オートロック、モニター付インターホン、ディンプルキー、火災警報器(報知機) |
| 収納 |
収納スペース、シューズボックス |
| 設備・サービス |
全居室エアコン、室内洗濯機置場、全居室フローリング、都市ガス、都市ガス暖房、人感センサー付照明、照明器具 |
| TV・通信 |
インターネット使用料無料、CS、BS端子 |
| その他 |
宅配BOX、バイク置き場、来客用駐車場、二面バルコニー、駐輪場、エレベーター |
| 契約期間 |
2年 |
現況 |
空家 |
| 条件等 |
- |
入居可能時期 |
2025年11月中旬予定 |
| 更新料 |
新賃料 1ヶ月 |
物件番号 |
6988142148 |
| 情報公開日 |
2025年10月25日 |
次回更新予定日 |
2025年11月18日 |
| ケータイ用バーコード |
- スマートフォンでこの物件を見る
- スマートフォンからもこの物件をご覧になれます。
|
※「-」と表示されている項目については、情報提供会社にご確認ください。
| 周辺施設 |
デニーズ前橋下小出典 |
| 距離 |
180m |
写真を見る |
| 周辺施設 |
ファミリーマート前橋下小出町店 |
| 距離 |
400m |
写真を見る |
| 周辺施設 |
市立若宮小学校 |
| 距離 |
220m |
写真を見る |
| 周辺施設 |
群馬大学医学部付属病院 |
| 距離 |
650m |
写真を見る |
| 周辺施設 |
ゴールドジム(スポーツジム) |
| 距離 |
55m |
写真を見る |
ここから簡単にお問い合わせをすることができます。
(SSLでの暗号化での送信を希望されるお客さまは
こちら
よりお問い合わせください)
お問い合わせを行う前に
「個人情報の取り扱いについて」を必ずお読みください。
「個人情報の取り扱いについて」に同意いただいた場合は「上記にご同意の上 確認画面へ進む」のボタンをクリックしてください。
個人情報の取り扱いについて
皆さまが送付された個人情報はアットホーム(株)のサーバを経由し、お問い合わせ先の不動産会社にメールまたはFAXにて転送されるためアットホーム(株)にも保管されます。アットホーム(株)で保管された個人情報の取り扱いについては、【こちら】をご覧ください。
また、本画面でご記入いただいた個人情報は、お問い合わせ先の不動産会社でも保管します。 お問い合わせ先の不動産会社が保管する個人情報の取り扱いについては、不動産会社に直接お問い合わせください。
群馬県知事免許(3)第7063号 |
|---|
- 交通:
- JR両毛線/前橋駅 【バス】14分 上小出 停歩3分
- 群馬県前橋市下小出町3丁目16番地1
- TEL:
- 027-226-1556
- FAX:
- 027-226-1566
- 所属団体:
- (一社)群馬県宅地建物取引業協会会員(一社)全国賃貸不動産管理業協会会員(公社)首都圏不動産公正取引協議会加盟
取引態様:代理  - 00105414
|
- スマートフォンで
この不動産会社を見る

|
- 提携サイト等より掲載されている物件情報につきましては、不動産会社詳細情報にリンクされていないものがあります。
- 物件に関するお問合せは、物件詳細ページの「情報提供会社」に表示されている不動産会社へ直接お願いいたします。
- 間取図は、現況を優先させていただきます。
- 映像は物件の一部を撮影したものです。物件の契約にあたっての最終判断はご自身の判断に基づいて行ってください。
- 仲介手数料について

アットホームは物件情報の適正化に努めております。
内容に誤りがある場合にはこちらへご連絡ください。