東京都江戸川区平井6丁目(平井駅)の賃貸:物件詳細
交通 所在地 |
駅徒歩 |
賃料 管理費等 |
敷金/保証金 礼金 |
間取り 面積 |
物件種目 築年月 |
|
JR総武線/平井
東京都江戸川区平井6丁目
|
6分
|
5.5万円
10,000円
|
5.5万円 / なし
なし
|
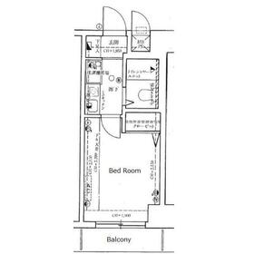
1K
17.60m²
|
賃貸マンション
1993年2月(築32年10ヶ月)
|
常時ゴミ出し可能、24時間換気システム、保証人不要
|
|
間取図
|
外観
|
<
その他の画像
>
|
| 交通 | JR総武線 平井駅 徒歩6分 |
|---|
| その他の交通 | 東武亀戸線 東あずま駅 徒歩15分 |
| 所在地 |
東京都江戸川区平井6丁目
|
| 物件種目 |
賃貸マンション |
| 賃料 |
5.5万円 |
管理費等 |
10,000円 |
| 敷金 / 保証金 |
5.5万円 / なし |
礼金 |
なし |
| 敷引 |
- |
保証金償却 |
解約時5.50万円 |
| その他一時金 |
なし、鍵交換代等:33,000円~ |
保険等 |
要 2年 20,000円 |
| 維持費等 |
- |
| 間取り |
1K |
専有面積 |
17.60m² |
| 築年月 |
1993年2月(築32年10ヶ月)
|
階建 / 階 |
12階建 / 2階 |
| 建物構造 |
SRC |
総戸数 |
88戸 |
| 主要採光面 |
|
駐車場 |
空無 |
| バイク置き場 |
空無 |
駐輪場 |
空無 |
| 建物名・部屋番号 |
アーバンヒルズ平井 207 |
ペット |
-
|
| アピールポイント |
バイク置場空無,駐輪場空無,保証人不要,常時ゴミ出し可能,24時間換気システム,B・T同室,シャワー,トイレ,洗面台,IHクッキングヒーター,システムキッチン,収納スペース,クローゼット,シューズボックス,室内洗濯機置場,洗濯機置場,給湯,都市ガス,エアコン,インターネット対応,オートロック,防犯カメラ,バルコニー,エレベーター |
| リフォーム履歴 |
- |
| リノベーション履歴 |
- |
| 備考 |
賃貸保証等:加入要(原則:初回50%、年次更新料1万円、口座振替手数料440円)
管理形態/管理員の勤務形態:-/-
物件番号【3807】
|
| エネルギー消費性能 |
- |
| 断熱性能 |
- |
| 目安光熱費 |
- |
| バス・トイレ |
洗面台、バス・トイレ同室、シャワー、トイレ |
| キッチン |
システムキッチン、IHクッキングヒーター |
| セキュリティー |
オートロック、防犯カメラ |
| 収納 |
収納スペース、クローゼット、シューズボックス |
| 設備・サービス |
室内洗濯機置場、洗濯機置場、給湯、都市ガス、エアコン |
| TV・通信 |
インターネット対応 |
| その他 |
バイク置き場、バルコニー、駐輪場、エレベーター |
| 契約期間 |
2年 |
現況 |
居住中 |
| 条件等 |
- |
入居可能時期 |
相談 |
| 更新料 |
55,000円 |
物件番号 |
6988171966 |
| 情報公開日 |
2025年10月27日 |
次回更新予定日 |
2025年11月10日 |
| ケータイ用バーコード |
- スマートフォンでこの物件を見る
- スマートフォンからもこの物件をご覧になれます。
|
※「-」と表示されている項目については、情報提供会社にご確認ください。
| 周辺施設 |
Food warehouseシャポーロコ平井店 |
| 距離 |
460m |
| 周辺施設 |
どらっぐぱぱす平井駅前店 |
| 距離 |
281m |
ここから簡単にお問い合わせをすることができます。
(SSLでの暗号化での送信を希望されるお客さまは
こちら
よりお問い合わせください)
お問い合わせを行う前に
「個人情報の取り扱いについて」を必ずお読みください。
「個人情報の取り扱いについて」に同意いただいた場合は「上記にご同意の上 確認画面へ進む」のボタンをクリックしてください。
個人情報の取り扱いについて
皆さまが送付された個人情報はアットホーム(株)のサーバを経由し、お問い合わせ先の不動産会社にメールまたはFAXにて転送されるためアットホーム(株)にも保管されます。アットホーム(株)で保管された個人情報の取り扱いについては、【こちら】をご覧ください。
また、本画面でご記入いただいた個人情報は、お問い合わせ先の不動産会社でも保管します。 お問い合わせ先の不動産会社が保管する個人情報の取り扱いについては、不動産会社に直接お問い合わせください。
東京都知事免許(9)第56581号 |
|---|
- 交通:
- 都営新宿線/一之江駅 徒歩1分
- 東京都江戸川区一之江8丁目10-6
- TEL:
- 03-5662-7201
- FAX:
- 03-5662-7208
- 所属団体:
- (公社)東京都宅地建物取引業協会会員(公社)首都圏不動産公正取引協議会加盟
取引態様:仲介  - 00312320
|
- スマートフォンで
この不動産会社を見る

|
- 提携サイト等より掲載されている物件情報につきましては、不動産会社詳細情報にリンクされていないものがあります。
- 物件に関するお問合せは、物件詳細ページの「情報提供会社」に表示されている不動産会社へ直接お願いいたします。
- 間取図は、現況を優先させていただきます。
- 映像は物件の一部を撮影したものです。物件の契約にあたっての最終判断はご自身の判断に基づいて行ってください。
- 仲介手数料について

アットホームは物件情報の適正化に努めております。
内容に誤りがある場合にはこちらへご連絡ください。