東京都港区麻布台1丁目(六本木一丁目駅)の賃貸:物件詳細
				
					
					
				
														
	
		
			
				交通 所在地 | 
				駅徒歩 | 
				賃料 管理費等 | 
				敷金/保証金 礼金 | 
				間取り 面積 | 
				物件種目 築年月 | 
			
		
		
			
								| 
					 東京メトロ南北線/六本木一丁目
												 
											 
					東京都港区麻布台1丁目 
				 | 
								
					 1分 
				 | 
								
					 39万円 
					なし 
				 | 
								
					 2ヶ月 / なし 
					1ヶ月 
				 | 
								
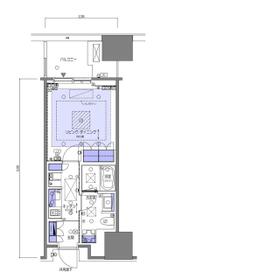
					 1K 
					32.68m² 
				 | 
								
					 賃貸マンション 
					2025年10月
										 
																  
															 
				 | 
			
						
				 ペット相談
  | 
			
					
	
		
		
		
					| 
			 間取図 
			
			
			
			
			
		 | 
		
			 外観 
			
			
			
			
			
		 | 
				
		
		
			
				
										<
										
						
							 
							その他の画像
						 
					 
					
										>
									 
				
			 
		 | 
	
				
 
	
		
			
																			          | 交通 | 東京メトロ南北線 六本木一丁目駅 徒歩1分  | 
|---|
| その他の交通 | 東京メトロ日比谷線 神谷町駅 徒歩8分  | 
			
				| 所在地 | 
				
					東京都港区麻布台1丁目
				 | 
			
			
				| 物件種目 | 
				賃貸マンション | 
			
		
		
			
				| 賃料 | 
				39万円 | 
				管理費等 | 
				なし | 
			
			
				| 敷金 / 保証金 | 
				2ヶ月 / なし | 
				礼金 | 
				1ヶ月 | 
			
			
				| 敷引 | 
				0.5ヶ月 | 
				保証金償却 | 
				- | 
			
			
				| その他一時金 | 
				- | 
				保険等 | 
				要 2年 20,000円 借家人賠償責任 | 
			
						
				| 維持費等 | 
				- | 
			
					
		
			
				| 間取り | 
				1K(洋 9 K 3) | 
				専有面積 | 
				32.68m² | 
			
			
				| 築年月 | 
				2025年10月
									  
												 | 
				階建 / 階 | 
				地上64階地下5階建 / 6階 | 
			
			
				| 建物構造 | 
				RC | 
				総戸数 | 
				970戸 | 
			
			
				| 主要採光面 | 
				北 | 
				駐車場 | 
				- | 
			
			
				| バイク置き場 | 
				- | 
				駐輪場 | 
				- | 
			
			
				| 建物名・部屋番号 | 
				  | 
				ペット | 
				
													小型犬可・									猫可・									1匹、敷3償却1賃料4万増額												 | 
			
						
				| リフォーム履歴 | 
				- | 
			
			
				| リノベーション履歴 | 
				- | 
			
			
				| 備考 | 
				
					 
																	賃貸保証等:加入要(初年度50%、次年度から1万)
											 						管理形態/管理員の勤務形態:-/-
											 						バルコニー:5m²
											 						非喫煙者限定
										 
					
				 | 
			
		
				
		
		| エネルギー消費性能 | 
		- | 
	
	
		| 断熱性能 | 
		- | 
	
	
		| 目安光熱費 | 
		- | 
	
	
		
									
				| バス・トイレ | 
				バス・トイレ別、浴室乾燥機、オートバス、追焚機能、洗面所独立、温水洗浄便座 | 
			
						
				| キッチン | 
				システムキッチン、ディスポーザー、2口コンロ | 
			
						
				| セキュリティー | 
				モニター付オートロック、モニター付インターホン | 
			
						
				| 収納 | 
				クローゼット、シューズボックス | 
			
						
				| 設備・サービス | 
				床暖房、室内洗濯機置場、給湯、全居室フローリング、ビルトインエアコン | 
			
						
				| TV・通信 | 
				インターネット対応、光ファイバー、CS、BS端子 | 
			
						
				| その他 | 
				宅配BOX、フィットネス施設、共用シアタールーム、共用ゲストルーム、共用パーティルーム、車寄せスペース、バルコニー、エレベーター | 
			
					
		
			
				| 契約期間 | 
				2027年11月30日まで | 
				現況 | 
				空家 | 
			
			
				| 条件等 | 
				定期借家  | 
				入居可能時期 | 
				即時 | 
			
						
				| 更新料 | 
				- | 
				物件番号 | 
				6988174395 | 
			
			
				| 情報公開日 | 
				2025年10月30日 | 
				次回更新予定日 | 
				2025年11月14日 | 
			
						
				| ケータイ用バーコード | 
				
				
					
					
						
							- スマートフォンでこの物件を見る
 
							- スマートフォンからもこの物件をご覧になれます。
 
						 
					 
				 
				 | 
			
					
	 
	 									※「-」と表示されている項目については、情報提供会社にご確認ください。
									
												
					
					  ここから簡単にお問い合わせをすることができます。
(SSLでの暗号化での送信を希望されるお客さまは
													こちら
											  よりお問い合わせください)
					  
					
						
						
					
					お問い合わせを行う前に
「個人情報の取り扱いについて」を必ずお読みください。
「個人情報の取り扱いについて」に同意いただいた場合は「上記にご同意の上 確認画面へ進む」のボタンをクリックしてください。 
 
					
					
						個人情報の取り扱いについて
						皆さまが送付された個人情報はアットホーム(株)のサーバを経由し、お問い合わせ先の不動産会社にメールまたはFAXにて転送されるためアットホーム(株)にも保管されます。アットホーム(株)で保管された個人情報の取り扱いについては、【こちら】をご覧ください。
						また、本画面でご記入いただいた個人情報は、お問い合わせ先の不動産会社でも保管します。 お問い合わせ先の不動産会社が保管する個人情報の取り扱いについては、不動産会社に直接お問い合わせください。
					 
				 
				
														
				  
				  
					(株)ティーケーアセット東京都知事免許(4)第90398号  | 
|---|
- 交通:
 - 東京メトロ銀座線/外苑前駅 徒歩1分
 - 東京都港区南青山2丁目22-14 フォンテ青山1304
 - TEL:
 - 050-3187-4404
 - 所属団体:
 - (公社)全日本不動産協会会員(公社)首都圏不動産公正取引協議会加盟
 
 取引態様:仲介  | 
						  						
					  
					 
				   
				 
							
						
												
			
					
- 提携サイト等より掲載されている物件情報につきましては、不動産会社詳細情報にリンクされていないものがあります。
 
- 物件に関するお問合せは、物件詳細ページの「情報提供会社」に表示されている不動産会社へ直接お願いいたします。
 
- 間取図は、現況を優先させていただきます。
 
- 映像は物件の一部を撮影したものです。物件の契約にあたっての最終判断はご自身の判断に基づいて行ってください。
 
- 仲介手数料について

 
アットホームは物件情報の適正化に努めております。
内容に誤りがある場合にはこちらへご連絡ください。