東京都目黒区下目黒3丁目(目黒駅)の賃貸:物件詳細
交通 所在地 |
駅徒歩 |
賃料 管理費等 |
敷金/保証金 礼金 |
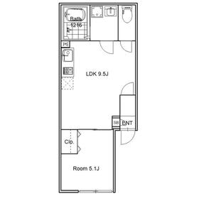
間取り 面積 |
物件種目 築年月 |
|
JR山手線/目黒
東京都目黒区下目黒3丁目
|
13分
|
17.3万円
7,000円
|
なし / なし
1ヶ月
|
1LDK
34.25m²
|
賃貸マンション
2025年8月
|
角部屋、最上階、二人入居可
|
|
間取図
|
|
<
その他の画像
>
|
| 交通 | JR山手線 目黒駅 徒歩13分 |
|---|
| その他の交通 | 東急目黒線 不動前駅 徒歩8分 東急目黒線 武蔵小山駅 徒歩15分 |
| 所在地 |
東京都目黒区下目黒3丁目
|
| 物件種目 |
賃貸マンション |
| 賃料 |
17.3万円 |
管理費等 |
7,000円 |
| 敷金 / 保証金 |
なし / なし |
礼金 |
1ヶ月 |
| 敷引 |
- |
保証金償却 |
- |
| その他一時金 |
住宅総合保険料:25,000円、入居者サポート:16,500円、退去時クリーニング費用(契約時):77,000円 |
保険等 |
要 2年 25,000円 |
| 維持費等 |
- |
| 間取り |
1LDK(洋 5.1) |
専有面積 |
34.25m² |
| 築年月 |
2025年8月
|
階建 / 階 |
地上3階地下1階建 / 3階 |
| 建物構造 |
RC |
総戸数 |
8戸 |
| 主要採光面 |
南東 |
駐車場 |
無 |
| バイク置き場 |
無 |
駐輪場 |
無 |
| 建物名・部屋番号 |
ロータスコート目黒不動前 401 |
ペット |
-
|
| リフォーム履歴 |
- |
| リノベーション履歴 |
- |
| 備考 |
賃貸保証等:加入要(エルズサポート 初回賃料総額の50%、月額保証料1.2%、引落手数料440円)
管理形態/管理員の勤務形態:-/不在
非喫煙者限定
・短期解約違約金あり 1年未満解約賃料総額2ヶ月分、1年以上2年未満解約賃料総額1ヶ月分。
・更新時事務手数料11,000円(税込)あり。
・退去時クリーニング費用(契約時):70,000円(税別)
・駐輪不可・事務所使用不可・喫煙不可・楽器不可・ペット不可
|
| エネルギー消費性能 |
- |
| 断熱性能 |
- |
| 目安光熱費 |
- |
| バス・トイレ |
バス・トイレ別、浴室乾燥機、追焚機能、洗面所独立、洗面所、洗面台、シャワー、温水洗浄便座、トイレ |
| キッチン |
システムキッチン、IHクッキングヒーター、2口コンロ |
| セキュリティー |
オートロック、モニター付インターホン |
| 収納 |
クローゼット、シューズボックス |
| 設備・サービス |
エアコン2台以上、室内洗濯機置場、洗濯機置場、給湯、室内物干し、都市ガス、エアコン |
| TV・通信 |
インターネット対応 |
| その他 |
宅配BOX |
| 契約期間 |
2年 |
現況 |
完成済 |
| 条件等 |
- |
入居可能時期 |
即時 |
| 更新料 |
新賃料 1ヶ月 |
物件番号 |
6988178827 |
| 情報公開日 |
2025年10月28日 |
次回更新予定日 |
2025年11月11日 |
| ケータイ用バーコード |
- スマートフォンでこの物件を見る
- スマートフォンからもこの物件をご覧になれます。
|
※「-」と表示されている項目については、情報提供会社にご確認ください。
| 周辺施設 |
スーパーオオゼキ目黒不動前店 |
| 距離 |
426m |
| 周辺施設 |
ファミリーマート伊豆屋下目黒三丁目店 |
| 距離 |
124m |
| 周辺施設 |
ドトールコーヒーショップ不動前店 |
| 距離 |
565m |
| 周辺施設 |
コナミスポーツクラブ目黒 |
| 距離 |
724m |
ここから簡単にお問い合わせをすることができます。
(SSLでの暗号化での送信を希望されるお客さまは
こちら
よりお問い合わせください)
お問い合わせを行う前に
「個人情報の取り扱いについて」を必ずお読みください。
「個人情報の取り扱いについて」に同意いただいた場合は「上記にご同意の上 確認画面へ進む」のボタンをクリックしてください。
個人情報の取り扱いについて
皆さまが送付された個人情報はアットホーム(株)のサーバを経由し、お問い合わせ先の不動産会社にメールまたはFAXにて転送されるためアットホーム(株)にも保管されます。アットホーム(株)で保管された個人情報の取り扱いについては、【こちら】をご覧ください。
また、本画面でご記入いただいた個人情報は、お問い合わせ先の不動産会社でも保管します。 お問い合わせ先の不動産会社が保管する個人情報の取り扱いについては、不動産会社に直接お問い合わせください。
国土交通大臣免許(4)第7232号 |
|---|
- 交通:
- 東急目黒線/不動前駅 徒歩1分
- 東京都品川区西五反田4丁目32-15
- TEL:
- 03-5740-6651
- FAX:
- 03-5740-6650
- 所属団体:
- (公社)全日本不動産協会会員不動産公正取引協議会加盟
取引態様:仲介  - 00068042
|
- スマートフォンで
この不動産会社を見る

|
- 提携サイト等より掲載されている物件情報につきましては、不動産会社詳細情報にリンクされていないものがあります。
- 物件に関するお問合せは、物件詳細ページの「情報提供会社」に表示されている不動産会社へ直接お願いいたします。
- 間取図は、現況を優先させていただきます。
- 映像は物件の一部を撮影したものです。物件の契約にあたっての最終判断はご自身の判断に基づいて行ってください。
- 仲介手数料について

アットホームは物件情報の適正化に努めております。
内容に誤りがある場合にはこちらへご連絡ください。