東京都世田谷区三軒茶屋1丁目(三軒茶屋駅)の賃貸:物件詳細
交通 所在地 |
駅徒歩 |
賃料 管理費等 |
敷金/保証金 礼金 |
間取り 面積 |
物件種目 築年月 |
|
東急田園都市線/三軒茶屋
東京都世田谷区三軒茶屋1丁目
|
6分
|
10.5万円
5,000円
|
1ヶ月 / なし
1ヶ月
|
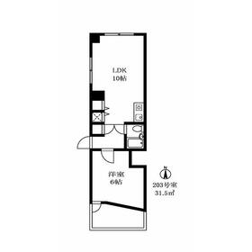
1LDK
31.50m²
|
賃貸マンション
1988年3月(築37年9ヶ月)
|
角部屋、南向き、事務所使用可、SOHO向き、2面採光
|
|
間取図
|
|
その他の画像
|
| 交通 | 東急田園都市線 三軒茶屋駅 徒歩6分 |
|---|
| その他の交通 | 東急世田谷線 西太子堂駅 徒歩12分 東急田園都市線 駒沢大学駅 徒歩16分 |
| 所在地 |
東京都世田谷区三軒茶屋1丁目
|
| 物件種目 |
賃貸マンション |
| 賃料 |
10.5万円 |
管理費等 |
5,000円 |
| 敷金 / 保証金 |
1ヶ月 / なし |
礼金 |
1ヶ月 |
| 敷引 |
- |
保証金償却 |
- |
| その他一時金 |
書類作成費:11,000円、24時間緊急サポート:16,500円、室内消毒費:16,500円、鍵交換代等:22,000円~ |
保険等 |
要 2年 20,000円 |
| 維持費等 |
- |
| 間取り |
1LDK(洋 6 LDK 10) |
専有面積 |
31.50m² |
| 築年月 |
1988年3月(築37年9ヶ月)
|
階建 / 階 |
3階建 / 2階 |
| 建物構造 |
RC |
総戸数 |
- |
| 主要採光面 |
南 |
駐車場 |
- |
| バイク置き場 |
- |
駐輪場 |
有 無料 |
| 建物名・部屋番号 |
|
ペット |
-
|
| アピールポイント |
お探しの方には嬉しい事務所利用可。(民泊不可)アクセスのいい三軒茶屋駅徒歩6分立地の物件、更にマイ自転車を格納できる駐輪場完備だから、自転車ライフにベストフィット。また素材を均一に温められるIHクッキングヒーター付で、その上無駄のない造りのシステムキッチン採用なので、食事の準備も片付けもスムーズに取り組めます。ちなみに南向の住居です。カップルにもゆとりの独身生活にもぴったりの1LDK。是非見学にお越しください。 |
| リフォーム履歴 |
- |
| リノベーション履歴 |
- |
| 備考 |
賃貸保証等:加入要(詳細はお問い合わせください。)
管理形態/管理員の勤務形態:-/-
☆事務所の際敷金2(償却1)賃料等に税
|
| エネルギー消費性能 |
- |
| 断熱性能 |
- |
| 目安光熱費 |
- |
| バス・トイレ |
洗面所、洗面台、バス・トイレ同室、シャワー、トイレ |
| キッチン |
システムキッチン、IHクッキングヒーター |
| セキュリティー |
- |
| 収納 |
収納スペース、クローゼット、シューズボックス |
| 設備・サービス |
室内洗濯機置場、洗濯機置場、給湯、都市ガス、エアコン、暖房、冷房 |
| TV・通信 |
- |
| その他 |
バルコニー、駐輪場 |
| 契約期間 |
2年 |
現況 |
居住中 |
| 条件等 |
- |
入居可能時期 |
2025年12月中旬予定 |
| 更新料 |
新賃料 1ヶ月 |
物件番号 |
6988193943 |
| 情報公開日 |
2025年10月29日 |
次回更新予定日 |
2025年11月15日 |
| ケータイ用バーコード |
- スマートフォンでこの物件を見る
- スマートフォンからもこの物件をご覧になれます。
|
※「-」と表示されている項目については、情報提供会社にご確認ください。
ここから簡単にお問い合わせをすることができます。
(SSLでの暗号化での送信を希望されるお客さまは
こちら
よりお問い合わせください)
お問い合わせを行う前に
「個人情報の取り扱いについて」を必ずお読みください。
「個人情報の取り扱いについて」に同意いただいた場合は「上記にご同意の上 確認画面へ進む」のボタンをクリックしてください。
個人情報の取り扱いについて
皆さまが送付された個人情報はアットホーム(株)のサーバを経由し、お問い合わせ先の不動産会社にメールまたはFAXにて転送されるためアットホーム(株)にも保管されます。アットホーム(株)で保管された個人情報の取り扱いについては、【こちら】をご覧ください。
また、本画面でご記入いただいた個人情報は、お問い合わせ先の不動産会社でも保管します。 お問い合わせ先の不動産会社が保管する個人情報の取り扱いについては、不動産会社に直接お問い合わせください。
神奈川県知事免許(1)第32413号 |
|---|
- 交通:
- 東急田園都市線/溝の口駅
- 神奈川県川崎市高津区溝口1丁目20-21
- TEL:
- 044-701-1124
- 所属団体:
- (公社)神奈川県宅地建物取引業協会会員(公社)首都圏不動産公正取引協議会加盟
取引態様:仲介  - 00277585
|
- スマートフォンで
この不動産会社を見る

|
- 提携サイト等より掲載されている物件情報につきましては、不動産会社詳細情報にリンクされていないものがあります。
- 物件に関するお問合せは、物件詳細ページの「情報提供会社」に表示されている不動産会社へ直接お願いいたします。
- 間取図は、現況を優先させていただきます。
- 映像は物件の一部を撮影したものです。物件の契約にあたっての最終判断はご自身の判断に基づいて行ってください。
- 仲介手数料について

アットホームは物件情報の適正化に努めております。
内容に誤りがある場合にはこちらへご連絡ください。