神奈川県川崎市中原区丸子通1丁目(新丸子駅)の賃貸:物件詳細
				
					
					
				
														
	
		
			
				| 交通 所在地
 | 駅徒歩 | 賃料 管理費等
 | 敷金/保証金 礼金
 | 間取り 面積
 | 物件種目 築年月
 | 
		
		
			
								| 東急東横線/新丸子
												  神奈川県川崎市中原区丸子通1丁目 | 3分 | 8.8万円 10,000円 | なし / なし 1ヶ月 | 1K 21.15m² | 賃貸マンション 2021年7月(築4年5ヶ月)
																				 | 
						
				|  ペット相談、常時ゴミ出し可能、24時間換気システム、外観タイル張り
 | 
					
	
		
		
 
	
		
			
																			          | 交通 | 東急東横線 新丸子駅 徒歩3分 | 
|---|
| その他の交通 | 東急目黒線 新丸子駅 徒歩3分 JR南武線 武蔵小杉駅 徒歩9分 | 
|---|
			
				| 所在地 | 神奈川県川崎市中原区丸子通1丁目 | 
			
				| 物件種目 | 賃貸マンション | 
		
		
			
				| 賃料 | 8.8万円 | 管理費等 | 10,000円 | 
			
				| 敷金 / 保証金 | なし / なし | 礼金 | 1ヶ月 | 
			
				| 敷引 | - | 保証金償却 | - | 
			
				| その他一時金 | 契約事務手数料:5,500円、消臭除菌代:8,800円 | 保険等 | 要 1年 10,000円 | 
						
				| 維持費等 | あんしんサポートα(1年間):16,500円/年 | 
					
		
			
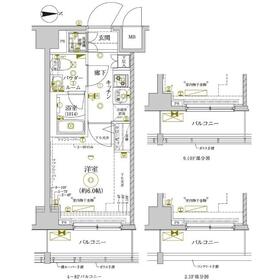
				| 間取り | 1K(洋室6) | 専有面積 | 21.15m² | 
			
				| 築年月 | 2021年7月(築4年5ヶ月) | 階建 / 階 | 10階建 / 2階 | 
			
				| 建物構造 | RC | 総戸数 | 54戸 | 
			
				| 主要採光面 | 東 | 駐車場 | 無 | 
			
				| バイク置き場 | 有 | 駐輪場 | 有 | 
			
				| 建物名・部屋番号 | レアライズ新丸子 | ペット | 小型犬可・									猫可 | 
			
	| アピールポイント | 住まいとお金は最初が肝心!敷金(保証金)0円。お探しの方には嬉しいペット(小型犬)相談可。留守番いらずの宅配BOX付、更に転居後のネット接続がスムーズに行えるインターネット使用料無料の物件なので、端末あれば繋がります。またアクセスのいい新丸子駅徒歩3分立地の物件で、その上出張時や旅行前でも収集日にしばられることがない常時ゴミ出し可の住戸だから、季節外れの大掃除でもゴミを出しにいけます。ちなみに無駄のない造りのシステムキッチンです。使い勝手のよい1K。是非その目でお確かめください。 | 
			
				| リフォーム履歴 | - | 
			
				| リノベーション履歴 | - | 
			
				| 備考 | 
																	賃貸保証等:加入要(初回契約時:50%、月額:1%、月額プラン(月額 賃料総額の3%)/初回・年間保証料なし も選択可)
											管理形態/管理員の勤務形態:-/-
 ★諸条件はレインズの図面が優先となります
 | 
		
				
		
		| エネルギー消費性能 | - | 
	
		| 断熱性能 | - | 
	
		| 目安光熱費 | - | 
	
		
									
				| バス・トイレ | バス・トイレ別、浴室乾燥機、温水洗浄便座、トイレ | 
						
				| キッチン | システムキッチン、2口コンロ、ガスコンロ付 | 
						
				| セキュリティー | オートロック、モニター付インターホン、防犯カメラ | 
						
				| 収納 | クローゼット、シューズボックス | 
						
				| 設備・サービス | 室内洗濯機置場、洗濯機置場、フローリング、都市ガス、エアコン | 
						
				| TV・通信 | インターネット使用料無料、CS、BS端子 | 
						
				| その他 | 宅配BOX、バイク置き場、バルコニー、駐輪場、エレベーター | 
					
		
			
				| 契約期間 | 1年 | 現況 | 居住中 | 
			
				| 条件等 | - | 入居可能時期 | 2026年1月中旬予定 | 
						
				| 更新料 | 新賃料 0.5ヶ月 | 物件番号 | 6988197477 | 
			
				| 情報公開日 | 2025年10月30日 | 次回更新予定日 | 2025年11月13日 | 
						
				| ケータイ用バーコード | 
					
					
						
							スマートフォンでこの物件を見るスマートフォンからもこの物件をご覧になれます。 | 
					
	 
	 									※「-」と表示されている項目については、情報提供会社にご確認ください。
									
												
					
					  ここから簡単にお問い合わせをすることができます。
(SSLでの暗号化での送信を希望されるお客さまは
													こちら
											  よりお問い合わせください)
					  
					
						
						
					
					お問い合わせを行う前に
「個人情報の取り扱いについて」を必ずお読みください。
「個人情報の取り扱いについて」に同意いただいた場合は「上記にご同意の上 確認画面へ進む」のボタンをクリックしてください。 
						個人情報の取り扱いについて
						皆さまが送付された個人情報はアットホーム(株)のサーバを経由し、お問い合わせ先の不動産会社にメールまたはFAXにて転送されるためアットホーム(株)にも保管されます。アットホーム(株)で保管された個人情報の取り扱いについては、【こちら】をご覧ください。
						また、本画面でご記入いただいた個人情報は、お問い合わせ先の不動産会社でも保管します。 お問い合わせ先の不動産会社が保管する個人情報の取り扱いについては、不動産会社に直接お問い合わせください。
					 
				 
				
														
				  
				  
					| 神奈川県知事免許(1)第32553号 | 
|---|
| 交通:JR根岸線/山手駅神奈川県横浜市中区本郷町2丁目47 コリドール山手1FTEL:045-900-5417FAX:045-319-4771所属団体:(公社)神奈川県宅地建物取引業協会会員(公社)首都圏不動産公正取引協議会加盟
 取引態様:仲介 00277886
 | 
							  
								スマートフォンでこの不動産会社を見る
 | 
					  
					 
				 
							
						
												
			
					
- 提携サイト等より掲載されている物件情報につきましては、不動産会社詳細情報にリンクされていないものがあります。
- 物件に関するお問合せは、物件詳細ページの「情報提供会社」に表示されている不動産会社へ直接お願いいたします。
- 間取図は、現況を優先させていただきます。
- 映像は物件の一部を撮影したものです。物件の契約にあたっての最終判断はご自身の判断に基づいて行ってください。
- 仲介手数料について 
アットホームは物件情報の適正化に努めております。
内容に誤りがある場合にはこちらへご連絡ください。