北海道札幌市白石区菊水元町五条2丁目の賃貸:物件詳細
交通 所在地 |
駅徒歩 |
賃料 管理費等 |
敷金/保証金 礼金 |
間取り 面積 |
物件種目 築年月 |
|
【バス】市営バス 菊水元町5条2丁目 停歩1分
北海道札幌市白石区菊水元町五条2丁目
|
-
|
8万円
なし
|
1ヶ月 / なし
1ヶ月
|
3LDK
79.90m²
|
賃貸マンション
1997年7月(築28年6ヶ月)
|
分譲タイプ
|
|
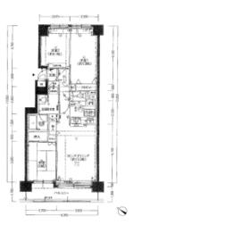
間取図
|
|
その他の画像
|
| 交通 | 【バス】 市営バス 菊水元町5条2丁目 停歩1分 |
| 所在地 |
北海道札幌市白石区菊水元町五条2丁目
|
| 物件種目 |
賃貸マンション |
| 賃料 |
8万円 |
管理費等 |
なし |
| 敷金 / 保証金 |
1ヶ月 / なし |
礼金 |
1ヶ月 |
| 敷引 |
- |
保証金償却 |
- |
| その他一時金 |
室内清掃料(契約時):55,000円 |
保険等 |
要 |
| 維持費等 |
- |
| 間取り |
3LDK(和 6 洋 7.8・6.1 LDK 16) |
専有面積 |
79.90m² |
| 築年月 |
1997年7月(築28年6ヶ月)
|
階建 / 階 |
地上14階地下1階建 / 5階 |
| 建物構造 |
SRC |
総戸数 |
55戸 |
| 主要採光面 |
南西 |
駐車場 |
- |
| バイク置き場 |
- |
駐輪場 |
有 |
| 建物名・部屋番号 |
クリーンリバー菊水元町 503 |
ペット |
-
|
| リフォーム履歴 |
- |
| リノベーション履歴 |
- |
| 備考 |
賃貸保証等:加入要(初回保証料:月額支払額の50%)
管理形態/管理員の勤務形態:-/-
バルコニー:9.89m²
|
| エネルギー消費性能 |
- |
| 断熱性能 |
- |
| 目安光熱費 |
- |
| バス・トイレ |
バス・トイレ別、シャワー付洗面化粧台、温水洗浄便座、トイレ |
| キッチン |
システムキッチン、ガスコンロ付 |
| セキュリティー |
- |
| 収納 |
収納スペース、トランクルーム、クローゼット、シューズボックス |
| 設備・サービス |
室内洗濯機置場、給湯、都市ガス、FF暖房、灯油 |
| TV・通信 |
- |
| その他 |
バルコニー、駐輪場、エレベーター |
| 契約期間 |
3年 |
現況 |
居住中 |
| 条件等 |
定期借家 |
入居可能時期 |
相談 |
| 更新料 |
なし |
物件番号 |
6988229376 |
| 情報公開日 |
2025年11月1日 |
次回更新予定日 |
2025年12月25日 |
| ケータイ用バーコード |
- スマートフォンでこの物件を見る
- スマートフォンからもこの物件をご覧になれます。
|
※「-」と表示されている項目については、情報提供会社にご確認ください。
| 周辺施設 |
コープさっぽろ菊水元町店 |
| 距離 |
396m |
| 周辺施設 |
セイコーマート菊水元町5条店 |
| 距離 |
78m |
| 周辺施設 |
北海道銀行菊水元町出張所 |
| 距離 |
401m |
ここから簡単にお問い合わせをすることができます。
(SSLでの暗号化での送信を希望されるお客さまは
こちら
よりお問い合わせください)
お問い合わせを行う前に
「個人情報の取り扱いについて」を必ずお読みください。
「個人情報の取り扱いについて」に同意いただいた場合は「上記にご同意の上 確認画面へ進む」のボタンをクリックしてください。
個人情報の取り扱いについて
皆さまが送付された個人情報はアットホーム(株)のサーバを経由し、お問い合わせ先の不動産会社にメールまたはFAXにて転送されるためアットホーム(株)にも保管されます。アットホーム(株)で保管された個人情報の取り扱いについては、【こちら】をご覧ください。
また、本画面でご記入いただいた個人情報は、お問い合わせ先の不動産会社でも保管します。 お問い合わせ先の不動産会社が保管する個人情報の取り扱いについては、不動産会社に直接お問い合わせください。
北海道知事免許 石狩(5)第6937号 |
|---|
- 交通:
- 札幌市東豊線/東区役所前駅 徒歩8分
- 北海道札幌市東区北九条東6丁目2-11
- TEL:
- 011-704-2103
- FAX:
- 011-704-2104
- 所属団体:
- (公社)全日本不動産協会会員(一社)北海道不動産公正取引協議会加盟
取引態様:仲介  - 10003076
|
- スマートフォンで
この不動産会社を見る

|
- 提携サイト等より掲載されている物件情報につきましては、不動産会社詳細情報にリンクされていないものがあります。
- 物件に関するお問合せは、物件詳細ページの「情報提供会社」に表示されている不動産会社へ直接お願いいたします。
- 間取図は、現況を優先させていただきます。
- 映像は物件の一部を撮影したものです。物件の契約にあたっての最終判断はご自身の判断に基づいて行ってください。
- 仲介手数料について

アットホームは物件情報の適正化に努めております。
内容に誤りがある場合にはこちらへご連絡ください。