兵庫県尼崎市塚口町1丁目(塚口駅)の賃貸:物件詳細
交通 所在地 |
駅徒歩 |
賃料 管理費等 |
敷金/保証金 礼金 |
間取り 面積 |
物件種目 築年月 |
|
阪急神戸線/塚口
兵庫県尼崎市塚口町1丁目
|
6分
|
12.8万円
12,000円
|
なし / なし
1ヶ月
|
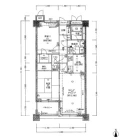
2LDK
59.09m²
|
賃貸マンション
1997年6月(築28年7ヶ月)
|
分譲タイプ、南向き
|
|
間取図
|
外観
|
<
その他の画像
>
|
| 交通 | 阪急神戸線 塚口駅 徒歩6分 |
|---|
| その他の交通 | 阪急伊丹線 塚口駅 徒歩5分 JR福知山線 塚口駅 徒歩17分 |
| 所在地 |
兵庫県尼崎市塚口町1丁目
|
| 物件種目 |
賃貸マンション |
| 賃料 |
12.8万円 |
管理費等 |
12,000円 |
| 敷金 / 保証金 |
なし / なし |
礼金 |
1ヶ月 |
| 敷引 |
- |
保証金償却 |
- |
| その他一時金 |
ホームマイスター(2年):16,500円、ハウスクリーニング代:66,000円、鍵交換代等:16,500円~ |
保険等 |
要 2年 20,000円 当社指定の火災 |
| 維持費等 |
口座振替手数料:550円/月 |
| 間取り |
2LDK(和 6 洋 6 LDK 12.9) |
専有面積 |
59.09m² |
| 築年月 |
1997年6月(築28年7ヶ月)
|
階建 / 階 |
6階建 / 2階 |
| 建物構造 |
RC |
総戸数 |
32戸 |
| 主要採光面 |
南 |
駐車場 |
- |
| バイク置き場 |
- |
駐輪場 |
- |
| 建物名・部屋番号 |
モンテベルデ塚口 |
ペット |
-
|
| アピールポイント |
駅近分譲マンション・2LDK物件がでました!リフォーム完了済です
周辺にスーパー多数、郵便局、銀行、ドラッグストアがあり利便性の高い物件です!
分譲マンション |
| リフォーム履歴 |
■内装:2025年12月 全室クロス張替え 畳表替え、洋室絨毯→フローリング張替、レンジフード・ガスコンロ新調、ハウスクリーニングなど ※実施年月は最も古い履歴を表示 |
| リノベーション履歴 |
- |
| 備考 |
賃貸保証等:加入要(エントランス株式会社:総家賃の50%~(更新料8,000円/年))
管理形態/管理員の勤務形態:-/日勤
バルコニー:4.59m²
管理人日勤
短期解約違約金
2年未満→総家賃1ヶ月分
1年未満→総家賃2ヶ月分
駐輪場などの空き状況につきましては、管理会社へお問い合わせ下さい。
|
| エネルギー消費性能 |
- |
| 断熱性能 |
- |
| 目安光熱費 |
- |
| バス・トイレ |
バス・トイレ別、浴室乾燥機、追焚機能、温水洗浄便座、トイレ |
| キッチン |
システムキッチン、3口以上コンロ、ガスコンロ付 |
| セキュリティー |
モニター付インターホン |
| 収納 |
収納スペース、トランクルーム、シューズボックス |
| 設備・サービス |
室内洗濯機置場 |
| TV・通信 |
ケーブルTV |
| その他 |
バルコニー、エレベーター |
| 契約期間 |
2年 |
現況 |
空家 |
| 条件等 |
- |
入居可能時期 |
2025年12月中旬予定 |
| 仲介手数料 |
0.55ヶ月 |
|
|
| 更新料 |
- |
物件番号 |
6988318842 |
| 情報公開日 |
2025年12月13日 |
次回更新予定日 |
2025年12月27日 |
| ケータイ用バーコード |
- スマートフォンでこの物件を見る
- スマートフォンからもこの物件をご覧になれます。
|
※「-」と表示されている項目については、情報提供会社にご確認ください。
| 周辺施設 |
いかりスーパーマーケット塚口店 |
| 距離 |
85m |
ここから簡単にお問い合わせをすることができます。
(SSLでの暗号化での送信を希望されるお客さまは
こちら
よりお問い合わせください)
お問い合わせを行う前に
「個人情報の取り扱いについて」を必ずお読みください。
「個人情報の取り扱いについて」に同意いただいた場合は「上記にご同意の上 確認画面へ進む」のボタンをクリックしてください。
個人情報の取り扱いについて
皆さまが送付された個人情報はアットホーム(株)のサーバを経由し、お問い合わせ先の不動産会社にメールまたはFAXにて転送されるためアットホーム(株)にも保管されます。アットホーム(株)で保管された個人情報の取り扱いについては、【こちら】をご覧ください。
また、本画面でご記入いただいた個人情報は、お問い合わせ先の不動産会社でも保管します。 お問い合わせ先の不動産会社が保管する個人情報の取り扱いについては、不動産会社に直接お問い合わせください。
兵庫県知事免許(3)第204200号 |
|---|
- 交通:
- 阪急神戸線/塚口駅 徒歩3分
- 兵庫県尼崎市塚口町1丁目13-8 サウザンド塚口2F
- TEL:
- 06-6480-5705
- FAX:
- 06-6480-5706
- 所属団体:
- (一社)兵庫県宅地建物取引業協会会員(公社)近畿地区不動産公正取引協議会加盟
取引態様:仲介  - 50025566
|
- スマートフォンで
この不動産会社を見る

|
- 提携サイト等より掲載されている物件情報につきましては、不動産会社詳細情報にリンクされていないものがあります。
- 物件に関するお問合せは、物件詳細ページの「情報提供会社」に表示されている不動産会社へ直接お願いいたします。
- 間取図は、現況を優先させていただきます。
- 映像は物件の一部を撮影したものです。物件の契約にあたっての最終判断はご自身の判断に基づいて行ってください。
- 仲介手数料について

アットホームは物件情報の適正化に努めております。
内容に誤りがある場合にはこちらへご連絡ください。