愛知県名古屋市中区丸の内3丁目(久屋大通駅)の賃貸:物件詳細
交通 所在地 |
駅徒歩 |
賃料 管理費等 |
敷金/保証金 礼金 |
間取り 面積 |
物件種目 築年月 |
|
名古屋市桜通線/久屋大通
愛知県名古屋市中区丸の内3丁目
|
5分
|
20万円
10,000円
|
2ヶ月 / なし
1ヶ月
|
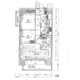
2LDK
60.76m²
|
賃貸マンション
2021年3月(築4年10ヶ月)
|
ペット相談、角部屋、二人入居可、法人契約希望、24時間換気システム
|
|
間取図
|
外観
|
<
その他の画像
>
|
| 交通 | 名古屋市桜通線 久屋大通駅 徒歩5分 |
|---|
| その他の交通 | 名古屋市鶴舞線 丸の内駅 徒歩9分 名鉄瀬戸線 栄町駅 徒歩12分 |
| 所在地 |
愛知県名古屋市中区丸の内3丁目
|
| 物件種目 |
賃貸マンション |
| 賃料 |
20万円 |
管理費等 |
10,000円 |
| 敷金 / 保証金 |
2ヶ月 / なし |
礼金 |
1ヶ月 |
| 敷引 |
- |
保証金償却 |
- |
| その他一時金 |
鍵交換代等:33,000円~ |
保険等 |
要 2年 借家人賠償 |
| 維持費等 |
- |
| 間取り |
2LDK(洋 6・4.5) |
専有面積 |
60.76m² |
| 築年月 |
2021年3月(築4年10ヶ月)
|
階建 / 階 |
14階建 / 8階 |
| 建物構造 |
RC |
総戸数 |
54戸 |
| 主要採光面 |
西 |
駐車場 |
空無 |
| バイク置き場 |
- |
駐輪場 |
空無 |
| 建物名・部屋番号 |
ル・シェモア久屋大通公園 8階 |
ペット |
管理規約による |
| アピールポイント |
広々とした角部屋で延床面積60.76㎡の居室空間♪洋服をひとまとめに収納できるウォークインクロゼットがあります♪受け取りに心配なしの宅配BOX付♪ハンズフリーのラクセスキー採用なので荷物の搬入が楽です♪夕食を作りながら翌日のお弁当も作れるコンロ3口以上付♪常時ゴミ出しが可能です♪管理人が日勤のため何か困った際には頼りになります♪ |
| リフォーム履歴 |
- |
| リノベーション履歴 |
- |
| 備考 |
管理形態/管理員の勤務形態:-/日勤
バルコニー:10.82m²
非喫煙者限定、管理人日勤
自動車駐車場については、所有者の優先申込枠があり、空きが出た場合には申込みが可能となります。
また、自転車駐輪場については、空きがあれば有償にて契約が可能です。
|
| エネルギー消費性能 |
- |
| 断熱性能 |
- |
| 目安光熱費 |
- |
| バス・トイレ |
バス・トイレ別、浴室乾燥機、オートバス、追焚機能、シャワー付洗面化粧台、洗面所独立、洗面所、シャワー、温水洗浄便座 |
| キッチン |
カウンターキッチン、システムキッチン、食器洗浄乾燥機、浄水器、ディスポーザー、3口以上コンロ、ガスコンロ付、ガスコンロ可 |
| セキュリティー |
モニター付オートロック、オートロック、モニター付インターホン、ダブルロックドア、防犯カメラ |
| 収納 |
全居室収納、ウォークインクローゼット、収納スペース、クローゼット、シューズボックス |
| 設備・サービス |
エアコン2台以上、床暖房、室内洗濯機置場、洗濯機置場、全居室フローリング、フローリング、都市ガス、エアコン、複層ガラス |
| TV・通信 |
インターネット対応、CS、BS端子、有線放送 |
| その他 |
宅配BOX、バルコニー、駐輪場、エレベーター |
| 契約期間 |
2年 |
現況 |
空家 |
| 条件等 |
- |
入居可能時期 |
相談 |
| 更新料 |
50,000円 |
物件番号 |
6988324110 |
| 情報公開日 |
2025年11月10日 |
次回更新予定日 |
2025年12月25日 |
| ケータイ用バーコード |
- スマートフォンでこの物件を見る
- スマートフォンからもこの物件をご覧になれます。
|
※「-」と表示されている項目については、情報提供会社にご確認ください。
| 周辺施設 |
ファミリーマート丸の内大津通店 |
| 距離 |
167m |
ここから簡単にお問い合わせをすることができます。
(SSLでの暗号化での送信を希望されるお客さまは
こちら
よりお問い合わせください)
お問い合わせを行う前に
「個人情報の取り扱いについて」を必ずお読みください。
「個人情報の取り扱いについて」に同意いただいた場合は「上記にご同意の上 確認画面へ進む」のボタンをクリックしてください。
個人情報の取り扱いについて
皆さまが送付された個人情報はアットホーム(株)のサーバを経由し、お問い合わせ先の不動産会社にメールまたはFAXにて転送されるためアットホーム(株)にも保管されます。アットホーム(株)で保管された個人情報の取り扱いについては、【こちら】をご覧ください。
また、本画面でご記入いただいた個人情報は、お問い合わせ先の不動産会社でも保管します。 お問い合わせ先の不動産会社が保管する個人情報の取り扱いについては、不動産会社に直接お問い合わせください。
愛知県知事免許(6)第18027号 |
|---|
- 交通:
- 東海道新幹線/豊橋駅
- 愛知県豊橋市広小路1丁目30-2 イザワビル2F
- TEL:
- 0532-53-6373
- 所属団体:
- (公社)愛知県宅地建物取引業協会会員東海不動産公正取引協議会加盟
取引態様:仲介  - 40006092
|
- スマートフォンで
この不動産会社を見る

|
- 提携サイト等より掲載されている物件情報につきましては、不動産会社詳細情報にリンクされていないものがあります。
- 物件に関するお問合せは、物件詳細ページの「情報提供会社」に表示されている不動産会社へ直接お願いいたします。
- 間取図は、現況を優先させていただきます。
- 映像は物件の一部を撮影したものです。物件の契約にあたっての最終判断はご自身の判断に基づいて行ってください。
- 仲介手数料について

アットホームは物件情報の適正化に努めております。
内容に誤りがある場合にはこちらへご連絡ください。