長野県長野市大字鶴賀権堂町(権堂駅)の賃貸:物件詳細
交通 所在地 |
駅徒歩 |
賃料 管理費等 |
敷金/保証金 礼金 |
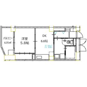
間取り 面積 |
物件種目 築年月 |
|
長野電鉄長野線/権堂
長野県長野市大字鶴賀権堂町
|
4分
|
7万円
5,000円
|
2ヶ月 / なし
なし
|
1DK
37.54m²
|
賃貸マンション
2002年4月(築23年9ヶ月)
|
ペット相談、常時ゴミ出し可能、南向き、バリアフリー、オール電化、前面棟無
|
|
間取図
1DK
|
外観
|
<
その他の画像
>
|
| 交通 | 長野電鉄長野線 権堂駅 徒歩4分 |
|---|
| その他の交通 | 長野電鉄長野線 市役所前駅 徒歩6分 JR信越本線 長野駅 徒歩14分 |
| 所在地 |
長野県長野市大字鶴賀権堂町
|
| 物件種目 |
賃貸マンション |
| 賃料 |
7万円 |
管理費等 |
5,000円 |
| 敷金 / 保証金 |
2ヶ月 / なし |
礼金 |
なし |
| 敷引 |
- |
保証金償却 |
- |
| その他一時金 |
- |
保険等 |
要 2年 15,000円 借家人賠償保険 |
| 維持費等 |
- |
| 間取り |
1DK(洋 5.8) |
専有面積 |
37.54m² |
| 築年月 |
2002年4月(築23年9ヶ月)
|
階建 / 階 |
9階建 / 4階 |
| 建物構造 |
RC |
総戸数 |
32戸 |
| 主要採光面 |
南 |
駐車場 |
無 |
| バイク置き場 |
有 300円/月 |
駐輪場 |
有 200円/月 |
| 建物名・部屋番号 |
メディカル権堂 403 |
ペット |
小型犬可・ 猫可・ 管理規約に準ずる |
| アピールポイント |
権堂駅まで徒歩4分270m
綿半スーパーセンターが駅と同距離、商店街アーケードもありますので買い物も便利
コンビニ2軒(セブンイレブン・ファミリーマート)、銀行も徒歩圏内の立地です |
| リフォーム履歴 |
■水回り:2016年8月 トイレ 洗浄便座設置 ※実施年月は最も古い履歴を表示 |
| リノベーション履歴 |
- |
| 備考 |
賃貸保証等:加入要(※家賃保証会社の指定はありません。)
管理形態/管理員の勤務形態:-/日勤
バルコニー:6.06m²
管理人日勤
(建物設備)オール電化・上下水道・EV・共用玄関オートロック・宅配ボックス
(室内設備)キッチン・UB・トイレ・洗面台・電気温水器・エアコン
※エアコンは現在ありませんが、貸主にて設置予定です。
・家賃保証会社加入必須
・借家人賠償保険加入必須
・短期解約違約金あり(1年以内:賃料2ヶ月 2年以内:賃料1ヶ月)
・ペット可(小型犬・猫/マンション規約あり)
(条件:①共益費+2,000円/月・匹②敷金+2カ月)
|
| エネルギー消費性能 |
- |
| 断熱性能 |
- |
| 目安光熱費 |
- |
| バス・トイレ |
バス・トイレ別、浴室暖房、浴室乾燥機、シャワー付洗面化粧台、洗面所、トイレ |
| キッチン |
IHクッキングヒーター、グリル |
| セキュリティー |
オートロック、モニター付インターホン、防犯カメラ、火災警報器(報知機) |
| 収納 |
収納スペース、クローゼット、シューズボックス |
| 設備・サービス |
室内洗濯機置場、給湯、フローリング、フットライト |
| TV・通信 |
- |
| その他 |
宅配BOX、バイク置き場、来客用駐車場、バルコニー、駐輪場、エレベーター |
| 契約期間 |
2年 |
現況 |
空家 |
| 条件等 |
- |
入居可能時期 |
2025年12月下旬予定 |
| 仲介手数料 |
1ヶ月 |
|
|
| 更新料 |
新賃料 0.5ヶ月 |
物件番号 |
6988364351 |
| 情報公開日 |
2025年11月17日 |
次回更新予定日 |
2025年12月29日 |
| ケータイ用バーコード |
- スマートフォンでこの物件を見る
- スマートフォンからもこの物件をご覧になれます。
|
※「-」と表示されている項目については、情報提供会社にご確認ください。
| 周辺施設 |
ファミリーマート長野大通り店 |
| 距離 |
248m |
| 周辺施設 |
セブンイレブン長野権堂店 |
| 距離 |
249m |
| 周辺施設 |
綿半スーパーセンター権堂店 |
| 距離 |
477m |
ここから簡単にお問い合わせをすることができます。
(SSLでの暗号化での送信を希望されるお客さまは
こちら
よりお問い合わせください)
お問い合わせを行う前に
「個人情報の取り扱いについて」を必ずお読みください。
「個人情報の取り扱いについて」に同意いただいた場合は「上記にご同意の上 確認画面へ進む」のボタンをクリックしてください。
個人情報の取り扱いについて
皆さまが送付された個人情報はアットホーム(株)のサーバを経由し、お問い合わせ先の不動産会社にメールまたはFAXにて転送されるためアットホーム(株)にも保管されます。アットホーム(株)で保管された個人情報の取り扱いについては、【こちら】をご覧ください。
また、本画面でご記入いただいた個人情報は、お問い合わせ先の不動産会社でも保管します。 お問い合わせ先の不動産会社が保管する個人情報の取り扱いについては、不動産会社に直接お問い合わせください。
長野県知事免許(15)第1029号 |
|---|
- 交通:
- JR信越本線/長野駅 徒歩5分
- 長野県長野市大字南長野南石堂町1260-2
- TEL:
- 026-262-1470
- FAX:
- 026-262-1524
- 所属団体:
- (公社)長野県宅地建物取引業協会会員(公社)首都圏不動産公正取引協議会加盟
取引態様:仲介  - 00260547
|
- スマートフォンで
この不動産会社を見る

|
- 提携サイト等より掲載されている物件情報につきましては、不動産会社詳細情報にリンクされていないものがあります。
- 物件に関するお問合せは、物件詳細ページの「情報提供会社」に表示されている不動産会社へ直接お願いいたします。
- 間取図は、現況を優先させていただきます。
- 映像は物件の一部を撮影したものです。物件の契約にあたっての最終判断はご自身の判断に基づいて行ってください。
- 仲介手数料について

アットホームは物件情報の適正化に努めております。
内容に誤りがある場合にはこちらへご連絡ください。