神奈川県横浜市港北区樽町2丁目(綱島駅)の賃貸:物件詳細
交通 所在地 |
駅徒歩 |
賃料 管理費等 |
敷金/保証金 礼金 |
間取り 面積 |
物件種目 築年月 |
|
東急東横線/綱島
神奈川県横浜市港北区樽町2丁目
|
8分
|
5.3万円
7,000円
|
なし / なし
1ヶ月
|
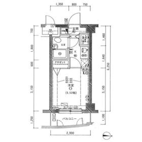
1K
18.12m²
|
賃貸マンション
1992年3月(築33年10ヶ月)
|
分譲タイプ、閑静な住宅街、外観タイル張り
|
|
間取図
図面
|
外観
外観
|
<
その他の画像
>
|
| 交通 | 東急東横線 綱島駅 徒歩8分 |
| 所在地 |
神奈川県横浜市港北区樽町2丁目
|
| 物件種目 |
賃貸マンション |
| 賃料 |
5.3万円 |
管理費等 |
7,000円 |
| 敷金 / 保証金 |
なし / なし |
礼金 |
1ヶ月 |
| 敷引 |
- |
保証金償却 |
- |
| その他一時金 |
事務手数料:22,000円、鍵交換代等:24,500円~ |
保険等 |
要 2年 24,500円 弊社指定家財 |
| 維持費等 |
家賃引落手数料:330円/月、駆けつけサービス:880円/月 |
| 間取り |
1K(K 5.6) |
専有面積 |
18.12m² |
| 築年月 |
1992年3月(築33年10ヶ月)
|
階建 / 階 |
5階建 / 3階 |
| 建物構造 |
RC |
総戸数 |
- |
| 主要採光面 |
東 |
駐車場 |
- |
| バイク置き場 |
- |
駐輪場 |
有 |
| 建物名・部屋番号 |
ワコーレ綱島Ⅱ |
ペット |
-
|
| アピールポイント |
浮いたコストを生活スタートの原動力に使っていただきたい!敷金(保証金)0円。閑静な住宅街の住戸、更に移動がスムーズにできて作業がしやすいシステムキッチンはトータルで設計されているのでバランスの良さが魅力です。また電磁気の影響を受けずに極細の信号線で信号を伝送する光ファイバー引込み済で、その上鍵面に掘られた微妙な凸凹で空き巣も困らせるディンプルキー仕様だから、ピッキングに手間どらせる点が防犯につながります。ちなみにセキュリティ面では欠かせないオートロック完備です。単身のシンプルライフに最適の1K。是非見学にお越しください。 |
| リフォーム履歴 |
- |
| リノベーション履歴 |
- |
| 備考 |
賃貸保証等:加入要(総賃料の50%~)
管理形態/管理員の勤務形態:-/日勤
バルコニー:3.25m²
管理人日勤
1年未満の短期解約違約金有
|
| エネルギー消費性能 |
- |
| 断熱性能 |
- |
| 目安光熱費 |
- |
| バス・トイレ |
洗面台、バス・トイレ同室、シャワー、トイレ |
| キッチン |
システムキッチン、2口コンロ、ガスコンロ付 |
| セキュリティー |
オートロック、ディンプルキー |
| 収納 |
収納スペース、クローゼット、シューズボックス |
| 設備・サービス |
室内洗濯機置場、給湯、全居室フローリング、フローリング、プロパンガス、エアコン、暖房、冷房、ダウンライト、照明器具 |
| TV・通信 |
光ファイバー |
| その他 |
バルコニー、駐輪場、エレベーター |
| 契約期間 |
2年 |
現況 |
居住中 |
| 条件等 |
- |
入居可能時期 |
2026年1月下旬予定 |
| 更新料 |
新賃料 1ヶ月 |
物件番号 |
6988383714 |
| 情報公開日 |
2025年11月13日 |
次回更新予定日 |
2025年12月20日 |
| ケータイ用バーコード |
- スマートフォンでこの物件を見る
- スマートフォンからもこの物件をご覧になれます。
|
※「-」と表示されている項目については、情報提供会社にご確認ください。
ここから簡単にお問い合わせをすることができます。
(SSLでの暗号化での送信を希望されるお客さまは
こちら
よりお問い合わせください)
お問い合わせを行う前に
「個人情報の取り扱いについて」を必ずお読みください。
「個人情報の取り扱いについて」に同意いただいた場合は「上記にご同意の上 確認画面へ進む」のボタンをクリックしてください。
個人情報の取り扱いについて
皆さまが送付された個人情報はアットホーム(株)のサーバを経由し、お問い合わせ先の不動産会社にメールまたはFAXにて転送されるためアットホーム(株)にも保管されます。アットホーム(株)で保管された個人情報の取り扱いについては、【こちら】をご覧ください。
また、本画面でご記入いただいた個人情報は、お問い合わせ先の不動産会社でも保管します。 お問い合わせ先の不動産会社が保管する個人情報の取り扱いについては、不動産会社に直接お問い合わせください。
国土交通大臣免許(3)第8773号 |
|---|
- 交通:
- 東京メトロ副都心線/西早稲田駅 徒歩5分
- 東京都新宿区西早稲田2丁目15-7 鈴木ビル
- TEL:
- 0120-465-247
- FAX:
- 03-5292-4345
- 所属団体:
- (公社)全日本不動産協会会員(公社)首都圏不動産公正取引協議会加盟
取引態様:代理  - 00103747
|
- スマートフォンで
この不動産会社を見る

|
- 提携サイト等より掲載されている物件情報につきましては、不動産会社詳細情報にリンクされていないものがあります。
- 物件に関するお問合せは、物件詳細ページの「情報提供会社」に表示されている不動産会社へ直接お願いいたします。
- 間取図は、現況を優先させていただきます。
- 映像は物件の一部を撮影したものです。物件の契約にあたっての最終判断はご自身の判断に基づいて行ってください。
- 仲介手数料について

アットホームは物件情報の適正化に努めております。
内容に誤りがある場合にはこちらへご連絡ください。