福島県岩瀬郡天栄村大字高林字東(鏡石駅)の賃貸:物件詳細
交通 所在地 |
駅徒歩 |
賃料 管理費等 |
敷金/保証金 礼金 |
間取り 面積 |
物件種目 築年月 |
|
JR東北本線/鏡石 [バス利用可] バス 12分 沖田 停歩2分
福島県岩瀬郡天栄村大字高林字東
|
6000m
|
6万円
なし
|
3ヶ月 / なし
1ヶ月
|
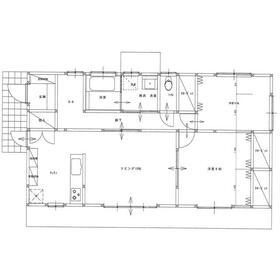
2LK
75.36m²
|
賃貸一戸建て
2016年9月(築9年4ヶ月)
|
駐車場2台分
|
|
間取図
|
外観
|
<
その他の画像
>
|
| 交通 | JR東北本線 鏡石駅 徒歩6000m [バス利用可] バス 12分 沖田 停歩2分 |
| 所在地 |
福島県岩瀬郡天栄村大字高林字東
|
| 物件種目 |
賃貸一戸建て |
| 賃料 |
6万円 |
管理費等 |
なし |
| 敷金 / 保証金 |
3ヶ月 / なし |
礼金 |
1ヶ月 |
| 敷引 |
- |
保証金償却 |
- |
| その他一時金 |
- |
保険等 |
要 2年 借家人賠償責任 |
| 維持費等 |
- |
| 間取り |
2LK(洋 8・6 LK 15) |
専有面積 |
75.36m² |
| 築年月 |
2016年9月(築9年4ヶ月)
|
階建 / 階 |
平屋建 |
| 建物構造 |
木造 |
総戸数 |
- |
| 主要採光面 |
|
駐車場 |
有 無料 |
| バイク置き場 |
有 無料 |
駐輪場 |
有 無料 |
| 建物名・部屋番号 |
|
ペット |
-
|
| リフォーム履歴 |
- |
| リノベーション履歴 |
- |
| 備考 |
賃貸保証等:利用可(保証料=賃料の1ヶ月分)
管理形態/管理員の勤務形態:-/-
非喫煙者限定
敷金の一部は、退去時の清掃費用として充当させていただきます。
内覧可能です。お気軽にお問い合わせください。
|
| エネルギー消費性能 |
- |
| 断熱性能 |
- |
| 目安光熱費 |
- |
| バス・トイレ |
バス・トイレ別、追焚機能、シャワー付洗面化粧台、トイレ、浴室に窓あり |
| キッチン |
カウンターキッチン、システムキッチン、IHクッキングヒーター、グリル |
| セキュリティー |
モニター付インターホン、火災警報器(報知機) |
| 収納 |
全居室収納、収納スペース、シューズインクローゼット、クローゼット |
| 設備・サービス |
エアコン2台以上、室内洗濯機置場、省エネ給湯器、全居室フローリング、フローリング、エアコン、ダウンライト、照明器具、複層ガラス |
| TV・通信 |
光ファイバー、BS端子 |
| その他 |
バイク置き場、駐輪場 |
| 契約期間 |
2年 |
現況 |
空家 |
| 条件等 |
- |
入居可能時期 |
2026年1月上旬予定 |
| 仲介手数料 |
6.6万円 |
|
|
| 更新料 |
- |
物件番号 |
6988393447 |
| 情報公開日 |
2025年12月16日 |
次回更新予定日 |
2025年12月30日 |
| ケータイ用バーコード |
- スマートフォンでこの物件を見る
- スマートフォンからもこの物件をご覧になれます。
|
※「-」と表示されている項目については、情報提供会社にご確認ください。
ここから簡単にお問い合わせをすることができます。
(SSLでの暗号化での送信を希望されるお客さまは
こちら
よりお問い合わせください)
お問い合わせを行う前に
「個人情報の取り扱いについて」を必ずお読みください。
「個人情報の取り扱いについて」に同意いただいた場合は「上記にご同意の上 確認画面へ進む」のボタンをクリックしてください。
個人情報の取り扱いについて
皆さまが送付された個人情報はアットホーム(株)のサーバを経由し、お問い合わせ先の不動産会社にメールまたはFAXにて転送されるためアットホーム(株)にも保管されます。アットホーム(株)で保管された個人情報の取り扱いについては、【こちら】をご覧ください。
また、本画面でご記入いただいた個人情報は、お問い合わせ先の不動産会社でも保管します。 お問い合わせ先の不動産会社が保管する個人情報の取り扱いについては、不動産会社に直接お問い合わせください。
福島県知事免許(3)第3202号 |
|---|
- 交通:
- JR東北本線/鏡石駅 【バス】13分 十文字(福島交通) 停歩7分
- 福島県岩瀬郡天栄村大字飯豊字大山6-268
- TEL:
- 0248-94-7930
- FAX:
- 0248-94-7931
- 所属団体:
- (公社)福島県宅地建物取引業協会会員東北地区不動産公正取引協議会加盟
取引態様:仲介  - 20004765
|
- スマートフォンで
この不動産会社を見る

|
- 提携サイト等より掲載されている物件情報につきましては、不動産会社詳細情報にリンクされていないものがあります。
- 物件に関するお問合せは、物件詳細ページの「情報提供会社」に表示されている不動産会社へ直接お願いいたします。
- 間取図は、現況を優先させていただきます。
- 映像は物件の一部を撮影したものです。物件の契約にあたっての最終判断はご自身の判断に基づいて行ってください。
- 仲介手数料について

アットホームは物件情報の適正化に努めております。
内容に誤りがある場合にはこちらへご連絡ください。