福岡県福岡市中央区警固1丁目(薬院大通駅)の賃貸:物件詳細
交通 所在地 |
駅徒歩 |
賃料 管理費等 |
敷金/保証金 礼金 |
間取り 面積 |
物件種目 築年月 |
|
地下鉄七隈線/薬院大通
福岡県福岡市中央区警固1丁目
|
7分
|
9.6万円
5,000円
|
2ヶ月 / なし
なし
|
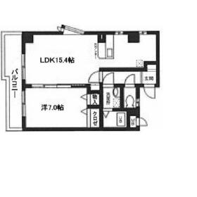
1LDK
49.40m²
|
賃貸マンション
2005年11月(築20年2ヶ月)
|
角部屋、最上階、2面採光、オール電化、隣接建物距離2m以上
|
|
間取図
|
|
<
その他の画像
>
|
| 交通 | 地下鉄七隈線 薬院大通駅 徒歩7分 |
|---|
| その他の交通 | 地下鉄空港線 赤坂駅 徒歩10分 西鉄天神大牟田線 薬院駅 徒歩11分 |
| 所在地 |
福岡県福岡市中央区警固1丁目
|
| 物件種目 |
賃貸マンション |
| 賃料 |
9.6万円 |
管理費等 |
5,000円 |
| 敷金 / 保証金 |
2ヶ月 / なし |
礼金 |
なし |
| 敷引 |
2ヶ月 |
保証金償却 |
- |
| その他一時金 |
鍵交換代等:19,800円~ |
保険等 |
要 火災 |
| 維持費等 |
月掛保険料:800円/月、くらしーど24:550円/月、町費:300円/月 |
| 間取り |
1LDK(洋 7 LDK 15.4) |
専有面積 |
49.40m² |
| 築年月 |
2005年11月(築20年2ヶ月)
|
階建 / 階 |
6階建 / 3階 |
| 建物構造 |
RC |
総戸数 |
- |
| 主要採光面 |
南西 |
駐車場 |
有 31,900円/月 |
| バイク置き場 |
- |
駐輪場 |
有 無料 |
| 建物名・部屋番号 |
グレイズサイド 305 |
ペット |
-
|
| アピールポイント |
浮いたコストを生活スタートの原動力に使っていただきたい!礼金0円。広々とした延床面積49.4㎡の居室空間、更にお隣同士プライバシーを心地よく保つ距離確保の隣接建物と2m以上離れた住戸なので、くっつき感がありません。また受け取りに心配なしの宅配BOX付で、その上スマホやPCの使用には不可欠なインターネット使用料無料の物件だから、スマホやPCのヘビーユーザーは特にうってつけです。ちなみに炎を使わず空気やキッチンを汚さないオール電化仕様です。一人暮らしやカップルにお勧めの1LDK。実際の空間をご自身で体感ください。 |
| リフォーム履歴 |
- |
| リノベーション履歴 |
- |
| 備考 |
賃貸保証等:加入要(CIZ 保証料:月額総支払額の80%)
管理形態/管理員の勤務形態:-/巡回
非喫煙者限定、管理人巡回
~その他費用~
◆毎月町費 300円
◆毎月くらしーど24 550円
◆毎月保険料 800円
◆毎月水道料 実費
◆鍵交換代 19800円
◆消毒料 16500円
◆消火剤 6600円
◆毎月口座引落し手数料 110円
(福岡銀行、西日本シティ銀行、ゆうちょ銀行いづれか)
◆保証料:月額総支払額の80%
※写真、間取図面は現地と異なる場合があります。
※駐車場に関してはその都度要確認。
|
| エネルギー消費性能 |
- |
| 断熱性能 |
- |
| 目安光熱費 |
- |
| バス・トイレ |
バス・トイレ別、シャワー付洗面化粧台、洗面所独立、洗面所、洗面台、シャワー、温水洗浄便座、トイレ |
| キッチン |
ガスコンロ可 |
| セキュリティー |
オートロック、モニター付インターホン、防犯カメラ |
| 収納 |
収納スペース、クローゼット |
| 設備・サービス |
室内洗濯機置場、都市ガス給湯、給湯、フローリング、都市ガス、エアコン、暖房、冷房 |
| TV・通信 |
インターネット対応、インターネット使用料無料、ケーブルTV |
| その他 |
宅配BOX、バルコニー、駐輪場、エレベーター |
| 契約期間 |
2年 |
現況 |
空家 |
| 条件等 |
- |
入居可能時期 |
相談 |
| 更新料 |
なし |
物件番号 |
6988425994 |
| 情報公開日 |
2025年11月17日 |
次回更新予定日 |
2026年1月3日 |
| ケータイ用バーコード |
- スマートフォンでこの物件を見る
- スマートフォンからもこの物件をご覧になれます。
|
※「-」と表示されている項目については、情報提供会社にご確認ください。
| 周辺施設 |
カイタックスクエアガーデン |
| 距離 |
157m |
| 周辺施設 |
セブンイレブン福岡赤坂南店 |
| 距離 |
272m |
| 周辺施設 |
ファミリーマート警固二丁目店 |
| 距離 |
303m |
| 周辺施設 |
ローソン福岡警固一丁目店 |
| 距離 |
257m |
| 周辺施設 |
ドラッグストアモリ警固店 |
| 距離 |
361m |
ここから簡単にお問い合わせをすることができます。
(SSLでの暗号化での送信を希望されるお客さまは
こちら
よりお問い合わせください)
お問い合わせを行う前に
「個人情報の取り扱いについて」を必ずお読みください。
「個人情報の取り扱いについて」に同意いただいた場合は「上記にご同意の上 確認画面へ進む」のボタンをクリックしてください。
個人情報の取り扱いについて
皆さまが送付された個人情報はアットホーム(株)のサーバを経由し、お問い合わせ先の不動産会社にメールまたはFAXにて転送されるためアットホーム(株)にも保管されます。アットホーム(株)で保管された個人情報の取り扱いについては、【こちら】をご覧ください。
また、本画面でご記入いただいた個人情報は、お問い合わせ先の不動産会社でも保管します。 お問い合わせ先の不動産会社が保管する個人情報の取り扱いについては、不動産会社に直接お問い合わせください。
福岡県知事免許(6)第14208号 |
|---|
- 交通:
- JR鹿児島本線/箱崎駅 徒歩2分 【バス】 九大前 停歩3分
- 福岡県福岡市東区箱崎3丁目7-6
- TEL:
- 092-641-6200
- FAX:
- 092-641-5847
- 所属団体:
- (公社)福岡県宅地建物取引業協会会員(一社)九州不動産公正取引協議会加盟
取引態様:仲介  - 80003545
|
- スマートフォンで
この不動産会社を見る

|
- 提携サイト等より掲載されている物件情報につきましては、不動産会社詳細情報にリンクされていないものがあります。
- 物件に関するお問合せは、物件詳細ページの「情報提供会社」に表示されている不動産会社へ直接お願いいたします。
- 間取図は、現況を優先させていただきます。
- 映像は物件の一部を撮影したものです。物件の契約にあたっての最終判断はご自身の判断に基づいて行ってください。
- 仲介手数料について

アットホームは物件情報の適正化に努めております。
内容に誤りがある場合にはこちらへご連絡ください。