宮城県仙台市青葉区小田原4丁目(仙台駅)の賃貸:物件詳細
交通 所在地 |
駅徒歩 |
賃料 管理費等 |
敷金/保証金 礼金 |
間取り 面積 |
物件種目 築年月 |
|
JR東北本線/仙台
宮城県仙台市青葉区小田原4丁目
|
18分
|
6.3万円
200円
|
なし / なし
なし
|
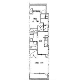
2K
42.24m²
|
賃貸マンション
1998年4月(築27年9ヶ月)
|
|
間取図
日当たり良好
|
間取図
2Kタイプ
|
<
その他の画像
>
|
| 交通 | JR東北本線 仙台駅 徒歩18分 |
|---|
| その他の交通 | JR仙山線 東照宮駅 徒歩16分 |
| 所在地 |
宮城県仙台市青葉区小田原4丁目
|
| 物件種目 |
賃貸マンション |
| 賃料 |
6.3万円 |
管理費等 |
200円 |
| 敷金 / 保証金 |
なし / なし |
礼金 |
なし |
| 敷引 |
- |
保証金償却 |
- |
| その他一時金 |
- |
保険等 |
要 2年 16,000円 |
| 維持費等 |
- |
| 間取り |
2K(洋 8・4.5 K 2) |
専有面積 |
42.24m² |
| 築年月 |
1998年4月(築27年9ヶ月)
|
階建 / 階 |
6階建 / 2階 |
| 建物構造 |
RC |
総戸数 |
- |
| 主要採光面 |
|
駐車場 |
有 8,800円/月 |
| バイク置き場 |
無 |
駐輪場 |
- |
| 建物名・部屋番号 |
小田原ウェルコート |
ペット |
-
|
| アピールポイント |
駐車場敷地内空有。敷金・礼金0.0物件!日当たり良好、収納広々の2Kタイプ。仙台駅まで徒歩圏内。スーパー・コンビニ近く周辺環境良好! |
| リフォーム履歴 |
- |
| リノベーション履歴 |
- |
| 備考 |
賃貸保証等:利用可(賃料の60%から80%)
管理形態/管理員の勤務形態:-/-
町内会費200円。清掃料として、契約時4.4万円(別途税)。
|
| エネルギー消費性能 |
- |
| 断熱性能 |
- |
| 目安光熱費 |
- |
| バス・トイレ |
バス・トイレ別、洗面所独立、洗面台、シャワー |
| キッチン |
ガスコンロ可 |
| セキュリティー |
ディンプルキー |
| 収納 |
収納スペース、クローゼット |
| 設備・サービス |
室内洗濯機置場、洗濯機置場、都市ガス、エアコン |
| TV・通信 |
- |
| その他 |
エレベーター |
| 契約期間 |
2年 |
現況 |
居住中 |
| 条件等 |
- |
入居可能時期 |
相談 |
| 仲介手数料 |
1.1ヶ月 |
|
|
| 更新料 |
- |
物件番号 |
6988444020 |
| 情報公開日 |
2025年11月19日 |
次回更新予定日 |
2025年12月17日 |
| ケータイ用バーコード |
- スマートフォンでこの物件を見る
- スマートフォンからもこの物件をご覧になれます。
|
※「-」と表示されている項目については、情報提供会社にご確認ください。
| 周辺施設 |
ファミリーマート小田原五丁目店 |
| 距離 |
310m |
| 周辺施設 |
ローソン仙台小田原1丁目店 |
| 距離 |
566m |
| 周辺施設 |
ロイヤルホスト仙台花京院店 |
| 距離 |
888m |
ここから簡単にお問い合わせをすることができます。
(SSLでの暗号化での送信を希望されるお客さまは
こちら
よりお問い合わせください)
お問い合わせを行う前に
「個人情報の取り扱いについて」を必ずお読みください。
「個人情報の取り扱いについて」に同意いただいた場合は「上記にご同意の上 確認画面へ進む」のボタンをクリックしてください。
個人情報の取り扱いについて
皆さまが送付された個人情報はアットホーム(株)のサーバを経由し、お問い合わせ先の不動産会社にメールまたはFAXにて転送されるためアットホーム(株)にも保管されます。アットホーム(株)で保管された個人情報の取り扱いについては、【こちら】をご覧ください。
また、本画面でご記入いただいた個人情報は、お問い合わせ先の不動産会社でも保管します。 お問い合わせ先の不動産会社が保管する個人情報の取り扱いについては、不動産会社に直接お問い合わせください。
宮城県知事免許(4)第5395号 |
|---|
- 交通:
- JR仙山線/北山駅 徒歩5分 【バス】 中山入口前 停歩5分
- 宮城県仙台市青葉区山手町11-50
- TEL:
- 022-719-8422
- FAX:
- 022-303-7829
- 所属団体:
- (公社)全日本不動産協会会員東北地区不動産公正取引協議会加盟
取引態様:仲介  - 20002687
|
- スマートフォンで
この不動産会社を見る

|
- 提携サイト等より掲載されている物件情報につきましては、不動産会社詳細情報にリンクされていないものがあります。
- 物件に関するお問合せは、物件詳細ページの「情報提供会社」に表示されている不動産会社へ直接お願いいたします。
- 間取図は、現況を優先させていただきます。
- 映像は物件の一部を撮影したものです。物件の契約にあたっての最終判断はご自身の判断に基づいて行ってください。
- 仲介手数料について

アットホームは物件情報の適正化に努めております。
内容に誤りがある場合にはこちらへご連絡ください。