神奈川県藤沢市善行1丁目(善行駅)の賃貸:物件詳細
交通 所在地 |
駅徒歩 |
賃料 管理費等 |
敷金/保証金 礼金 |
間取り 面積 |
物件種目 築年月 |
|
小田急江ノ島線/善行
神奈川県藤沢市善行1丁目
|
7分
|
15万円
-
|
1ヶ月 / なし
なし
|
2LDK
81.46m²
|
賃貸マンション
1981年12月(築44年1ヶ月)
|
DIY可、フリーレント、角部屋、最上階、南向き、二人入居可、SOHO向き、2面採光、24時間換気システム、閑静な住宅街、外観タイル張り、IT重説対応物件、保証人不要
|
|
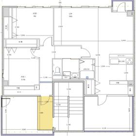
間取図
広々とした2LDK!!
|
玄関
|
その他の画像
|
| 交通 | 小田急江ノ島線 善行駅 徒歩7分 |
|---|
| その他の交通 | 小田急江ノ島線 藤沢本町駅 徒歩24分 |
| 所在地 |
神奈川県藤沢市善行1丁目
|
| 物件種目 |
賃貸マンション |
| 賃料 |
15万円 |
管理費等 |
- |
| 敷金 / 保証金 |
1ヶ月 / なし |
礼金 |
なし |
| 敷引 |
- |
保証金償却 |
- |
| その他一時金 |
- |
保険等 |
不要 |
| 維持費等 |
- |
| 間取り |
2LDK(洋 6.5・6) |
専有面積 |
81.46m² |
| 築年月 |
1981年12月(築44年1ヶ月)
|
階建 / 階 |
4階建 / 4階 |
| 建物構造 |
鉄骨造 |
総戸数 |
5戸 |
| 主要採光面 |
南 |
駐車場 |
- |
| バイク置き場 |
- |
駐輪場 |
- |
| 建物名・部屋番号 |
コンブロンビル 401 |
ペット |
-
|
| アピールポイント |
浮いたコストを生活スタートの原動力に使っていただきたい!フリーレント1ヶ月有で、更に礼金0円。閑静な住宅街の住戸、更に広々としたスペースでストレスなく洗濯物を干せるワイドバルコニーは、プランターひとつでも癒しの空間に変身します。また広々とした延床面積81.46㎡の居室空間で、その上オープンキッチン仕様だから、配膳や片付けがスムーズです。ちなみにお鍋とフライパンを使いながらヤカンもおけるコンロ3口以上付です。自然に団らんが生まれる2LDK。是非見学にお越しください。 |
| リフォーム履歴 |
■水回り:2025年3月 キッチン、浴室、トイレ、洗面所、給排水管、給湯器 ■内装:2025年3月 内装全面(床・壁・天井・建具) ■外装:2025年3月 外壁、屋根 ■共用部の大規模修繕工事:2025年3月 塗装工事、消防設備交換 ※実施年月は最も古い履歴を表示 |
| リノベーション履歴 |
2025年3月 キッチン、浴室、トイレ、洗面所、給排水管、給湯器、照明 ※実施年月は最も古い履歴を表示 |
| 備考 |
賃貸保証等:加入要(日本セーフティ:初回保証料は賃料等総額50%。以後1年毎の保証料1万円。賃料等の支払いは保証会社口座振替(440円/月・借主負担))
管理形態/管理員の勤務形態:-/不在
フリーレント:1ヶ月
非喫煙者限定、IT重説対応物件
|
| エネルギー消費性能 |
- |
| 断熱性能 |
- |
| 目安光熱費 |
- |
| バス・トイレ |
バス・トイレ別、追焚機能、洗面所独立、洗面所、洗面台、温水洗浄便座、トイレ |
| キッチン |
オープンキッチン、3口以上コンロ、電気コンロ、ガスコンロ付 |
| セキュリティー |
モニター付インターホン、ディンプルキー、火災警報器(報知機) |
| 収納 |
全居室収納、収納スペース、シューズインクローゼット、クローゼット、シューズボックス |
| 設備・サービス |
エアコン2台以上、室内洗濯機置場、洗濯機置場、プロパンガス給湯、給湯、全居室フローリング、プロパンガス、エアコン、暖房、冷房、ダウンライト、照明器具 |
| TV・通信 |
- |
| その他 |
ワイドバルコニー、二面バルコニー、バルコニー |
| 契約期間 |
2年 |
現況 |
空家 |
| 条件等 |
- |
入居可能時期 |
即時 |
| 更新料 |
新賃料 0.5ヶ月 |
物件番号 |
6988517114 |
| 情報公開日 |
2025年11月26日 |
次回更新予定日 |
2025年12月24日 |
| ケータイ用バーコード |
- スマートフォンでこの物件を見る
- スマートフォンからもこの物件をご覧になれます。
|
※「-」と表示されている項目については、情報提供会社にご確認ください。
ここから簡単にお問い合わせをすることができます。
(SSLでの暗号化での送信を希望されるお客さまは
こちら
よりお問い合わせください)
お問い合わせを行う前に
「個人情報の取り扱いについて」を必ずお読みください。
「個人情報の取り扱いについて」に同意いただいた場合は「上記にご同意の上 確認画面へ進む」のボタンをクリックしてください。
個人情報の取り扱いについて
皆さまが送付された個人情報はアットホーム(株)のサーバを経由し、お問い合わせ先の不動産会社にメールまたはFAXにて転送されるためアットホーム(株)にも保管されます。アットホーム(株)で保管された個人情報の取り扱いについては、【こちら】をご覧ください。
また、本画面でご記入いただいた個人情報は、お問い合わせ先の不動産会社でも保管します。 お問い合わせ先の不動産会社が保管する個人情報の取り扱いについては、不動産会社に直接お問い合わせください。
神奈川県知事免許(1)第31526号 |
|---|
- 交通:
- ブルーライン/センター南駅 徒歩4分
- 神奈川県横浜市都筑区茅ケ崎中央19-9 澤田ビル5階
- TEL:
- 045-949-3400
- FAX:
- 045-949-3401
- 所属団体:
- (公社)神奈川県宅地建物取引業協会会員(公社)首都圏不動産公正取引協議会加盟
取引態様:貸主  - 00273724
|
- スマートフォンで
この不動産会社を見る

|
- 提携サイト等より掲載されている物件情報につきましては、不動産会社詳細情報にリンクされていないものがあります。
- 物件に関するお問合せは、物件詳細ページの「情報提供会社」に表示されている不動産会社へ直接お願いいたします。
- 間取図は、現況を優先させていただきます。
- 映像は物件の一部を撮影したものです。物件の契約にあたっての最終判断はご自身の判断に基づいて行ってください。
- 仲介手数料について

アットホームは物件情報の適正化に努めております。
内容に誤りがある場合にはこちらへご連絡ください。