埼玉県川越市新富町2丁目(本川越駅)の賃貸:物件詳細
交通 所在地 |
駅徒歩 |
賃料 管理費等 |
敷金/保証金 礼金 |
間取り 面積 |
物件種目 築年月 |
|
西武新宿線/本川越
埼玉県川越市新富町2丁目
|
5分
|
11.7万円
-
|
なし / なし
なし
|
1LDK
37.60m²
|
賃貸マンション
2024年7月(築1年6ヶ月)
|
分譲タイプ、角部屋、南向き、二人入居可、24時間セキュリティー、2面採光、24時間換気システム、外観タイル張り
|
|
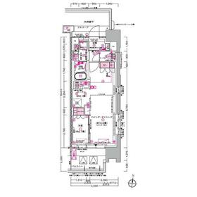
間取図
|
外観
|
<
その他の画像
>
|
| 交通 | 西武新宿線 本川越駅 徒歩5分 |
|---|
| その他の交通 | 東武東上線 川越駅 徒歩9分 |
| 所在地 |
埼玉県川越市新富町2丁目
|
| 物件種目 |
賃貸マンション |
| 賃料 |
11.7万円 |
管理費等 |
- |
| 敷金 / 保証金 |
なし / なし |
礼金 |
なし |
| 敷引 |
- |
保証金償却 |
- |
| その他一時金 |
クリーニング費用:44,000円、自治会費 2年毎:3,600円 |
保険等 |
要 2年 20,000円 |
| 維持費等 |
enecoQシステム使用料:1,903円/月、スマートマンションサービス使用料金:528円/月、24時間ライフサポート:500円/月、保証会社月額事務手数料(自転車置き場使用時変動):1,199円/月 |
| 間取り |
1LDK(洋 2.7 LDK 12.7) |
専有面積 |
37.60m² |
| 築年月 |
2024年7月(築1年6ヶ月)
|
階建 / 階 |
14階建 / 2階 |
| 建物構造 |
RC |
総戸数 |
- |
| 主要採光面 |
南 |
駐車場 |
無 |
| バイク置き場 |
無 |
駐輪場 |
有 300円/月 |
| 建物名・部屋番号 |
プラウド川越 212 |
ペット |
-
|
| アピールポイント |
思わぬアクシデントから日々の暮らしを守る24時間セキュリティー採用で、万一の対応が素早い点も魅力です。また留守番いらずの宅配BOX付で、その上転居後のネット接続がスムーズに行えるインターネット使用料無料の物件だから、スマホやPCのヘビーユーザーは特にうってつけです。ちなみに無駄のない造りのシステムキッチンです。一人暮らしやカップルにお勧めの1LDK。是非その目でお確かめください。 |
| リフォーム履歴 |
- |
| リノベーション履歴 |
- |
| 備考 |
賃貸保証等:加入要(月額支払額の50%)
管理形態/管理員の勤務形態:-/-
バルコニー:6.69m²
|
| エネルギー消費性能 |
- |
| 断熱性能 |
- |
| 目安光熱費 |
- |
| バス・トイレ |
バス・トイレ別、浴室乾燥機、追焚機能、洗面所独立、シャワー、温水洗浄便座 |
| キッチン |
システムキッチン、2口コンロ |
| セキュリティー |
オートロック、モニター付インターホン |
| 収納 |
収納スペース、クローゼット、シューズボックス |
| 設備・サービス |
室内洗濯機置場、給湯、全居室フローリング、フローリング、都市ガス、エアコン |
| TV・通信 |
インターネット使用料無料、ケーブルTV |
| その他 |
宅配BOX、エレベーター2基以上、バルコニー、駐輪場 |
| 契約期間 |
2年 |
現況 |
空家 |
| 条件等 |
定期借家 |
入居可能時期 |
即時 |
| 更新料 |
- |
物件番号 |
6988571508 |
| 情報公開日 |
2025年11月30日 |
次回更新予定日 |
2025年12月28日 |
| ケータイ用バーコード |
- スマートフォンでこの物件を見る
- スマートフォンからもこの物件をご覧になれます。
|
※「-」と表示されている項目については、情報提供会社にご確認ください。
| 周辺施設 |
MEIDI-YA STORE川越ストアー |
| 距離 |
43m |
| 周辺施設 |
カルディコーヒーファーム川越店 |
| 距離 |
255m |
| 周辺施設 |
セブンイレブン川越新富町八幡通り店 |
| 距離 |
95m |
| 周辺施設 |
ファミリーマート川越八幡通り店 |
| 距離 |
124m |
| 周辺施設 |
マツモトキヨシ川越クレアモール店 |
| 距離 |
141m |
ここから簡単にお問い合わせをすることができます。
(SSLでの暗号化での送信を希望されるお客さまは
こちら
よりお問い合わせください)
お問い合わせを行う前に
「個人情報の取り扱いについて」を必ずお読みください。
「個人情報の取り扱いについて」に同意いただいた場合は「上記にご同意の上 確認画面へ進む」のボタンをクリックしてください。
個人情報の取り扱いについて
皆さまが送付された個人情報はアットホーム(株)のサーバを経由し、お問い合わせ先の不動産会社にメールまたはFAXにて転送されるためアットホーム(株)にも保管されます。アットホーム(株)で保管された個人情報の取り扱いについては、【こちら】をご覧ください。
また、本画面でご記入いただいた個人情報は、お問い合わせ先の不動産会社でも保管します。 お問い合わせ先の不動産会社が保管する個人情報の取り扱いについては、不動産会社に直接お問い合わせください。
埼玉県知事免許(14)第4714号 |
|---|
- 交通:
- 東武東上線/川越駅 徒歩22分
- 埼玉県川越市広栄町4-16
- TEL:
- 049-242-2110
- FAX:
- 049-248-4070
- 所属団体:
- (公社)埼玉県宅地建物取引業協会会員(公社)首都圏不動産公正取引協議会加盟
取引態様:貸主  - 00986086
|
- スマートフォンで
この不動産会社を見る

|
- 提携サイト等より掲載されている物件情報につきましては、不動産会社詳細情報にリンクされていないものがあります。
- 物件に関するお問合せは、物件詳細ページの「情報提供会社」に表示されている不動産会社へ直接お願いいたします。
- 間取図は、現況を優先させていただきます。
- 映像は物件の一部を撮影したものです。物件の契約にあたっての最終判断はご自身の判断に基づいて行ってください。
- 仲介手数料について

アットホームは物件情報の適正化に努めております。
内容に誤りがある場合にはこちらへご連絡ください。