東京都立川市柏町4丁目(玉川上水駅)の賃貸:物件詳細
交通 所在地 |
駅徒歩 |
賃料 管理費等 |
敷金/保証金 礼金 |
間取り 面積 |
物件種目 築年月 |
|
西武拝島線/玉川上水
東京都立川市柏町4丁目
|
6分
|
9.8万円
7,000円
|
1ヶ月 / なし
1ヶ月
|
2LDK
46.27m²
|
賃貸マンション
1971年5月(築54年11ヶ月)
|
分譲タイプ、南向き、振分、2面採光、閑静な住宅街、隣接建物距離2m以上、分譲地内
|
|
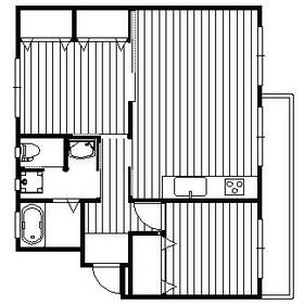
間取図
|
|
その他の画像
|
| 交通 | 西武拝島線 玉川上水駅 徒歩6分 |
| 所在地 |
東京都立川市柏町4丁目
|
| 物件種目 |
賃貸マンション |
| 賃料 |
9.8万円 |
管理費等 |
7,000円 |
| 敷金 / 保証金 |
1ヶ月 / なし |
礼金 |
1ヶ月 |
| 敷引 |
- |
保証金償却 |
- |
| その他一時金 |
- |
保険等 |
要 2年 20,000円 宅建ファミリー共済 |
| 維持費等 |
- |
| 間取り |
2LDK(洋 4.5・5 LDK 12) |
専有面積 |
46.27m² |
| 築年月 |
1971年5月(築54年11ヶ月)
|
階建 / 階 |
5階建 / 2階 |
| 建物構造 |
RC |
総戸数 |
- |
| 主要採光面 |
南 |
駐車場 |
- |
| バイク置き場 |
- |
駐輪場 |
- |
| 建物名・部屋番号 |
柏町団地13号棟 |
ペット |
-
|
| アピールポイント |
閑静な住宅街の住戸、外観はピンクの柔らかい雰囲気で印象的です。ほぼ室内はリフォーム済みでとってもきれいです。またフットワークが軽くなる玉川上水駅徒歩6分のロケーションで、その上気軽に憩える敷地内公園は居住空間のオアシスになっています。敷地内にはテニスコートもあります。ららぽーとまで車で8分。イトーヨーカドーまで車で9分。ピーコックまで徒歩9分。目の前に郵便局があります。自然に団らんが生まれる2LDK。ご案内いたしますのでお気軽にご連絡ください。 |
| リフォーム履歴 |
■水回り:2025年9月 トイレ、洗面所、給排水管、給湯器 浴室浴槽交換 ■内装:2025年9月 全室クロス張替え、床(フローリング等)、壁・天井(クロス・塗装等)、建具(室内ドア等)、サッシ ■共用部の大規模修繕工事:2025年11月 窓サッシ交換 ■その他:2025年9月 カメラ付きインターフォン交換・ブレーカー盤交換 ※実施年月は最も古い履歴を表示 |
| リノベーション履歴 |
- |
| 備考 |
賃貸保証等:加入要(日本セーフティー 初回50% 毎年1万円 口座振替300円(税別))
管理形態/管理員の勤務形態:-/日勤
バルコニー:6m²
非喫煙者限定、外壁コンクリート、管理人日勤
|
| エネルギー消費性能 |
- |
| 断熱性能 |
- |
| 目安光熱費 |
- |
| バス・トイレ |
バス・トイレ別、追焚機能、シャワー付洗面化粧台、洗面所独立、シャワー、温水洗浄便座、トイレ、浴室に窓あり |
| キッチン |
システムキッチン、独立型キッチン、3口以上コンロ、ガスコンロ付 |
| セキュリティー |
モニター付インターホン、火災警報器(報知機) |
| 収納 |
全居室収納、収納スペース、クローゼット |
| 設備・サービス |
室内洗濯機置場、都市ガス給湯、給湯、全居室フローリング、フローリング、クッションフロア、都市ガス、エアコン |
| TV・通信 |
ケーブルTV |
| その他 |
敷地内公園、来客用駐車場、バルコニー |
| 契約期間 |
2年 |
現況 |
空家 |
| 条件等 |
- |
入居可能時期 |
即時 |
| 更新料 |
新賃料 1ヶ月 |
物件番号 |
6988594032 |
| 情報公開日 |
2026年1月22日 |
次回更新予定日 |
2026年3月31日 |
| ケータイ用バーコード |
- スマートフォンでこの物件を見る
- スマートフォンからもこの物件をご覧になれます。
|
※「-」と表示されている項目については、情報提供会社にご確認ください。
ここから簡単にお問い合わせをすることができます。
(SSLでの暗号化での送信を希望されるお客さまは
こちら
よりお問い合わせください)
お問い合わせを行う前に
「個人情報の取り扱いについて」を必ずお読みください。
「個人情報の取り扱いについて」に同意いただいた場合は「上記にご同意の上 確認画面へ進む」のボタンをクリックしてください。
個人情報の取り扱いについて
皆さまが送付された個人情報はアットホーム(株)のサーバを経由し、お問い合わせ先の不動産会社にメールまたはFAXにて転送されるためアットホーム(株)にも保管されます。アットホーム(株)で保管された個人情報の取り扱いについては、【こちら】をご覧ください。
また、本画面でご記入いただいた個人情報は、お問い合わせ先の不動産会社でも保管します。 お問い合わせ先の不動産会社が保管する個人情報の取り扱いについては、不動産会社に直接お問い合わせください。
東京都知事免許(8)第63382号 |
|---|
- 交通:
- JR中央線/三鷹駅
- 東京都三鷹市下連雀3丁目42-6 グローリオ三鷹禅林寺通り101
- TEL:
- 0422-44-8869
- FAX:
- 0422-44-7388
- 所属団体:
- (公社)東京都宅地建物取引業協会会員(公社)首都圏不動産公正取引協議会加盟
取引態様:仲介  - 00984220
|
- スマートフォンで
この不動産会社を見る

|
- 提携サイト等より掲載されている物件情報につきましては、不動産会社詳細情報にリンクされていないものがあります。
- 物件に関するお問合せは、物件詳細ページの「情報提供会社」に表示されている不動産会社へ直接お願いいたします。
- 間取図は、現況を優先させていただきます。
- 映像は物件の一部を撮影したものです。物件の契約にあたっての最終判断はご自身の判断に基づいて行ってください。
- 仲介手数料について

アットホームは物件情報の適正化に努めております。
内容に誤りがある場合にはこちらへご連絡ください。