福岡県福岡市南区大橋3丁目(大橋駅)の賃貸:物件詳細
交通 所在地 |
駅徒歩 |
賃料 管理費等 |
敷金/保証金 礼金 |
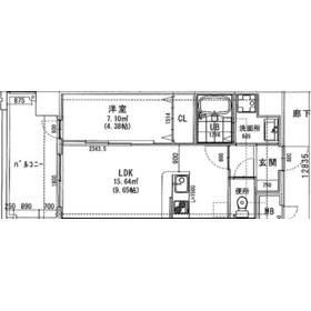
間取り 面積 |
物件種目 築年月 |
|
西鉄天神大牟田線/大橋
福岡県福岡市南区大橋3丁目
|
13分
|
8.4万円
5,000円
|
なし / なし
2ヶ月
|
1LDK
34.71m²
|
賃貸マンション
2026年2月
|
二人入居可、24時間換気システム
|
|
間取図
|
外観
|
<
その他の画像
>
|
| 交通 | 西鉄天神大牟田線 大橋駅 徒歩13分 |
| 所在地 |
福岡県福岡市南区大橋3丁目
|
| 物件種目 |
賃貸マンション |
| 賃料 |
8.4万円 |
管理費等 |
5,000円 |
| 敷金 / 保証金 |
なし / なし |
礼金 |
2ヶ月 |
| 敷引 |
- |
保証金償却 |
- |
| その他一時金 |
退去時ハウスクリーニング:55,000円 |
保険等 |
要 1年 12,000円 |
| 維持費等 |
ライフサポート24+:880円/月、町内会費:300円/月 |
| 間取り |
1LDK |
専有面積 |
34.71m² |
| 築年月 |
2026年2月
|
階建 / 階 |
11階建 / 5階 |
| 建物構造 |
RC |
総戸数 |
31戸 |
| 主要採光面 |
西 |
駐車場 |
空無 |
| バイク置き場 |
無 |
駐輪場 |
有 |
| 建物名・部屋番号 |
ラシュール・イン大橋Ⅱ 502 |
ペット |
-
|
| アピールポイント |
お金のこと、暮らしを考えるのと同じくらい大事ですよね?敷金(保証金)0円。鏡面保護シールが初々しい新築の建物、更にシステムキッチン付です。また不在時の受け取りも楽々の宅配BOX付で、その上転居後のネット接続がスムーズに行えるインターネット使用料無料の物件だから、スマホやPCのヘビーユーザーは特にうってつけです。ちなみに不審者の侵入に目を光らせる防犯カメラ完備です。独身でも新婚でも使える1LDK。ご案内いたしますのでお気軽にご連絡ください。 |
| リフォーム履歴 |
- |
| リノベーション履歴 |
- |
| 備考 |
賃貸保証等:加入要(【オリコによる審査・口座振替】・初回保証料:賃料合計の50%(最低保証料なし)・月額支払手数料:賃料合計の1.2%(変動費がある場合変動費含む合計の1.2%)※更新料1年毎10,000円)
管理形態/管理員の勤務形態:-/-
|
| エネルギー消費性能 |
- |
| 断熱性能 |
- |
| 目安光熱費 |
- |
| バス・トイレ |
バス・トイレ別、浴室乾燥機、洗面所独立、洗面所、洗面台、シャワー、温水洗浄便座、トイレ |
| キッチン |
カウンターキッチン、システムキッチン、2口コンロ、ガスコンロ付 |
| セキュリティー |
オートロック、モニター付インターホン、ディンプルキー、防犯カメラ |
| 収納 |
全居室収納、シューズボックス |
| 設備・サービス |
室内洗濯機置場、洗濯機置場、給湯、フローリング、都市ガス、エアコン |
| TV・通信 |
インターネット使用料無料、CS、BS端子 |
| その他 |
宅配BOX、駐輪場、エレベーター |
| 契約期間 |
2年 |
現況 |
未完成 |
| 条件等 |
- |
入居可能時期 |
2026年3月中旬予定 |
| 更新料 |
- |
物件番号 |
6988659564 |
| 情報公開日 |
2025年12月6日 |
次回更新予定日 |
2026年1月3日 |
| ケータイ用バーコード |
- スマートフォンでこの物件を見る
- スマートフォンからもこの物件をご覧になれます。
|
※「-」と表示されている項目については、情報提供会社にご確認ください。
ここから簡単にお問い合わせをすることができます。
(SSLでの暗号化での送信を希望されるお客さまは
こちら
よりお問い合わせください)
お問い合わせを行う前に
「個人情報の取り扱いについて」を必ずお読みください。
「個人情報の取り扱いについて」に同意いただいた場合は「上記にご同意の上 確認画面へ進む」のボタンをクリックしてください。
個人情報の取り扱いについて
皆さまが送付された個人情報はアットホーム(株)のサーバを経由し、お問い合わせ先の不動産会社にメールまたはFAXにて転送されるためアットホーム(株)にも保管されます。アットホーム(株)で保管された個人情報の取り扱いについては、【こちら】をご覧ください。
また、本画面でご記入いただいた個人情報は、お問い合わせ先の不動産会社でも保管します。 お問い合わせ先の不動産会社が保管する個人情報の取り扱いについては、不動産会社に直接お問い合わせください。
福岡県知事免許(1)第20038号 |
|---|
- 交通:
- 地下鉄七隈線/渡辺通駅 徒歩2分 【バス】 渡辺通1丁目 停歩1分
- 福岡県福岡市中央区高砂1丁目1-25 ニューガイアオフィス天神306
- TEL:
- 092-791-4516
- FAX:
- 092-791-4517
- 所属団体:
- (公社)福岡県宅地建物取引業協会会員(一社)九州不動産公正取引協議会加盟
取引態様:仲介  - 80506479
|
- スマートフォンで
この不動産会社を見る

|
- 提携サイト等より掲載されている物件情報につきましては、不動産会社詳細情報にリンクされていないものがあります。
- 物件に関するお問合せは、物件詳細ページの「情報提供会社」に表示されている不動産会社へ直接お願いいたします。
- 間取図は、現況を優先させていただきます。
- 映像は物件の一部を撮影したものです。物件の契約にあたっての最終判断はご自身の判断に基づいて行ってください。
- 仲介手数料について

アットホームは物件情報の適正化に努めております。
内容に誤りがある場合にはこちらへご連絡ください。