神奈川県川崎市高津区瀬田(二子新地駅)の賃貸:物件詳細
交通 所在地 |
駅徒歩 |
賃料 管理費等 |
敷金/保証金 礼金 |
間取り 面積 |
物件種目 築年月 |
|
東急田園都市線/二子新地
神奈川県川崎市高津区瀬田
|
5分
|
12.05万円
10,000円
|
なし / なし
なし
|
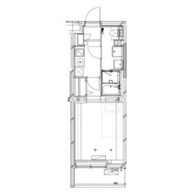
1K
25.35m²
|
賃貸マンション
2025年11月
|
ペット相談、分譲タイプ、南向き、二人入居可、24時間換気システム、保証人不要
|
| 交通 | 東急田園都市線 二子新地駅 徒歩5分 |
|---|
| その他の交通 | 東急田園都市線 高津駅 徒歩11分 東急大井町線 二子玉川駅 徒歩11分 |
| 所在地 |
神奈川県川崎市高津区瀬田
|
| 物件種目 |
賃貸マンション |
| 賃料 |
12.05万円 |
管理費等 |
10,000円 |
| 敷金 / 保証金 |
なし / なし |
礼金 |
なし |
| 敷引 |
- |
保証金償却 |
- |
| その他一時金 |
契約事務手数料:11,000円、退去時ハウスクリーニング:38,500円 |
保険等 |
要 |
| 維持費等 |
- |
| 間取り |
1K(洋室8) |
専有面積 |
25.35m² |
| 築年月 |
2025年11月
|
階建 / 階 |
5階建 / 1階 |
| 建物構造 |
RC |
総戸数 |
- |
| 主要採光面 |
南 |
駐車場 |
- |
| バイク置き場 |
無 |
駐輪場 |
有 |
| 建物名・部屋番号 |
ジェノヴィア二子新地 |
ペット |
小型犬可・ 大型犬可・ 猫可 |
| アピールポイント |
この浮いたお金でうまくやりくりを!礼金敷金(保証金)0円。お探しの方には嬉しいペット(大型犬)相談可。手つかずの新築、更にコンロやシンクがセットされたシステムキッチン付です。また留守番いらずの宅配BOX付で、その上不審者の侵入に目を光らせる防犯カメラ完備なので、空き巣を躊躇させる効果があります。ちなみに二重鍵で空き巣対策になるダブルロックドア仕様です。使い勝手のよい1K。ご案内いたしますのでお気軽にご連絡ください。 |
| リフォーム履歴 |
- |
| リノベーション履歴 |
- |
| 備考 |
賃貸保証等:加入要(初回契約時:40%、月額:2,700円、※月額保証に保険、駆けつけ費用含む ※外国籍の場合、初回保証料100% 年毎10,800円)
管理形態/管理員の勤務形態:-/-
・1年未満の解約は短期解約違約金有⇒賃料、管理費総額1ヶ月分 ・解約予告2ヶ月前 ・水商売の方 保証会社+保証人+契約時ルームクリーニング代必須 ・ペット飼育の場合、敷金1ヶ月増額/解約時償却&初回保証料100%、外国籍120%(敷金解約時償却に原状回復費用は含まれません) ・外国籍学生、ワーホリでの申込の場合、契約時に敷金1ヶ月増額+ルームクリーニング代必須
・1年未満の解約は短期解約違約金有⇒賃料、管理費総額1ヶ月分 ・解約予告2ヶ月前 ・水商売の方 保証会社+保証人+契約時ルームクリーニング代必須 ・ペット飼育の場合、敷金1ヶ月増額/解約時償却&初回保証料100%、外国籍120%(敷金解約時償却に原状回復費用は含まれません) ・外国籍学生、ワーホリでの申込の場合、契約時に敷金1ヶ月増額+ルームクリーニング代必須
|
| エネルギー消費性能 |
- |
| 断熱性能 |
- |
| 目安光熱費 |
- |
| バス・トイレ |
バス・トイレ別、浴室乾燥機、温水洗浄便座、トイレ |
| キッチン |
システムキッチン、2口コンロ、ガスコンロ付 |
| セキュリティー |
モニター付オートロック、オートロック、モニター付インターホン、ダブルロックドア、防犯カメラ |
| 収納 |
収納スペース、クローゼット、シューズボックス |
| 設備・サービス |
室内洗濯機置場、洗濯機置場、フローリング、都市ガス、エアコン |
| TV・通信 |
- |
| その他 |
宅配BOX、バルコニー、駐輪場、エレベーター |
| 契約期間 |
2年 |
現況 |
空家 |
| 条件等 |
- |
入居可能時期 |
即時 |
| 更新料 |
新賃料 1ヶ月 |
物件番号 |
6988673041 |
| 情報公開日 |
2025年12月7日 |
次回更新予定日 |
2025年12月21日 |
| ケータイ用バーコード |
- スマートフォンでこの物件を見る
- スマートフォンからもこの物件をご覧になれます。
|
※「-」と表示されている項目については、情報提供会社にご確認ください。
ここから簡単にお問い合わせをすることができます。
(SSLでの暗号化での送信を希望されるお客さまは
こちら
よりお問い合わせください)
お問い合わせを行う前に
「個人情報の取り扱いについて」を必ずお読みください。
「個人情報の取り扱いについて」に同意いただいた場合は「上記にご同意の上 確認画面へ進む」のボタンをクリックしてください。
個人情報の取り扱いについて
皆さまが送付された個人情報はアットホーム(株)のサーバを経由し、お問い合わせ先の不動産会社にメールまたはFAXにて転送されるためアットホーム(株)にも保管されます。アットホーム(株)で保管された個人情報の取り扱いについては、【こちら】をご覧ください。
また、本画面でご記入いただいた個人情報は、お問い合わせ先の不動産会社でも保管します。 お問い合わせ先の不動産会社が保管する個人情報の取り扱いについては、不動産会社に直接お問い合わせください。
神奈川県知事免許(1)第32553号 |
|---|
- 交通:
- JR根岸線/山手駅
- 神奈川県横浜市中区本郷町2丁目47 コリドール山手1F
- TEL:
- 045-900-5417
- FAX:
- 045-319-4771
- 所属団体:
- (公社)神奈川県宅地建物取引業協会会員(公社)首都圏不動産公正取引協議会加盟
取引態様:仲介  - 00277886
|
- スマートフォンで
この不動産会社を見る

|
- 提携サイト等より掲載されている物件情報につきましては、不動産会社詳細情報にリンクされていないものがあります。
- 物件に関するお問合せは、物件詳細ページの「情報提供会社」に表示されている不動産会社へ直接お願いいたします。
- 間取図は、現況を優先させていただきます。
- 映像は物件の一部を撮影したものです。物件の契約にあたっての最終判断はご自身の判断に基づいて行ってください。
- 仲介手数料について

アットホームは物件情報の適正化に努めております。
内容に誤りがある場合にはこちらへご連絡ください。