東京都目黒区下目黒2丁目(目黒駅)の賃貸:物件詳細
交通 所在地 |
駅徒歩 |
賃料 管理費等 |
敷金/保証金 礼金 |
間取り 面積 |
物件種目 築年月 |
|
JR山手線/目黒
東京都目黒区下目黒2丁目
|
10分
|
26万円
なし
|
52万円 / なし
なし
|
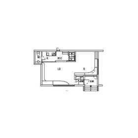
1LDK
43.77m²
|
賃貸マンション
2007年3月(築19年1ヶ月)
|
フリーレント
|
|
間取図
|
|
その他の画像
|
| 交通 | JR山手線 目黒駅 徒歩10分 |
|---|
| その他の交通 | 東急目黒線 不動前駅 徒歩8分 都営浅草線 五反田駅 徒歩16分 |
| 所在地 |
東京都目黒区下目黒2丁目
|
| 物件種目 |
賃貸マンション |
| 賃料 |
26万円 |
管理費等 |
なし |
| 敷金 / 保証金 |
52万円 / なし |
礼金 |
なし |
| 敷引 |
- |
保証金償却 |
- |
| その他一時金 |
カギ交換代:27,500円 |
保険等 |
要 2年 |
| 維持費等 |
ビーロット安心サポート:1,650円/月 |
| 間取り |
1LDK |
専有面積 |
43.77m² |
| 築年月 |
2007年3月(築19年1ヶ月)
|
階建 / 階 |
4階建 / 1階 |
| 建物構造 |
RC |
総戸数 |
16戸 |
| 主要採光面 |
|
駐車場 |
無 |
| バイク置き場 |
- |
駐輪場 |
- |
| 建物名・部屋番号 |
メグロポイント 104 |
ペット |
-
|
| アピールポイント |
コストに敏感な方のスマートチョイス!礼金0円。広々とした延床面積43.77㎡で居住スペースにゆとり充分。独身でも新婚でも使える1LDK。ご案内いたしますのでお気軽にご連絡ください。 |
| リフォーム履歴 |
- |
| リノベーション履歴 |
- |
| 備考 |
賃貸保証等:加入要(ジェイリース株式会社(集金代行) 初期費用:支払総額の50~100%(審査による))
管理形態/管理員の勤務形態:-/-
フリーレント:2ヶ月(1ヶ月はADへ振り替え可能)
|
| エネルギー消費性能 |
- |
| 断熱性能 |
- |
| 目安光熱費 |
- |
| バス・トイレ |
- |
| キッチン |
- |
| セキュリティー |
- |
| 収納 |
- |
| 設備・サービス |
- |
| TV・通信 |
- |
| その他 |
- |
| 契約期間 |
2年 |
現況 |
空家 |
| 条件等 |
- |
入居可能時期 |
相談 |
| 更新料 |
新賃料 1ヶ月 |
物件番号 |
6988673522 |
| 情報公開日 |
2025年12月7日 |
次回更新予定日 |
2026年3月30日 |
| ケータイ用バーコード |
- スマートフォンでこの物件を見る
- スマートフォンからもこの物件をご覧になれます。
|
※「-」と表示されている項目については、情報提供会社にご確認ください。
ここから簡単にお問い合わせをすることができます。
(SSLでの暗号化での送信を希望されるお客さまは
こちら
よりお問い合わせください)
お問い合わせを行う前に
「個人情報の取り扱いについて」を必ずお読みください。
「個人情報の取り扱いについて」に同意いただいた場合は「上記にご同意の上 確認画面へ進む」のボタンをクリックしてください。
個人情報の取り扱いについて
皆さまが送付された個人情報はアットホーム(株)のサーバを経由し、お問い合わせ先の不動産会社にメールまたはFAXにて転送されるためアットホーム(株)にも保管されます。アットホーム(株)で保管された個人情報の取り扱いについては、【こちら】をご覧ください。
また、本画面でご記入いただいた個人情報は、お問い合わせ先の不動産会社でも保管します。 お問い合わせ先の不動産会社が保管する個人情報の取り扱いについては、不動産会社に直接お問い合わせください。
東京都知事免許(4)第86703号 |
|---|
- 交通:
- JR山手線/大崎駅 徒歩6分
- 東京都品川区大崎5丁目6-17
- TEL:
- 03-6426-1190
- FAX:
- 03-6426-1192
- 所属団体:
- (公社)全日本不動産協会会員(公社)首都圏不動産公正取引協議会加盟
取引態様:仲介  - 00015668
|
- スマートフォンで
この不動産会社を見る

|
- 提携サイト等より掲載されている物件情報につきましては、不動産会社詳細情報にリンクされていないものがあります。
- 物件に関するお問合せは、物件詳細ページの「情報提供会社」に表示されている不動産会社へ直接お願いいたします。
- 間取図は、現況を優先させていただきます。
- 映像は物件の一部を撮影したものです。物件の契約にあたっての最終判断はご自身の判断に基づいて行ってください。
- 仲介手数料について

アットホームは物件情報の適正化に努めております。
内容に誤りがある場合にはこちらへご連絡ください。