鹿児島県日置市伊集院町猪鹿倉1丁目(伊集院駅)の賃貸:物件詳細
交通 所在地 |
駅徒歩 |
賃料 管理費等 |
敷金/保証金 礼金 |
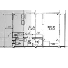
間取り 面積 |
物件種目 築年月 |
|
JR鹿児島本線/伊集院
鹿児島県日置市伊集院町猪鹿倉1丁目
|
8分
|
5.5万円
なし
|
2ヶ月 / なし
なし
|
1LDK
42.00m²
|
賃貸アパート
2017年6月(築8年7ヶ月)
|
角部屋、2面採光
|
|
間取図
|
|
<
その他の画像
>
|
| 交通 | JR鹿児島本線 伊集院駅 徒歩8分 |
| 所在地 |
鹿児島県日置市伊集院町猪鹿倉1丁目
|
| 物件種目 |
賃貸アパート |
| 賃料 |
5.5万円 |
管理費等 |
なし |
| 敷金 / 保証金 |
2ヶ月 / なし |
礼金 |
なし |
| 敷引 |
- |
保証金償却 |
- |
| その他一時金 |
- |
保険等 |
要 2年 15,000円 |
| 維持費等 |
- |
| 間取り |
1LDK(洋 7.5) |
専有面積 |
42.00m² |
| 築年月 |
2017年6月(築8年7ヶ月)
|
階建 / 階 |
2階建 / 2階 |
| 建物構造 |
鉄骨造 |
総戸数 |
6戸 |
| 主要採光面 |
東 |
駐車場 |
有 無料 |
| バイク置き場 |
無 |
駐輪場 |
無 |
| 建物名・部屋番号 |
|
ペット |
-
|
| アピールポイント |
ガスコンロ・エアコン常設/窓は外窓2重サッシ+内窓2重サッシ/カーポート付き駐車場
近隣に生協、ニシムタ伊集院店、コスモスなどがあります。 |
| リフォーム履歴 |
- |
| リノベーション履歴 |
- |
| 備考 |
管理形態/管理員の勤務形態:-/不在
|
| エネルギー消費性能 |
- |
| 断熱性能 |
- |
| 目安光熱費 |
- |
| バス・トイレ |
シャワー |
| キッチン |
2口コンロ、ガスコンロ付 |
| セキュリティー |
モニター付インターホン、ダブルロックドア |
| 収納 |
クローゼット、シューズボックス |
| 設備・サービス |
エアコン |
| TV・通信 |
BS端子、有線放送 |
| その他 |
バルコニー |
| 契約期間 |
1年 |
現況 |
空家 |
| 条件等 |
- |
入居可能時期 |
即時 |
| 更新料 |
なし |
物件番号 |
6988704146 |
| 情報公開日 |
2025年12月9日 |
次回更新予定日 |
2026年1月2日 |
| ケータイ用バーコード |
- スマートフォンでこの物件を見る
- スマートフォンからもこの物件をご覧になれます。
|
※「-」と表示されている項目については、情報提供会社にご確認ください。
| 周辺施設 |
ファッションセンターしまむら伊集院店 |
| 距離 |
338m |
| 周辺施設 |
スーパーセンターニシムタ伊集院店 |
| 距離 |
433m |
| 周辺施設 |
ファミリーマート伊集院猪鹿倉店 |
| 距離 |
153m |
| 周辺施設 |
ダイソーコープ鹿児島伊集院店 |
| 距離 |
186m |
ここから簡単にお問い合わせをすることができます。
(SSLでの暗号化での送信を希望されるお客さまは
こちら
よりお問い合わせください)
お問い合わせを行う前に
「個人情報の取り扱いについて」を必ずお読みください。
「個人情報の取り扱いについて」に同意いただいた場合は「上記にご同意の上 確認画面へ進む」のボタンをクリックしてください。
個人情報の取り扱いについて
皆さまが送付された個人情報はアットホーム(株)のサーバを経由し、お問い合わせ先の不動産会社にメールまたはFAXにて転送されるためアットホーム(株)にも保管されます。アットホーム(株)で保管された個人情報の取り扱いについては、【こちら】をご覧ください。
また、本画面でご記入いただいた個人情報は、お問い合わせ先の不動産会社でも保管します。 お問い合わせ先の不動産会社が保管する個人情報の取り扱いについては、不動産会社に直接お問い合わせください。
鹿児島県知事免許(4)第5516号 |
|---|
- 交通:
- JR鹿児島本線/伊集院駅 徒歩6分
- 鹿児島県日置市伊集院町猪鹿倉1丁目6-1 エクセルコートK103
- TEL:
- 099-213-9234
- 所属団体:
- (公社)鹿児島県宅地建物取引業協会会員(一社)九州不動産公正取引協議会加盟
取引態様:仲介  - 80508742
|
- スマートフォンで
この不動産会社を見る

|
- 提携サイト等より掲載されている物件情報につきましては、不動産会社詳細情報にリンクされていないものがあります。
- 物件に関するお問合せは、物件詳細ページの「情報提供会社」に表示されている不動産会社へ直接お願いいたします。
- 間取図は、現況を優先させていただきます。
- 映像は物件の一部を撮影したものです。物件の契約にあたっての最終判断はご自身の判断に基づいて行ってください。
- 仲介手数料について

アットホームは物件情報の適正化に努めております。
内容に誤りがある場合にはこちらへご連絡ください。