兵庫県神戸市東灘区魚崎北町2丁目(青木駅)の賃貸:物件詳細
交通 所在地 |
駅徒歩 |
賃料 管理費等 |
敷金/保証金 礼金 |
間取り 面積 |
物件種目 築年月 |
|
阪神本線/青木
兵庫県神戸市東灘区魚崎北町2丁目
|
10分
|
6.8万円
5,000円
|
10万円 / なし
15万円
|
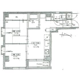
2DK
36.50m²
|
賃貸マンション
1996年4月(築29年9ヶ月)
|
角部屋、外観タイル張り、置き配スペース
|
|
間取図
|
外観
|
<
その他の画像
>
|
| 交通 | 阪神本線 青木駅 徒歩10分 |
|---|
| その他の交通 | 阪神本線 魚崎駅 徒歩12分 六甲アイランド線 魚崎駅 徒歩12分 |
| 所在地 |
兵庫県神戸市東灘区魚崎北町2丁目
|
| 物件種目 |
賃貸マンション |
| 賃料 |
6.8万円 |
管理費等 |
5,000円 |
| 敷金 / 保証金 |
10万円 / なし |
礼金 |
15万円 |
| 敷引 |
- |
保証金償却 |
- |
| その他一時金 |
- |
保険等 |
要 2年 18,000円 ジャパン少額短期 |
| 維持費等 |
- |
| 間取り |
2DK(和 4.5 洋 4.5 DK 7) |
専有面積 |
36.50m² |
| 築年月 |
1996年4月(築29年9ヶ月)
|
階建 / 階 |
5階建 / 3階 |
| 建物構造 |
RC |
総戸数 |
- |
| 主要採光面 |
東 |
駐車場 |
無 |
| バイク置き場 |
無 |
駐輪場 |
有 無料 |
| 建物名・部屋番号 |
フェニックスコート甲南 305 |
ペット |
-
|
| アピールポイント |
自然派も納得のノンホルムアルデヒド仕様、更にお手入れ楽ちんなシステムキッチンはトータルで設計されているのでバランスの良さが魅力です。またお鍋とフライパンを使いながらヤカンもおけるコンロ3口以上付で、その上スピーカーとディスプレイを備えたモニタ付インターホン設置なので、目で見て確認の安心が備わっています。ちなみに他の住人の往来が少ない角部屋です。家族の団結を強める2DK。ご案内いたしますのでお気軽にご連絡ください。 |
| リフォーム履歴 |
■水回り:2025年12月 浴室、給湯器 ■その他:2025年12月 ガスコンロ、エアコン新調 ※実施年月は最も古い履歴を表示 |
| リノベーション履歴 |
- |
| 備考 |
賃貸保証等:加入要(賃料+管理費の1ヶ月分で退去まで保証)
管理形態/管理員の勤務形態:-/-
ノンホルムアルデヒド
|
| エネルギー消費性能 |
- |
| 断熱性能 |
- |
| 目安光熱費 |
- |
| バス・トイレ |
バス・トイレ別、高温差湯式、シャワー、トイレ |
| キッチン |
システムキッチン、3口以上コンロ、ガスコンロ付、グリル |
| セキュリティー |
オートロック、モニター付インターホン、火災警報器(報知機) |
| 収納 |
収納スペース、クローゼット、シューズボックス |
| 設備・サービス |
室内洗濯機置場、洗濯機置場、都市ガス給湯、給湯、フローリング、都市ガス、エアコン |
| TV・通信 |
ケーブルTV |
| その他 |
バルコニー、駐輪場、エレベーター |
| 契約期間 |
2年 |
現況 |
空家 |
| 条件等 |
- |
入居可能時期 |
指定有り2026年1月10日 |
| 仲介手数料 |
1ヶ月 |
|
|
| 更新料 |
なし |
物件番号 |
6988705815 |
| 情報公開日 |
2025年12月9日 |
次回更新予定日 |
2025年12月23日 |
| ケータイ用バーコード |
- スマートフォンでこの物件を見る
- スマートフォンからもこの物件をご覧になれます。
|
※「-」と表示されている項目については、情報提供会社にご確認ください。
| 周辺施設 |
セブンイレブン神戸魚崎北町5丁目店 |
| 距離 |
415m |
写真を見る |
| 周辺施設 |
すき家甲南店 |
| 距離 |
562m |
写真を見る |
| 周辺施設 |
ウエルシア神戸魚崎北町店 |
| 距離 |
337m |
写真を見る |
| 周辺施設 |
神戸甲南郵便局 |
| 距離 |
605m |
写真を見る |
| 周辺施設 |
三井住友銀行甲南支店 |
| 距離 |
579m |
写真を見る |
ここから簡単にお問い合わせをすることができます。
(SSLでの暗号化での送信を希望されるお客さまは
こちら
よりお問い合わせください)
お問い合わせを行う前に
「個人情報の取り扱いについて」を必ずお読みください。
「個人情報の取り扱いについて」に同意いただいた場合は「上記にご同意の上 確認画面へ進む」のボタンをクリックしてください。
個人情報の取り扱いについて
皆さまが送付された個人情報はアットホーム(株)のサーバを経由し、お問い合わせ先の不動産会社にメールまたはFAXにて転送されるためアットホーム(株)にも保管されます。アットホーム(株)で保管された個人情報の取り扱いについては、【こちら】をご覧ください。
また、本画面でご記入いただいた個人情報は、お問い合わせ先の不動産会社でも保管します。 お問い合わせ先の不動産会社が保管する個人情報の取り扱いについては、不動産会社に直接お問い合わせください。
兵庫県知事免許(3)第11651号 |
|---|
- 交通:
- 阪神本線/魚崎駅 徒歩11分
- 兵庫県神戸市東灘区魚崎北町2丁目1-27 松田ビル1階
- TEL:
- 078-763-1377
- FAX:
- 078-763-1378
- 所属団体:
- (一社)兵庫県宅地建物取引業協会会員(公社)近畿地区不動産公正取引協議会加盟
取引態様:仲介  - 50104049
|
- スマートフォンで
この不動産会社を見る

|
- 提携サイト等より掲載されている物件情報につきましては、不動産会社詳細情報にリンクされていないものがあります。
- 物件に関するお問合せは、物件詳細ページの「情報提供会社」に表示されている不動産会社へ直接お願いいたします。
- 間取図は、現況を優先させていただきます。
- 映像は物件の一部を撮影したものです。物件の契約にあたっての最終判断はご自身の判断に基づいて行ってください。
- 仲介手数料について

アットホームは物件情報の適正化に努めております。
内容に誤りがある場合にはこちらへご連絡ください。