東京都世田谷区駒沢3丁目(駒沢大学駅)の賃貸:物件詳細
交通 所在地 |
駅徒歩 |
賃料 管理費等 |
敷金/保証金 礼金 |
間取り 面積 |
物件種目 築年月 |
|
東急田園都市線/駒沢大学
東京都世田谷区駒沢3丁目
|
9分
|
12.8万円
10,000円
|
なし / なし
1ヶ月
|
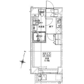
1K
25.55m²
|
賃貸マンション
2025年3月(築1年未満)
|
ペット相談、デザイナーズ、分譲タイプ、常時ゴミ出し可能、角部屋、南向き、外観タイル張り、保証人不要
|
|
間取図
|
外観
|
<
その他の画像
>
|
| 交通 | 東急田園都市線 駒沢大学駅 徒歩9分 |
|---|
| その他の交通 | 東急田園都市線 桜新町駅 徒歩12分 東急世田谷線 松陰神社前駅 徒歩22分 |
| 所在地 |
東京都世田谷区駒沢3丁目
|
| 物件種目 |
賃貸マンション |
| 賃料 |
12.8万円 |
管理費等 |
10,000円 |
| 敷金 / 保証金 |
なし / なし |
礼金 |
1ヶ月 |
| 敷引 |
- |
保証金償却 |
- |
| その他一時金 |
契約事務手数料:11,000円、害虫駆除・除菌サービス:27,500円、鍵交換代等:33,000円~ |
保険等 |
要 |
| 維持費等 |
Life Assist24:1,980円/月 |
| 間取り |
1K(洋 8) |
専有面積 |
25.55m² |
| 築年月 |
2025年3月(築1年未満)
|
階建 / 階 |
11階建 / 4階 |
| 建物構造 |
RC |
総戸数 |
20戸 |
| 主要採光面 |
南 |
駐車場 |
- |
| バイク置き場 |
- |
駐輪場 |
有 |
| 建物名・部屋番号 |
THE MARK COURT Ⅱ 401 |
ペット |
飼育承諾料として総賃料1ヶ月 |
| アピールポイント |
弊社は神田駅徒歩1分の場所にございます。
事前にご予約を頂戴できれば、お仕事終わりのご対応も可能です。
また、弊社ではリモート内覧、リモート応対等、今の時代に合ったご案内方法がご選択可能です。
コロナ対策を含めご安心頂けるお部屋探しをお手伝いさせて頂きます。
個室でのご対応、大型モニターを使いながらお部屋のご提案もできますので、ファミリーの方も安心してご来店頂けます。
不動産経験10年以上の経験豊富なスタッフが、お客様より一つでも多くの笑顔が頂けるよう誠心誠意サポート致します。 |
| リフォーム履歴 |
- |
| リノベーション履歴 |
- |
| 備考 |
賃貸保証等:加入要(株式会社エポスカード(ROOMiDにて初回保証料:総賃料の100% 月次保証料総賃料の1%))
管理形態/管理員の勤務形態:-/巡回
管理人巡回
短期解約違約金あり
法人契約の場合は敷金と礼金が1ヶ月ずつ積み増しとなります
|
| エネルギー消費性能 |
- |
| 断熱性能 |
- |
| 目安光熱費 |
- |
| バス・トイレ |
バス・トイレ別、浴室暖房、浴室乾燥機、オートバス、洗面所、洗面台、シャワー、温水洗浄便座、トイレ |
| キッチン |
システムキッチン、2口コンロ、ガスコンロ付 |
| セキュリティー |
モニター付オートロック、オートロック、ディンプルキー、ダブルロックドア、防犯カメラ |
| 収納 |
収納スペース、クローゼット、シューズボックス |
| 設備・サービス |
室内洗濯機置場、洗濯機置場、給湯、フローリング、都市ガス、エアコン、暖房、冷房 |
| TV・通信 |
インターネット使用料無料、CS、BS端子、マルチメディアコンセント |
| その他 |
宅配BOX、バルコニー、駐輪場、エレベーター |
| 契約期間 |
2年 |
現況 |
居住中 |
| 条件等 |
- |
入居可能時期 |
相談 |
| 更新料 |
新賃料 1ヶ月 |
物件番号 |
6988749151 |
| 情報公開日 |
2025年12月12日 |
次回更新予定日 |
2025年12月26日 |
| ケータイ用バーコード |
- スマートフォンでこの物件を見る
- スマートフォンからもこの物件をご覧になれます。
|
※「-」と表示されている項目については、情報提供会社にご確認ください。
| 周辺施設 |
まいばすけっと駒沢4丁目店 |
| 距離 |
250m |
| 周辺施設 |
セブンイレブン世田谷駒沢4丁目店 |
| 距離 |
196m |
| 周辺施設 |
ほっともっと駒澤大学前店 |
| 距離 |
401m |
ここから簡単にお問い合わせをすることができます。
(SSLでの暗号化での送信を希望されるお客さまは
こちら
よりお問い合わせください)
お問い合わせを行う前に
「個人情報の取り扱いについて」を必ずお読みください。
「個人情報の取り扱いについて」に同意いただいた場合は「上記にご同意の上 確認画面へ進む」のボタンをクリックしてください。
個人情報の取り扱いについて
皆さまが送付された個人情報はアットホーム(株)のサーバを経由し、お問い合わせ先の不動産会社にメールまたはFAXにて転送されるためアットホーム(株)にも保管されます。アットホーム(株)で保管された個人情報の取り扱いについては、【こちら】をご覧ください。
また、本画面でご記入いただいた個人情報は、お問い合わせ先の不動産会社でも保管します。 お問い合わせ先の不動産会社が保管する個人情報の取り扱いについては、不動産会社に直接お問い合わせください。
国土交通大臣免許(2)第8943号 |
|---|
- 交通:
- JR山手線/神田駅 徒歩1分
- 東京都千代田区鍛冶町2丁目6-2 上野ビルディング8階
- TEL:
- 03-6206-0627
- FAX:
- 03-6206-0346
- 所属団体:
- (公社)全日本不動産協会会員(公社)首都圏不動産公正取引協議会加盟
取引態様:代理  - 00102819
|
- スマートフォンで
この不動産会社を見る

|
- 提携サイト等より掲載されている物件情報につきましては、不動産会社詳細情報にリンクされていないものがあります。
- 物件に関するお問合せは、物件詳細ページの「情報提供会社」に表示されている不動産会社へ直接お願いいたします。
- 間取図は、現況を優先させていただきます。
- 映像は物件の一部を撮影したものです。物件の契約にあたっての最終判断はご自身の判断に基づいて行ってください。
- 仲介手数料について

アットホームは物件情報の適正化に努めております。
内容に誤りがある場合にはこちらへご連絡ください。