東京都板橋区上板橋3丁目(上板橋駅)の賃貸:物件詳細
交通 所在地 |
駅徒歩 |
賃料 管理費等 |
敷金/保証金 礼金 |
間取り 面積 |
物件種目 築年月 |
|
東武東上線/上板橋
東京都板橋区上板橋3丁目
|
6分
|
7.9万円
10,000円
|
なし / なし
1ヶ月
|
1K
25.76m²
|
賃貸マンション
2014年8月(築11年5ヶ月)
|
分譲タイプ、保証人不要
|
|
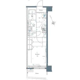
間取図
|
外観
|
<
その他の画像
>
|
| 交通 | 東武東上線 上板橋駅 徒歩6分 |
|---|
| その他の交通 | 東武東上線 東武練馬駅 徒歩12分 東武東上線 ときわ台駅 徒歩21分 |
| 所在地 |
東京都板橋区上板橋3丁目
|
| 物件種目 |
賃貸マンション |
| 賃料 |
7.9万円 |
管理費等 |
10,000円 |
| 敷金 / 保証金 |
なし / なし |
礼金 |
1ヶ月 |
| 敷引 |
- |
保証金償却 |
- |
| その他一時金 |
契約事務手数料:11,000円、アクト安心ライフ24(2年毎更新必須):16,500円、除菌消臭代:11,000円、鍵交換代等:33,000円~ |
保険等 |
要 2年 20,000円 |
| 維持費等 |
- |
| 間取り |
1K(洋室7.2・K) |
専有面積 |
25.76m² |
| 築年月 |
2014年8月(築11年5ヶ月)
|
階建 / 階 |
5階建 / 2階 |
| 建物構造 |
RC |
総戸数 |
40戸 |
| 主要採光面 |
南西 |
駐車場 |
空無 |
| バイク置き場 |
有 |
駐輪場 |
有 無料 |
| 建物名・部屋番号 |
AZEST上板橋Ⅱ 207 |
ペット |
-
|
| リフォーム履歴 |
- |
| リノベーション履歴 |
- |
| 備考 |
賃貸保証等:加入要(初回契約時:50%、月額:1.2%、外国籍の方(ジェイリースの場合):初回保証料100%・月額保証料1.2%)
管理形態/管理員の勤務形態:-/巡回
管理人巡回
退去前先行契約、解約予告2ヶ月前、1年未満解約違約金(賃料+管理費1ヶ月分)、更新事務手数料(個人2万円+税/法人0.5ヶ月+税)、退去時:室内清掃費・原状回復費・ACクリーニング代、鍵交換代は1シリンダー交換の場合の料金、鍵渡しは1本のみの場合あり、CATV有、内見予約・お申込み・物件詳細はITANDIにてご確認をお願い致します
海外審査不可、エンド向け掲載可(確認不要)、駐車場・バイク置場・駐輪場:空き状況・費用等要確認
|
| エネルギー消費性能 |
- |
| 断熱性能 |
- |
| 目安光熱費 |
- |
| バス・トイレ |
バス・トイレ別、浴室乾燥機、洗面所独立、洗面所、シャワー、温水洗浄便座、トイレ |
| キッチン |
システムキッチン、2口コンロ |
| セキュリティー |
モニター付オートロック、オートロック、モニター付インターホン |
| 収納 |
クローゼット、シューズボックス |
| 設備・サービス |
室内洗濯機置場、洗濯機置場、フローリング、室内物干し、都市ガス、エアコン |
| TV・通信 |
インターネット使用料無料、CS、BS端子 |
| その他 |
宅配BOX、バイク置き場、バルコニー、駐輪場、エレベーター |
| 契約期間 |
2年 |
現況 |
居住中 |
| 条件等 |
- |
入居可能時期 |
2026年2月中旬予定 |
| 更新料 |
新賃料 1ヶ月 |
物件番号 |
6988783253 |
| 情報公開日 |
2025年12月15日 |
次回更新予定日 |
2025年12月29日 |
| ケータイ用バーコード |
- スマートフォンでこの物件を見る
- スマートフォンからもこの物件をご覧になれます。
|
※「-」と表示されている項目については、情報提供会社にご確認ください。
| 周辺施設 |
ファミリーマート上板橋三丁目店 |
| 距離 |
97m |
| 周辺施設 |
まいばすけっと上板橋3丁目店 |
| 距離 |
197m |
| 周辺施設 |
ツルハドラッグ練馬北町店 |
| 距離 |
327m |
| 周辺施設 |
コジマ×ビックカメラ上板橋店 |
| 距離 |
293m |
ここから簡単にお問い合わせをすることができます。
(SSLでの暗号化での送信を希望されるお客さまは
こちら
よりお問い合わせください)
お問い合わせを行う前に
「個人情報の取り扱いについて」を必ずお読みください。
「個人情報の取り扱いについて」に同意いただいた場合は「上記にご同意の上 確認画面へ進む」のボタンをクリックしてください。
個人情報の取り扱いについて
皆さまが送付された個人情報はアットホーム(株)のサーバを経由し、お問い合わせ先の不動産会社にメールまたはFAXにて転送されるためアットホーム(株)にも保管されます。アットホーム(株)で保管された個人情報の取り扱いについては、【こちら】をご覧ください。
また、本画面でご記入いただいた個人情報は、お問い合わせ先の不動産会社でも保管します。 お問い合わせ先の不動産会社が保管する個人情報の取り扱いについては、不動産会社に直接お問い合わせください。
東京都知事免許(1)第109870号 |
|---|
- 交通:
- JR山手線/池袋駅 徒歩1分
- 東京都豊島区西池袋1丁目17-6 池袋西口センタービル2階
- TEL:
- 03-5906-9058
- 所属団体:
- (公社)全日本不動産協会会員(公社)首都圏不動産公正取引協議会加盟
取引態様:仲介  - 00278088
|
- スマートフォンで
この不動産会社を見る

|
- 提携サイト等より掲載されている物件情報につきましては、不動産会社詳細情報にリンクされていないものがあります。
- 物件に関するお問合せは、物件詳細ページの「情報提供会社」に表示されている不動産会社へ直接お願いいたします。
- 間取図は、現況を優先させていただきます。
- 映像は物件の一部を撮影したものです。物件の契約にあたっての最終判断はご自身の判断に基づいて行ってください。
- 仲介手数料について

アットホームは物件情報の適正化に努めております。
内容に誤りがある場合にはこちらへご連絡ください。