大分県大分市大在北1丁目(大在駅)の賃貸:物件詳細
交通 所在地 |
駅徒歩 |
賃料 管理費等 |
敷金/保証金 礼金 |
間取り 面積 |
物件種目 築年月 |
|
JR日豊本線/大在 [バス利用可] バス 須賀 停歩2分
大分県大分市大在北1丁目
|
21分
|
6.4万円
5,000円
|
なし / なし
1ヶ月
|
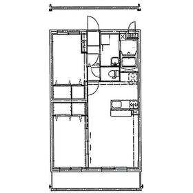
2LDK
54.85m²
|
賃貸マンション
2026年1月
|
最上階、南向き、二人入居可
|
|
間取図
|
外観
|
<
その他の画像
>
|
| 交通 | JR日豊本線 大在駅 徒歩21分 [バス利用可] バス 須賀 停歩2分 |
| 所在地 |
大分県大分市大在北1丁目
|
| 物件種目 |
賃貸マンション |
| 賃料 |
6.4万円 |
管理費等 |
5,000円 |
| 敷金 / 保証金 |
なし / なし |
礼金 |
1ヶ月 |
| 敷引 |
- |
保証金償却 |
- |
| その他一時金 |
- |
保険等 |
要 2年 18,000円 家財 |
| 維持費等 |
24hサポート:990円/月 |
| 間取り |
2LDK(洋 5.5・5.1 LDK 13.3) |
専有面積 |
54.85m² |
| 築年月 |
2026年1月
|
階建 / 階 |
5階建 / 5階 |
| 建物構造 |
RC |
総戸数 |
30戸 |
| 主要採光面 |
南 |
駐車場 |
有 4,400円/月 |
| バイク置き場 |
- |
駐輪場 |
有 |
| 建物名・部屋番号 |
Berryts大在 505 |
ペット |
-
|
| アピールポイント |
インターネット使用料無料☆ 防犯カメラ、オートロック付きで防犯面安心ですね♪ 室内設備充実しています☆ お気軽にお問い合わせください!(^^)! 皆様のお問い合わせ心よりお待ちしております(*^^*) |
| リフォーム履歴 |
- |
| リノベーション履歴 |
- |
| 備考 |
賃貸保証等:加入要(リジアスマイルサポート保証の場合 初回:月額総賃料60%・更新料:10,000円/年)
管理形態/管理員の勤務形態:-/巡回
管理人巡回
|
| エネルギー消費性能 |
- |
| 断熱性能 |
- |
| 目安光熱費 |
- |
| バス・トイレ |
バス・トイレ別、浴室乾燥機、追焚機能、シャワー付洗面化粧台、洗面所独立、洗面所、洗面台、シャワー、温水洗浄便座、トイレ |
| キッチン |
カウンターキッチン、ガスコンロ付 |
| セキュリティー |
モニター付オートロック、オートロック、モニター付インターホン、防犯カメラ |
| 収納 |
収納スペース、クローゼット、シューズボックス |
| 設備・サービス |
室内洗濯機置場、洗濯機置場、フローリング、プロパンガス、エアコン、複層ガラス |
| TV・通信 |
インターネット使用料無料 |
| その他 |
宅配BOX、バルコニー、駐輪場、エレベーター |
| 契約期間 |
2年 |
現況 |
未完成 |
| 条件等 |
- |
入居可能時期 |
相談 |
| 仲介手数料 |
1.1ヶ月 |
|
|
| 更新料 |
- |
物件番号 |
6988791869 |
| 情報公開日 |
2025年12月16日 |
次回更新予定日 |
2025年12月30日 |
| ケータイ用バーコード |
- スマートフォンでこの物件を見る
- スマートフォンからもこの物件をご覧になれます。
|
※「-」と表示されている項目については、情報提供会社にご確認ください。
ここから簡単にお問い合わせをすることができます。
(SSLでの暗号化での送信を希望されるお客さまは
こちら
よりお問い合わせください)
お問い合わせを行う前に
「個人情報の取り扱いについて」を必ずお読みください。
「個人情報の取り扱いについて」に同意いただいた場合は「上記にご同意の上 確認画面へ進む」のボタンをクリックしてください。
個人情報の取り扱いについて
皆さまが送付された個人情報はアットホーム(株)のサーバを経由し、お問い合わせ先の不動産会社にメールまたはFAXにて転送されるためアットホーム(株)にも保管されます。アットホーム(株)で保管された個人情報の取り扱いについては、【こちら】をご覧ください。
また、本画面でご記入いただいた個人情報は、お問い合わせ先の不動産会社でも保管します。 お問い合わせ先の不動産会社が保管する個人情報の取り扱いについては、不動産会社に直接お問い合わせください。
大分県知事免許(1)第3602号 |
|---|
- 交通:
- JR日豊本線/鶴崎駅 徒歩6分
- 大分県大分市西鶴崎1丁目12-22 ヴェルメゾン鶴崎203
- TEL:
- 097-511-4888
- FAX:
- 097-511-3610
- 所属団体:
- (公社)大分県宅地建物取引業協会会員(一社)九州不動産公正取引協議会加盟
取引態様:仲介  - 80508256
|
- スマートフォンで
この不動産会社を見る

|
- 提携サイト等より掲載されている物件情報につきましては、不動産会社詳細情報にリンクされていないものがあります。
- 物件に関するお問合せは、物件詳細ページの「情報提供会社」に表示されている不動産会社へ直接お願いいたします。
- 間取図は、現況を優先させていただきます。
- 映像は物件の一部を撮影したものです。物件の契約にあたっての最終判断はご自身の判断に基づいて行ってください。
- 仲介手数料について

アットホームは物件情報の適正化に努めております。
内容に誤りがある場合にはこちらへご連絡ください。