東京都江戸川区新堀1丁目(篠崎駅)の賃貸:物件詳細
交通 所在地 |
駅徒歩 |
賃料 管理費等 |
敷金/保証金 礼金 |
間取り 面積 |
物件種目 築年月 |
|
都営新宿線/篠崎 [バス利用可] バス 7分 新堀一丁目 停歩4分
東京都江戸川区新堀1丁目
|
22分
|
12.5万円
10,000円
|
1ヶ月 / なし
1ヶ月
|
2LDK
55.79m²
|
賃貸マンション
2006年4月(築19年11ヶ月)
|
分譲タイプ、高齢者相談
|
|
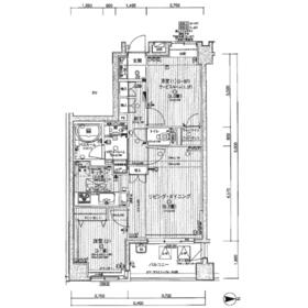
間取図
音や光に干渉されない睡眠環境。リビングと主寝室を離した間取りで確保
|
外観
数ある集合住宅で、見た目で「ビビッ」と来る物件とは相性が良いもの
|
<
その他の画像
>
|
| 交通 | 都営新宿線 篠崎駅 徒歩22分 [バス利用可] バス 7分 新堀一丁目 停歩4分 |
|---|
| その他の交通 | 都営新宿線 瑞江駅 徒歩23分 [バス利用可] バス 8分 京葉口 停歩4分 |
| 所在地 |
東京都江戸川区新堀1丁目
|
| 物件種目 |
賃貸マンション |
| 賃料 |
12.5万円 |
管理費等 |
10,000円 |
| 敷金 / 保証金 |
1ヶ月 / なし |
礼金 |
1ヶ月 |
| 敷引 |
- |
保証金償却 |
- |
| その他一時金 |
- |
保険等 |
要 2年 25,000円 ホープ少額短期保険 |
| 維持費等 |
- |
| 間取り |
2LDK(洋 6・5.1 LDK 12.6) |
専有面積 |
55.79m² |
| 築年月 |
2006年4月(築19年11ヶ月)
|
階建 / 階 |
8階建 / 2階 |
| 建物構造 |
RC |
総戸数 |
37戸 |
| 主要採光面 |
東 |
駐車場 |
空無 |
| バイク置き場 |
無 |
駐輪場 |
有 |
| 建物名・部屋番号 |
|
ペット |
-
|
| アピールポイント |
広々とした延床面積55.79㎡の居室空間、更に洋服をひとまとめに収納できるウォークインクロゼット有なので、分厚いコートなど冬物の収納に便利です。また留守番いらずの宅配BOX付で、その上匂いや煙をダイニングにまで充満させない独立型キッチン仕様だから、台所が散らかっていても人目にふれません。ちなみに一度に複数のおかず作りを同時進行できるコンロ3口以上付です。家族が帰宅を焦がれる2LDK。実際の空間をご自身で体感ください。 |
| リフォーム履歴 |
- |
| リノベーション履歴 |
- |
| 備考 |
賃貸保証等:加入要(賃貸保証サポート:初回保証料 賃料総額の50% 年間保証料10,800円)
管理形態/管理員の勤務形態:-/-
バルコニー:6.66m²
|
| エネルギー消費性能 |
- |
| 断熱性能 |
- |
| 目安光熱費 |
- |
| バス・トイレ |
バス・トイレ別、浴室暖房、浴室乾燥機、追焚機能、シャワー付洗面化粧台、洗面所独立、洗面所、温水洗浄便座、トイレ |
| キッチン |
独立型キッチン、3口以上コンロ、ガスコンロ付、グリル |
| セキュリティー |
モニター付オートロック、オートロック、モニター付インターホン、火災警報器(報知機) |
| 収納 |
全居室収納、ウォークインクローゼット、収納スペース、シューズボックス |
| 設備・サービス |
エアコン2台以上、室内洗濯機置場、洗濯機置場、給湯、全居室フローリング、都市ガス、エアコン、ダウンライト、間接照明、照明器具 |
| TV・通信 |
インターネット対応、CATVインターネット、ケーブルTV |
| その他 |
宅配BOX、バルコニー、駐輪場、エレベーター |
| 契約期間 |
2年 |
現況 |
空家 |
| 条件等 |
- |
入居可能時期 |
相談 |
| 仲介手数料 |
1.1ヶ月 |
|
|
| 更新料 |
新賃料 1ヶ月 |
物件番号 |
6988805361 |
| 情報公開日 |
2025年12月17日 |
次回更新予定日 |
2026年2月24日 |
| ケータイ用バーコード |
- スマートフォンでこの物件を見る
- スマートフォンからもこの物件をご覧になれます。
|
※「-」と表示されている項目については、情報提供会社にご確認ください。
| 周辺施設 |
セブンイレブン江戸川新堀2丁目店 |
| 距離 |
318m |
| 周辺施設 |
Hanamasa Plus+新堀店 |
| 距離 |
295m |
ここから簡単にお問い合わせをすることができます。
(SSLでの暗号化での送信を希望されるお客さまは
こちら
よりお問い合わせください)
お問い合わせを行う前に
「個人情報の取り扱いについて」を必ずお読みください。
「個人情報の取り扱いについて」に同意いただいた場合は「上記にご同意の上 確認画面へ進む」のボタンをクリックしてください。
個人情報の取り扱いについて
皆さまが送付された個人情報はアットホーム(株)のサーバを経由し、お問い合わせ先の不動産会社にメールまたはFAXにて転送されるためアットホーム(株)にも保管されます。アットホーム(株)で保管された個人情報の取り扱いについては、【こちら】をご覧ください。
また、本画面でご記入いただいた個人情報は、お問い合わせ先の不動産会社でも保管します。 お問い合わせ先の不動産会社が保管する個人情報の取り扱いについては、不動産会社に直接お問い合わせください。
東京都知事免許(1)第110436号 |
|---|
- 交通:
- JR山手線/渋谷駅 徒歩5分
- 東京都渋谷区桜丘町13-9 クリエート桜丘センチュリー21 204号室
- TEL:
- 03-6455-2497
- FAX:
- 03-6455-2498
- 所属団体:
- (公社)東京都宅地建物取引業協会会員(公社)首都圏不動産公正取引協議会加盟
取引態様:仲介  - 00277171
|
- スマートフォンで
この不動産会社を見る

|
- 提携サイト等より掲載されている物件情報につきましては、不動産会社詳細情報にリンクされていないものがあります。
- 物件に関するお問合せは、物件詳細ページの「情報提供会社」に表示されている不動産会社へ直接お願いいたします。
- 間取図は、現況を優先させていただきます。
- 映像は物件の一部を撮影したものです。物件の契約にあたっての最終判断はご自身の判断に基づいて行ってください。
- 仲介手数料について

アットホームは物件情報の適正化に努めております。
内容に誤りがある場合にはこちらへご連絡ください。