神奈川県藤沢市辻堂3丁目(辻堂駅)の賃貸:物件詳細
交通 所在地 |
駅徒歩 |
賃料 管理費等 |
敷金/保証金 礼金 |
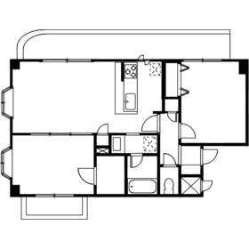
間取り 面積 |
物件種目 築年月 |
|
JR東海道本線/辻堂
神奈川県藤沢市辻堂3丁目
|
9分
|
13万円
8,000円
|
2ヶ月 / なし
1ヶ月
|
2LDK
56.34m²
|
賃貸マンション
2005年2月(築20年11ヶ月)
|
角部屋、最上階、二人入居可、24時間セキュリティー、閑静な住宅街、外観タイル張り
|
|
間取図
|
外観
|
その他の画像
|
| 交通 | JR東海道本線 辻堂駅 徒歩9分 |
| 所在地 |
神奈川県藤沢市辻堂3丁目
|
| 物件種目 |
賃貸マンション |
| 賃料 |
13万円 |
管理費等 |
8,000円 |
| 敷金 / 保証金 |
2ヶ月 / なし |
礼金 |
1ヶ月 |
| 敷引 |
- |
保証金償却 |
- |
| その他一時金 |
口座登録料:1,430円、鍵交換代等:37,500円~ |
保険等 |
要 2年 38,960円 火災 |
| 維持費等 |
口座引落料:407円/月 |
| 間取り |
2LDK(洋 6.2・6 LDK 11) |
専有面積 |
56.34m² |
| 築年月 |
2005年2月(築20年11ヶ月)
|
階建 / 階 |
3階建 / 3階 |
| 建物構造 |
RC |
総戸数 |
21戸 |
| 主要採光面 |
東 |
駐車場 |
有 13,200円/月 |
| バイク置き場 |
無 |
駐輪場 |
有 無料 |
| 建物名・部屋番号 |
パルテ湘南 301 |
ペット |
-
|
| アピールポイント |
平成30年8月外装リニューアル済。浴室乾燥機設置してます。共用部にはエレベーター・宅配ボックス有。近くに辻堂図書館があります。北口にはテラスモールがあり、買い物にとても便利です。バイク置場は新規受付しておりませんので、置けません。 |
| リフォーム履歴 |
■外装:2018年8月 外壁 ■共用部の大規模修繕工事:2018年8月 外装タイル修繕 ※実施年月は最も古い履歴を表示 |
| リノベーション履歴 |
- |
| 備考 |
賃貸保証等:加入要(保証会社:全保連 保証料:月額賃料等合計金額の50%相当額)
管理形態/管理員の勤務形態:-/巡回
非喫煙者限定、管理人巡回
辻堂駅南側、閑静な住宅街に建つ、環境の良い物件です。是非一度ご覧ください。
|
| エネルギー消費性能 |
- |
| 断熱性能 |
- |
| 目安光熱費 |
- |
| バス・トイレ |
バス・トイレ別、浴室暖房、浴室乾燥機、追焚機能、洗面所独立、洗面所、洗面台、シャワー、温水洗浄便座、トイレ |
| キッチン |
カウンターキッチン、システムキッチン、3口以上コンロ、ガスコンロ付、グリル |
| セキュリティー |
オートロック、モニター付インターホン、ディンプルキー、ダブルロックドア、防犯カメラ、火災警報器(報知機) |
| 収納 |
全居室収納、ウォークインクローゼット、収納スペース、クローゼット、シューズボックス |
| 設備・サービス |
室内洗濯機置場、洗濯機置場、給湯、全居室フローリング、フローリング、都市ガス、エアコン、暖房、冷房 |
| TV・通信 |
光ファイバー、CS、BS端子 |
| その他 |
宅配BOX、二面バルコニー、バルコニー、駐輪場、エレベーター |
| 契約期間 |
2年 |
現況 |
空家 |
| 条件等 |
定期借家 |
入居可能時期 |
相談 |
| 仲介手数料 |
1ヶ月 |
|
|
| 更新料 |
新賃料 1ヶ月 |
物件番号 |
6988841796 |
| 情報公開日 |
2025年12月20日 |
次回更新予定日 |
2026年1月3日 |
| ケータイ用バーコード |
- スマートフォンでこの物件を見る
- スマートフォンからもこの物件をご覧になれます。
|
※「-」と表示されている項目については、情報提供会社にご確認ください。
ここから簡単にお問い合わせをすることができます。
(SSLでの暗号化での送信を希望されるお客さまは
こちら
よりお問い合わせください)
お問い合わせを行う前に
「個人情報の取り扱いについて」を必ずお読みください。
「個人情報の取り扱いについて」に同意いただいた場合は「上記にご同意の上 確認画面へ進む」のボタンをクリックしてください。
個人情報の取り扱いについて
皆さまが送付された個人情報はアットホーム(株)のサーバを経由し、お問い合わせ先の不動産会社にメールまたはFAXにて転送されるためアットホーム(株)にも保管されます。アットホーム(株)で保管された個人情報の取り扱いについては、【こちら】をご覧ください。
また、本画面でご記入いただいた個人情報は、お問い合わせ先の不動産会社でも保管します。 お問い合わせ先の不動産会社が保管する個人情報の取り扱いについては、不動産会社に直接お問い合わせください。
東京都知事免許(3)第94618号 |
|---|
- 交通:
- JR山手線/新宿駅 徒歩3分
- 東京都新宿区西新宿1丁目6-1 新宿エルタワー16階
- TEL:
- 03-6894-1080
- FAX:
- 03-6894-1081
- 所属団体:
- (公社)東京都宅地建物取引業協会会員(公社)首都圏不動産公正取引協議会加盟
取引態様:仲介  - 00353483
|
- スマートフォンで
この不動産会社を見る

|
- 提携サイト等より掲載されている物件情報につきましては、不動産会社詳細情報にリンクされていないものがあります。
- 物件に関するお問合せは、物件詳細ページの「情報提供会社」に表示されている不動産会社へ直接お願いいたします。
- 間取図は、現況を優先させていただきます。
- 映像は物件の一部を撮影したものです。物件の契約にあたっての最終判断はご自身の判断に基づいて行ってください。
- 仲介手数料について

アットホームは物件情報の適正化に努めております。
内容に誤りがある場合にはこちらへご連絡ください。