東京都武蔵野市境南町4丁目(武蔵境駅)の賃貸:物件詳細
交通 所在地 |
駅徒歩 |
賃料 管理費等 |
敷金/保証金 礼金 |
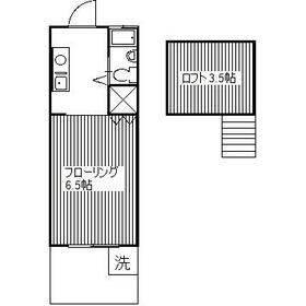
間取り 面積 |
物件種目 築年月 |
|
JR中央線/武蔵境
東京都武蔵野市境南町4丁目
|
9分
|
5万円
なし
|
1ヶ月 / なし
なし
|
1K
18.22m²
|
賃貸アパート
1991年3月(築35年)
|
角部屋、南向き、隣接建物距離2m以上
|
|
間取図
|
|
その他の画像
|
| 交通 | JR中央線 武蔵境駅 徒歩9分 |
|---|
| その他の交通 | 西武多摩川線 武蔵境駅 徒歩9分 |
| 所在地 |
東京都武蔵野市境南町4丁目
|
| 物件種目 |
賃貸アパート |
| 賃料 |
5万円 |
管理費等 |
なし |
| 敷金 / 保証金 |
1ヶ月 / なし |
礼金 |
なし |
| 敷引 |
- |
保証金償却 |
- |
| その他一時金 |
鍵交換代等:19,800円~ |
保険等 |
要 2年 18,000円 ジャパン少額短期 |
| 維持費等 |
- |
| 間取り |
1K(洋 6.5 K 3) |
専有面積 |
18.22m² |
| 築年月 |
1991年3月(築35年)
|
階建 / 階 |
2階建 / 1階 |
| 建物構造 |
木造 |
総戸数 |
- |
| 主要採光面 |
南 |
駐車場 |
空無 |
| バイク置き場 |
- |
駐輪場 |
有 無料 |
| 建物名・部屋番号 |
ハイツ甲陽 101 |
ペット |
-
|
| リフォーム履歴 |
- |
| リノベーション履歴 |
- |
| 備考 |
賃貸保証等:加入要(初回保証料は月額賃料等の50%(最低保証料は20,000円です)継続保証料は月払い1,000円、引落手数料440円です。)
管理形態/管理員の勤務形態:-/-
退去時クリーニング費用38,000円+税。くらしーど24→16,500円(2年毎)
|
| エネルギー消費性能 |
- |
| 断熱性能 |
- |
| 目安光熱費 |
- |
| バス・トイレ |
洗面台、バス・トイレ同室、シャワー、トイレ |
| キッチン |
IHクッキングヒーター |
| セキュリティー |
火災警報器(報知機) |
| 収納 |
全居室収納、収納スペース、クローゼット、シューズボックス |
| 設備・サービス |
洗濯機置場、ロフト、給湯、フローリング、都市ガス、エアコン |
| TV・通信 |
CATVインターネット、ケーブルTV |
| その他 |
駐輪場 |
| 契約期間 |
2年 |
現況 |
空家 |
| 条件等 |
- |
入居可能時期 |
相談 |
| 更新料 |
新賃料 1ヶ月 |
物件番号 |
6989003344 |
| 情報公開日 |
2026年2月15日 |
次回更新予定日 |
2026年3月1日 |
| ケータイ用バーコード |
- スマートフォンでこの物件を見る
- スマートフォンからもこの物件をご覧になれます。
|
※「-」と表示されている項目については、情報提供会社にご確認ください。
| 周辺施設 |
まいばすけっと武蔵境駅南店 |
| 距離 |
704m |
| 周辺施設 |
ファミリーマート武蔵境駅南店 |
| 距離 |
533m |
| 周辺施設 |
クリエイトエス・ディーJR武蔵境西店 |
| 距離 |
372m |
| 周辺施設 |
私立日本獣医生命科学大学 |
| 距離 |
1052m |
ここから簡単にお問い合わせをすることができます。
(SSLでの暗号化での送信を希望されるお客さまは
こちら
よりお問い合わせください)
お問い合わせを行う前に
「個人情報の取り扱いについて」を必ずお読みください。
「個人情報の取り扱いについて」に同意いただいた場合は「上記にご同意の上 確認画面へ進む」のボタンをクリックしてください。
個人情報の取り扱いについて
皆さまが送付された個人情報はアットホーム(株)のサーバを経由し、お問い合わせ先の不動産会社にメールまたはFAXにて転送されるためアットホーム(株)にも保管されます。アットホーム(株)で保管された個人情報の取り扱いについては、【こちら】をご覧ください。
また、本画面でご記入いただいた個人情報は、お問い合わせ先の不動産会社でも保管します。 お問い合わせ先の不動産会社が保管する個人情報の取り扱いについては、不動産会社に直接お問い合わせください。
東京都知事免許(6)第77583号 |
|---|
- 交通:
- JR中央線/武蔵境駅 徒歩1分
- 東京都武蔵野市境南町2丁目7-20 ダイアパレス武蔵境Ⅱ802号
- TEL:
- 0422-30-3505
- FAX:
- 0422-30-3506
- 所属団体:
- (公社)東京都宅地建物取引業協会会員(公社)首都圏不動産公正取引協議会加盟
取引態様:仲介  - 00340456
|
- スマートフォンで
この不動産会社を見る

|
- 提携サイト等より掲載されている物件情報につきましては、不動産会社詳細情報にリンクされていないものがあります。
- 物件に関するお問合せは、物件詳細ページの「情報提供会社」に表示されている不動産会社へ直接お願いいたします。
- 間取図は、現況を優先させていただきます。
- 映像は物件の一部を撮影したものです。物件の契約にあたっての最終判断はご自身の判断に基づいて行ってください。
- 仲介手数料について

アットホームは物件情報の適正化に努めております。
内容に誤りがある場合にはこちらへご連絡ください。