静岡県浜松市中央区半田山4丁目(積志駅)の賃貸:物件詳細
交通 所在地 |
駅徒歩 |
賃料 管理費等 |
敷金/保証金 礼金 |
間取り 面積 |
物件種目 築年月 |
|
遠州鉄道/積志 [バス利用可] バス 半田山 停歩2分
静岡県浜松市中央区半田山4丁目
|
26分
|
9万円
1,000円
|
3ヶ月 / なし
なし
|
4LDK
82.21m²
|
賃貸一戸建て
2001年10月(築24年6ヶ月)
|
駐車場2台分、南向き、閑静な住宅街
|
|
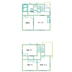
間取図
|
|
その他の画像
|
| 交通 | 遠州鉄道 積志駅 徒歩26分 [バス利用可] バス 半田山 停歩2分 |
| 所在地 |
静岡県浜松市中央区半田山4丁目
|
| 物件種目 |
賃貸一戸建て |
| 賃料 |
9万円 |
管理費等 |
1,000円 |
| 敷金 / 保証金 |
3ヶ月 / なし |
礼金 |
なし |
| 敷引 |
- |
保証金償却 |
- |
| その他一時金 |
なし |
保険等 |
要 2年 20,000円 あいおいニッセイ同和損保 |
| 維持費等 |
- |
| 間取り |
4LDK(和 6・6 洋 6・6.9 LDK 9) |
専有面積 |
82.21m² |
| 築年月 |
2001年10月(築24年6ヶ月)
|
階建 / 階 |
2階建 |
| 建物構造 |
木造 |
総戸数 |
- |
| 主要採光面 |
南 |
駐車場 |
有 無料 |
| バイク置き場 |
- |
駐輪場 |
- |
| 建物名・部屋番号 |
豊借家 |
ペット |
-
|
| リフォーム履歴 |
- |
| リノベーション履歴 |
- |
| 備考 |
賃貸保証等:利用可(契約時:賃料×50% 更新時(2年毎):賃料×30%)
管理形態/管理員の勤務形態:-/不在
バルコニー:2.47m²
ケーブルテレビ加入済み
豊借家Ⅱ
|
| エネルギー消費性能 |
- |
| 断熱性能 |
- |
| 目安光熱費 |
- |
| バス・トイレ |
バス・トイレ別、追焚機能、洗面所独立、洗面所、洗面台、シャワー、トイレ |
| キッチン |
ガスコンロ可 |
| セキュリティー |
- |
| 収納 |
全居室収納、収納スペース、クローゼット、シューズボックス |
| 設備・サービス |
室内洗濯機置場、洗濯機置場、給湯、フローリング、プロパンガス |
| TV・通信 |
ケーブルTV |
| その他 |
庭 |
| 契約期間 |
1年 |
現況 |
空家 |
| 条件等 |
- |
入居可能時期 |
相談 |
| 更新料 |
なし |
物件番号 |
6989051596 |
| 情報公開日 |
2026年1月13日 |
次回更新予定日 |
2026年3月13日 |
| ケータイ用バーコード |
- スマートフォンでこの物件を見る
- スマートフォンからもこの物件をご覧になれます。
|
※「-」と表示されている項目については、情報提供会社にご確認ください。
| 周辺施設 |
セブンイレブン浜松半田町店 |
| 距離 |
824m |
| 周辺施設 |
ほっともっと浜松半田町店 |
| 距離 |
176m |
| 周辺施設 |
クリエイトエス・ディー浜松半田山店 |
| 距離 |
445m |
| 周辺施設 |
国立大学法人浜松医科大学医学部附属病院 |
| 距離 |
743m |
ここから簡単にお問い合わせをすることができます。
(SSLでの暗号化での送信を希望されるお客さまは
こちら
よりお問い合わせください)
お問い合わせを行う前に
「個人情報の取り扱いについて」を必ずお読みください。
「個人情報の取り扱いについて」に同意いただいた場合は「上記にご同意の上 確認画面へ進む」のボタンをクリックしてください。
個人情報の取り扱いについて
皆さまが送付された個人情報はアットホーム(株)のサーバを経由し、お問い合わせ先の不動産会社にメールまたはFAXにて転送されるためアットホーム(株)にも保管されます。アットホーム(株)で保管された個人情報の取り扱いについては、【こちら】をご覧ください。
また、本画面でご記入いただいた個人情報は、お問い合わせ先の不動産会社でも保管します。 お問い合わせ先の不動産会社が保管する個人情報の取り扱いについては、不動産会社に直接お問い合わせください。
静岡県知事免許(4)第12831号 |
|---|
- 交通:
- 東海道本線/浜松駅 【バス】 遠鉄バス停 停歩3分
- 静岡県浜松市中央区半田町1118-3 ソレイユ1F
- TEL:
- 053-431-5188
- FAX:
- 053-431-5178
- 所属団体:
- (公社)全日本不動産協会会員東海不動産公正取引協議会加盟
取引態様:仲介  - 40302334
|
- スマートフォンで
この不動産会社を見る

|
- 提携サイト等より掲載されている物件情報につきましては、不動産会社詳細情報にリンクされていないものがあります。
- 物件に関するお問合せは、物件詳細ページの「情報提供会社」に表示されている不動産会社へ直接お願いいたします。
- 間取図は、現況を優先させていただきます。
- 映像は物件の一部を撮影したものです。物件の契約にあたっての最終判断はご自身の判断に基づいて行ってください。
- 仲介手数料について

アットホームは物件情報の適正化に努めております。
内容に誤りがある場合にはこちらへご連絡ください。