埼玉県さいたま市浦和区上木崎1丁目(与野駅)の賃貸:物件詳細
交通 所在地 |
駅徒歩 |
賃料 管理費等 |
敷金/保証金 礼金 |
間取り 面積 |
物件種目 築年月 |
|
JR京浜東北線/与野
埼玉県さいたま市浦和区上木崎1丁目
|
1分
|
16万円
なし
|
1ヶ月 / なし
1ヶ月
|
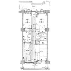
3LDK
66.15m²
|
賃貸マンション
1996年12月(築29年3ヶ月)
|
分譲タイプ
|
|
間取図
|
外観
|
その他の画像
|
| 交通 | JR京浜東北線 与野駅 徒歩1分 |
|---|
| その他の交通 | JR埼京線 北与野駅 徒歩15分 |
| 所在地 |
埼玉県さいたま市浦和区上木崎1丁目
|
| 物件種目 |
賃貸マンション |
| 賃料 |
16万円 |
管理費等 |
なし |
| 敷金 / 保証金 |
1ヶ月 / なし |
礼金 |
1ヶ月 |
| 敷引 |
- |
保証金償却 |
- |
| その他一時金 |
- |
保険等 |
要 |
| 維持費等 |
- |
| 間取り |
3LDK |
専有面積 |
66.15m² |
| 築年月 |
1996年12月(築29年3ヶ月)
|
階建 / 階 |
地上14階地下1階建 / 6階 |
| 建物構造 |
RC |
総戸数 |
- |
| 主要採光面 |
南東 |
駐車場 |
- |
| バイク置き場 |
- |
駐輪場 |
- |
| 建物名・部屋番号 |
グランディオ北街区 |
ペット |
-
|
| アピールポイント |
京浜東北線「与野駅」徒歩1分、駅前ロータリー広場に面しています。
スーパー、コンビニ、金融機関等の施設が充実しています。 |
| リフォーム履歴 |
■内装:2026年3月 全室クロス張替え、床(フローリング等) ガスコンロ、レンジフード、温水洗浄便座、エアコン、キッチン UB水栓交換 ※実施年月は最も古い履歴を表示 |
| リノベーション履歴 |
- |
| 備考 |
管理形態/管理員の勤務形態:-/日勤
バルコニー:8.44m²
管理人日勤
|
| エネルギー消費性能 |
- |
| 断熱性能 |
- |
| 目安光熱費 |
- |
| バス・トイレ |
バス・トイレ別、オートバス、洗面所独立、シャワー、温水洗浄便座 |
| キッチン |
3口以上コンロ |
| セキュリティー |
モニター付オートロック |
| 収納 |
全居室収納、シューズボックス |
| 設備・サービス |
室内洗濯機置場、全居室フローリング、エアコン |
| TV・通信 |
- |
| その他 |
エレベーター2基以上、バルコニー |
| 契約期間 |
2年 |
現況 |
空家 |
| 条件等 |
- |
入居可能時期 |
2026年3月中旬予定 |
| 仲介手数料 |
1ヶ月 |
|
|
| 更新料 |
新賃料 1ヶ月 |
物件番号 |
6989067785 |
| 情報公開日 |
2026年1月15日 |
次回更新予定日 |
2026年2月21日 |
| ケータイ用バーコード |
- スマートフォンでこの物件を見る
- スマートフォンからもこの物件をご覧になれます。
|
※「-」と表示されている項目については、情報提供会社にご確認ください。
| 周辺施設 |
ファミリーマート与野駅前店 |
| 距離 |
341m |
| 周辺施設 |
医療法人社団望星会望星病院 |
| 距離 |
1025m |
ここから簡単にお問い合わせをすることができます。
(SSLでの暗号化での送信を希望されるお客さまは
こちら
よりお問い合わせください)
お問い合わせを行う前に
「個人情報の取り扱いについて」を必ずお読みください。
「個人情報の取り扱いについて」に同意いただいた場合は「上記にご同意の上 確認画面へ進む」のボタンをクリックしてください。
個人情報の取り扱いについて
皆さまが送付された個人情報はアットホーム(株)のサーバを経由し、お問い合わせ先の不動産会社にメールまたはFAXにて転送されるためアットホーム(株)にも保管されます。アットホーム(株)で保管された個人情報の取り扱いについては、【こちら】をご覧ください。
また、本画面でご記入いただいた個人情報は、お問い合わせ先の不動産会社でも保管します。 お問い合わせ先の不動産会社が保管する個人情報の取り扱いについては、不動産会社に直接お問い合わせください。
埼玉県知事免許(5)第20156号 |
|---|
- 交通:
- JR京浜東北線/与野駅 徒歩2分
- 埼玉県さいたま市浦和区上木崎1丁目2-19 Studio40 2F
- TEL:
- 048-814-1900
- FAX:
- 048-825-2111
- 所属団体:
- (公社)全日本不動産協会会員(公社)首都圏不動産公正取引協議会加盟
取引態様:仲介  - 00223668
|
- スマートフォンで
この不動産会社を見る

|
- 提携サイト等より掲載されている物件情報につきましては、不動産会社詳細情報にリンクされていないものがあります。
- 物件に関するお問合せは、物件詳細ページの「情報提供会社」に表示されている不動産会社へ直接お願いいたします。
- 間取図は、現況を優先させていただきます。
- 映像は物件の一部を撮影したものです。物件の契約にあたっての最終判断はご自身の判断に基づいて行ってください。
- 仲介手数料について

アットホームは物件情報の適正化に努めております。
内容に誤りがある場合にはこちらへご連絡ください。