不動産 賃貸 マンション等の住宅情報:埼玉住まい情報


東京都江東区亀戸2丁目(亀戸駅)の賃貸:物件詳細

  • 物件詳細
  • 情報の見方
  • 印刷用画面
交通
所在地
駅徒歩 賃料
管理費等
敷金/保証金
礼金
間取り
面積
物件種目
築年月

JR総武線/亀戸

東京都江東区亀戸2丁目

9分

16.8万円

なし

2ヶ月 / なし

1ヶ月

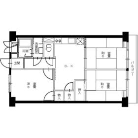
3DK

54.39m²

賃貸マンション

1973年10月(築52年5ヶ月)

おすすめPOINT分譲タイプ、角部屋、最上階、2面採光

おすすめコメント

リバーサイドでリバービュー&スカイツリービュー

間取図

間取図

外観

外観

<
その他の画像
  • 室内
  • 室内
  • 室内
  • 室内
  • 室内
  • キッチン
  • バス/シャワー
  • バス/シャワー
  • 洗面
  • トイレ
  • キッチン
  • キッチン
  • 眺望
>
    • とりあえず保存
    • お問い合わせ
    交通

    JR総武線 亀戸駅 徒歩9分

    その他の交通

    JR総武線 錦糸町駅 徒歩9分

    東京メトロ半蔵門線 錦糸町駅 徒歩9分

    所在地 東京都江東区亀戸2丁目
    物件種目 賃貸マンション
    賃料 16.8万円 管理費等 なし
    敷金 / 保証金 2ヶ月 / なし 礼金 1ヶ月
    敷引 1ヶ月 保証金償却
    その他一時金 なし 保険等 要 1年 10,750円 三井住友海上火災
    維持費等
    間取り 3DK(和 6・6 洋 6 DK 6) 専有面積 54.39m²
    築年月 1973年10月(築52年5ヶ月) 階建 / 階 11階建 / 4階
    建物構造 HPC 総戸数 180戸
    主要採光面 西 駐車場
    バイク置き場 駐輪場
    建物名・部屋番号 秀和亀戸天神橋レジデンス 417 ペット
    アピールポイント リバーサイドでリバービュー&スカイツリービュー
    リフォーム履歴 ■水回り:2025年12月
    キッチン、浴室、トイレ、洗面所、給湯器
    ■内装:2025年12月
    全室クロス張替え、壁・天井(クロス・塗装等)
    ※実施年月は最も古い履歴を表示
    リノベーション履歴
    備考
    賃貸保証等:加入要(株式会社プレミアライフ)
    管理形態/管理員の勤務形態:-/日勤
    バルコニー:5.4m²
    非喫煙者限定、管理人日勤
    リバーサイドでリバービュー&スカイツリービュー
    エネルギー消費性能
    断熱性能
    目安光熱費
    バス・トイレ バス・トイレ別、オートバス、追焚機能、洗面所独立、洗面所、洗面台、温水洗浄便座、トイレ
    キッチン システムキッチン、2口コンロ、ガスコンロ付
    セキュリティー モニター付インターホン、ディンプルキー、ダブルロックドア、防犯カメラ
    収納 収納スペース、シューズボックス
    設備・サービス 室内洗濯機置場、給湯、エアコン、照明器具
    TV・通信
    その他 エレベーター2基以上、バルコニー、エレベーター
    契約期間 2年 現況 空家
    条件等 入居可能時期 即時
    更新料 新賃料 1ヶ月 物件番号 6989077271
    情報公開日 2026年1月15日 次回更新予定日 2026年2月12日
    ケータイ用バーコード

    QRコード

    スマートフォンでこの物件を見る
    スマートフォンからもこの物件をご覧になれます。
    ※「-」と表示されている項目については、情報提供会社にご確認ください。

    この物件の周辺情報

    周辺施設 カスミBLANDEオリナス錦糸町店
    距離 434m
    周辺施設 業務スーパー亀戸店
    距離 489m
    周辺施設 セブンイレブン墨田太平4丁目店
    距離 438m
    周辺施設 江東区立第三亀戸中学校
    距離 714m
    周辺施設 江東区立第一亀戸小学校
    距離 469m
    周辺施設 江東区立香取小学校
    距離 876m
    周辺施設 マミーズエンジェル亀戸保育園
    距離 323m
    周辺施設 亀戸天神社
    距離 361m

    クイックお問い合わせ

    ここから簡単にお問い合わせをすることができます。
    (SSLでの暗号化での送信を希望されるお客さまは こちら よりお問い合わせください)

    お問い合わせ内容(必須)
    お名前(必須) 姓  名 
    メールアドレス(必須)
    ※携帯電話のメールアドレスをご入力される方はこちらをご確認ください
    電話番号(必須)
    - -

    ※入力いただいた電話番号へSMSまたは音声でパスワードをご連絡します。

    携帯電話の番号をご入力の方へ

    携帯電話の番号をご入力の方へ
    確認画面にて送信ボタンをクリックするとSMSが携帯電話に届きます。
    そのSMSに記載のパスワード(認証番号)を入力し、お問い合わせを完了してください。
    尚、SMSの送信者番号は 0005 202 760 となります。
    これはアットホームの固定番号です。

    備考欄 希望条件、物件案内希望日、質問などがございましたらご記入ください。
    お問い合わせを行う前に「個人情報の取り扱いについて」を必ずお読みください。
    「個人情報の取り扱いについて」に同意いただいた場合は「上記にご同意の上 確認画面へ進む」のボタンをクリックしてください。

    個人情報の取り扱いについて

    皆さまが送付された個人情報はアットホーム(株)のサーバを経由し、お問い合わせ先の不動産会社にメールまたはFAXにて転送されるためアットホーム(株)にも保管されます。アットホーム(株)で保管された個人情報の取り扱いについては、【こちら】をご覧ください。
    また、本画面でご記入いただいた個人情報は、お問い合わせ先の不動産会社でも保管します。 お問い合わせ先の不動産会社が保管する個人情報の取り扱いについては、不動産会社に直接お問い合わせください。

    情報提供会社

    情報提供会社

    レジデンス・ビルディングマネジメント(株) 仲介営業部

    東京都知事免許(7)第72519号

    交通:
    東京メトロ東西線/茅場町駅 徒歩5分
    東京都中央区新川1丁目27-7 
    TEL:
    03-3297-3837
    FAX:
    03-3297-3654
    所属団体:
    (一社)不動産流通経営協会会員
    (公社)首都圏不動産公正取引協議会加盟

    取引態様:仲介

    • 会社情報
    • 00840188
    スマートフォンで
    この不動産会社を見る
    QRコード
    • とりあえず保存
    • お問い合わせ
    • 提携サイト等より掲載されている物件情報につきましては、不動産会社詳細情報にリンクされていないものがあります。
    • 物件に関するお問合せは、物件詳細ページの「情報提供会社」に表示されている不動産会社へ直接お願いいたします。
    • 間取図は、現況を優先させていただきます。
    • 映像は物件の一部を撮影したものです。物件の契約にあたっての最終判断はご自身の判断に基づいて行ってください。
    • 仲介手数料について仲介手数料

    アットホームは物件情報の適正化に努めております。 内容に誤りがある場合にはこちらへご連絡ください。

    【埼玉住まい情報】では、日本全国の物件から賃貸マンションや賃貸アパート・賃貸一戸建て等の賃貸住宅情報、新築マンション・分譲マンションや中古マンション等の売買マンション情報、新築一戸建てや中古一戸建てなどの戸建住宅、 土地など、総合的な不動産住宅情報検索サービスを提供致します。
    【埼玉住まい情報】から、選りすぐりの不動産物件を探してみましょう。

    【免責事項】
    このコーナーの運営はアットホーム株式会社(https://www.athome.co.jp/)が行っています。
    このコーナーに掲載している物件情報は、「アットホーム不動産情報ネットワーク」に加盟する不動産会社等(情報提供元)から提供されています。信頼性の高い情報提供が行えるよう、最大限の努力をしておりますが、その内容を保証するものではありません。 利用者のみなさまと各情報提供元との取引に起因する損害および情報が掲載されたことに起因する損害等については、株式会社イーシティ埼玉、およびアットホームは一切責任を負いません。
    各物件情報の内容や画像等はすべて現況を優先させていただきます。
    お取引等(お取引の準備、資金調達等を含みます)の際には、内容や契約条件等について、各情報提供元より十分な説明を受け、ご自身でご確認の上、判断してください。
    このコーナーへの物件情報のご掲載、その他不動産業務ソリューション等についての不動産会社様のお問合せはこちらからお願いいたします。

    物件画像: