京都府京都市左京区聖護院中町(神宮丸太町駅)の賃貸:物件詳細
交通 所在地 |
駅徒歩 |
賃料 管理費等 |
敷金/保証金 礼金 |
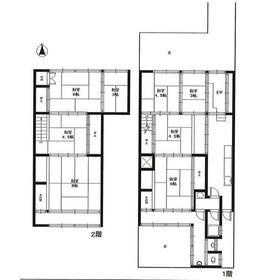
間取り 面積 |
物件種目 築年月 |
|
京阪鴨東線/神宮丸太町
京都府京都市左京区聖護院中町
|
13分
|
11万円
-
|
1ヶ月 / なし
1ヶ月
|
8K
137.18m²
|
賃貸一戸建て
1900年1月(築126年1ヶ月)
|
ペット相談、南向き、事務所使用可
|
|
間取図
|
外観
|
その他の画像
|
| 交通 | 京阪鴨東線 神宮丸太町駅 徒歩13分 |
| 所在地 |
京都府京都市左京区聖護院中町
|
| 物件種目 |
賃貸一戸建て |
| 賃料 |
11万円 |
管理費等 |
- |
| 敷金 / 保証金 |
1ヶ月 / なし |
礼金 |
1ヶ月 |
| 敷引 |
- |
保証金償却 |
- |
| その他一時金 |
- |
保険等 |
要 2年 28,000円 火災 |
| 維持費等 |
- |
| 間取り |
8K(和 8・6・6・4.5・4.5・4.5・3・3) |
専有面積 |
137.18m² |
| 築年月 |
1900年1月(築126年1ヶ月)
|
階建 / 階 |
2階建 |
| 建物構造 |
木造 |
総戸数 |
1戸 |
| 主要採光面 |
南 |
駐車場 |
- |
| バイク置き場 |
- |
駐輪場 |
- |
| 建物名・部屋番号 |
聖護院中町京町家 |
ペット |
小型犬可・ 猫可・ 犬中型犬まで。合計2匹迄相談可 |
| リフォーム履歴 |
- |
| リノベーション履歴 |
- |
| 備考 |
賃貸保証等:加入要(全保連:初回のみプラン賃料総額120%、毎年プラン賃料総額50%、毎年1.3万要)
管理形態/管理員の勤務形態:-/-
ペット飼育の場合、敷金・礼金それぞれ賃料1か月分アップ
定期賃貸借契約3年、築不詳
|
| エネルギー消費性能 |
- |
| 断熱性能 |
- |
| 目安光熱費 |
- |
| バス・トイレ |
バス・トイレ別 |
| キッチン |
ガスコンロ可 |
| セキュリティー |
- |
| 収納 |
収納スペース |
| 設備・サービス |
洗濯機置場 |
| TV・通信 |
- |
| その他 |
- |
| 契約期間 |
3年 |
現況 |
空家 |
| 条件等 |
定期借家 |
入居可能時期 |
指定有り2026年2月16日 |
| 更新料 |
- |
物件番号 |
6989100178 |
| 情報公開日 |
2026年1月16日 |
次回更新予定日 |
2026年1月30日 |
| ケータイ用バーコード |
- スマートフォンでこの物件を見る
- スマートフォンからもこの物件をご覧になれます。
|
※「-」と表示されている項目については、情報提供会社にご確認ください。
| 周辺施設 |
セブンイレブン京都吉田近衛町店 |
| 距離 |
503m |
ここから簡単にお問い合わせをすることができます。
(SSLでの暗号化での送信を希望されるお客さまは
こちら
よりお問い合わせください)
お問い合わせを行う前に
「個人情報の取り扱いについて」を必ずお読みください。
「個人情報の取り扱いについて」に同意いただいた場合は「上記にご同意の上 確認画面へ進む」のボタンをクリックしてください。
個人情報の取り扱いについて
皆さまが送付された個人情報はアットホーム(株)のサーバを経由し、お問い合わせ先の不動産会社にメールまたはFAXにて転送されるためアットホーム(株)にも保管されます。アットホーム(株)で保管された個人情報の取り扱いについては、【こちら】をご覧ください。
また、本画面でご記入いただいた個人情報は、お問い合わせ先の不動産会社でも保管します。 お問い合わせ先の不動産会社が保管する個人情報の取り扱いについては、不動産会社に直接お問い合わせください。
京都府知事免許(4)第12950号 |
|---|
- 交通:
- 叡山電鉄叡山本線/岩倉駅 徒歩8分 【バス】 京都バス「長谷別れ」 停歩1分
- 京都府京都市左京区岩倉花園町250-4
- TEL:
- 075-703-7177
- FAX:
- 075-722-9246
- 所属団体:
- (公社)京都府宅地建物取引業協会会員(一社)全国賃貸不動産管理業協会会員(公社)近畿地区不動産公正取引協議会加盟
取引態様:仲介  - 50021850
|
- スマートフォンで
この不動産会社を見る

|
- 提携サイト等より掲載されている物件情報につきましては、不動産会社詳細情報にリンクされていないものがあります。
- 物件に関するお問合せは、物件詳細ページの「情報提供会社」に表示されている不動産会社へ直接お願いいたします。
- 間取図は、現況を優先させていただきます。
- 映像は物件の一部を撮影したものです。物件の契約にあたっての最終判断はご自身の判断に基づいて行ってください。
- 仲介手数料について

アットホームは物件情報の適正化に努めております。
内容に誤りがある場合にはこちらへご連絡ください。