埼玉県川口市東領家4丁目(谷在家駅)の賃貸:物件詳細
交通 所在地 |
駅徒歩 |
賃料 管理費等 |
敷金/保証金 礼金 |
間取り 面積 |
物件種目 築年月 |
|
日暮里舎人ライナー/谷在家
埼玉県川口市東領家4丁目
|
23分
|
15万円
なし
|
1ヶ月 / なし
1ヶ月
|
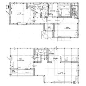
3LDK
66.24m²
|
賃貸一戸建て
2024年7月(築1年7ヶ月)
|
ペット相談、振分、二人入居可、事務所使用可、SOHO向き
|
|
間取図
|
外観
|
<
その他の画像
>
|
| 交通 | 日暮里舎人ライナー 谷在家駅 徒歩23分 |
|---|
| その他の交通 | JR京浜東北線 赤羽駅 【バス】 33分 加賀団地 停歩11分 |
| 所在地 |
埼玉県川口市東領家4丁目
|
| 物件種目 |
賃貸一戸建て |
| 賃料 |
15万円 |
管理費等 |
なし |
| 敷金 / 保証金 |
1ヶ月 / なし |
礼金 |
1ヶ月 |
| 敷引 |
- |
保証金償却 |
- |
| その他一時金 |
ホームマイスター24:16,500円、鍵交換代等:27,500円~ |
保険等 |
要 2年 20,000円 |
| 維持費等 |
スマートキー:1,650円/月 |
| 間取り |
3LDK(洋 5.2・5・4.8 LDK 13.7) |
専有面積 |
66.24m² |
| 築年月 |
2024年7月(築1年7ヶ月)
|
階建 / 階 |
2階建 |
| 建物構造 |
木造 |
総戸数 |
3戸 |
| 主要採光面 |
南西 |
駐車場 |
有 無料 |
| バイク置き場 |
有 無料 |
駐輪場 |
有 無料 |
| 建物名・部屋番号 |
グランソフィア川口東領家 A号棟 |
ペット |
相談 |
| リフォーム履歴 |
- |
| リノベーション履歴 |
- |
| 備考 |
賃貸保証等:加入要(期間:2年 初回保証料:総賃料の100% 継続保証料:1年毎に賃料の15%)
管理形態/管理員の勤務形態:-/-
短期解約時違約金有り(1年未満/賃料の1ヶ月分)。退去時ハウスクリーニング費用(105,000円税別)借主負担。町会費発生時、借主の加入と負担有り。ペット飼育時、敷金1ヶ月分の積み増し有り(種類・頭数は相談可)。
|
| エネルギー消費性能 |
★★(削減率10%達成) |
| 断熱性能 |
5段階/7段階中 |
| 目安光熱費 |
- |
| バス・トイレ |
バス・トイレ別、浴室暖房、浴室乾燥機、オートバス、追焚機能、シャワー付洗面化粧台、洗面所独立、洗面所、洗面台、シャワー、温水洗浄便座、トイレ |
| キッチン |
カウンターキッチン、システムキッチン、IHクッキングヒーター、3口以上コンロ、グリル |
| セキュリティー |
モニター付インターホン |
| 収納 |
全居室収納、クローゼット、床下収納 |
| 設備・サービス |
室内洗濯機置場、給湯、全居室フローリング、プロパンガス、エアコン、照明器具 |
| TV・通信 |
- |
| その他 |
バイク置き場、バルコニー、駐輪場 |
| 契約期間 |
2年 |
現況 |
居住中 |
| 条件等 |
- |
入居可能時期 |
2026年3月上旬予定 |
| 更新料 |
新賃料 1ヶ月 |
物件番号 |
6989122923 |
| 情報公開日 |
2026年1月17日 |
次回更新予定日 |
2026年1月31日 |
| ケータイ用バーコード |
- スマートフォンでこの物件を見る
- スマートフォンからもこの物件をご覧になれます。
|
※「-」と表示されている項目については、情報提供会社にご確認ください。
| 周辺施設 |
ファミリーマート川口東領家店 |
| 距離 |
475m |
| 周辺施設 |
足立区立鹿浜こども園第二園舎 |
| 距離 |
1152m |
ここから簡単にお問い合わせをすることができます。
(SSLでの暗号化での送信を希望されるお客さまは
こちら
よりお問い合わせください)
お問い合わせを行う前に
「個人情報の取り扱いについて」を必ずお読みください。
「個人情報の取り扱いについて」に同意いただいた場合は「上記にご同意の上 確認画面へ進む」のボタンをクリックしてください。
個人情報の取り扱いについて
皆さまが送付された個人情報はアットホーム(株)のサーバを経由し、お問い合わせ先の不動産会社にメールまたはFAXにて転送されるためアットホーム(株)にも保管されます。アットホーム(株)で保管された個人情報の取り扱いについては、【こちら】をご覧ください。
また、本画面でご記入いただいた個人情報は、お問い合わせ先の不動産会社でも保管します。 お問い合わせ先の不動産会社が保管する個人情報の取り扱いについては、不動産会社に直接お問い合わせください。
埼玉県知事免許(5)第20211号 |
|---|
- 交通:
- JR京浜東北線/西川口駅 徒歩5分
- 埼玉県川口市並木2丁目7-16
- TEL:
- 048-253-3331
- FAX:
- 048-253-3307
- 所属団体:
- (公社)埼玉県宅地建物取引業協会会員(公社)首都圏不動産公正取引協議会加盟
取引態様:仲介  - 00013436
|
- スマートフォンで
この不動産会社を見る

|
- 提携サイト等より掲載されている物件情報につきましては、不動産会社詳細情報にリンクされていないものがあります。
- 物件に関するお問合せは、物件詳細ページの「情報提供会社」に表示されている不動産会社へ直接お願いいたします。
- 間取図は、現況を優先させていただきます。
- 映像は物件の一部を撮影したものです。物件の契約にあたっての最終判断はご自身の判断に基づいて行ってください。
- 仲介手数料について

アットホームは物件情報の適正化に努めております。
内容に誤りがある場合にはこちらへご連絡ください。