東京都大田区東糀谷2丁目(大鳥居駅)の賃貸:物件詳細
交通 所在地 |
駅徒歩 |
賃料 管理費等 |
敷金/保証金 礼金 |
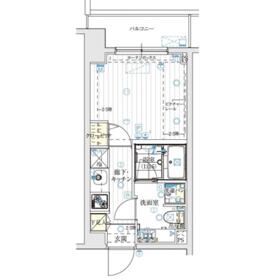
間取り 面積 |
物件種目 築年月 |
|
京急空港線/大鳥居
東京都大田区東糀谷2丁目
|
4分
|
8.3万円
10,000円
|
1ヶ月 / なし
1ヶ月
|
1K
20.15m²
|
賃貸マンション
2012年10月(築13年5ヶ月)
|
ペット相談、分譲タイプ、常時ゴミ出し可能、高齢者相談、24時間セキュリティー、24時間換気システム、閑静な住宅街、外観タイル張り、保証人不要
|
|
間取図
|
|
<
その他の画像
>
|
| 交通 | 京急空港線 大鳥居駅 徒歩4分 |
|---|
| その他の交通 | 京急空港線 穴守稲荷駅 徒歩10分 東京モノレール 天空橋駅 徒歩17分 |
| 所在地 |
東京都大田区東糀谷2丁目
|
| 物件種目 |
賃貸マンション |
| 賃料 |
8.3万円 |
管理費等 |
10,000円 |
| 敷金 / 保証金 |
1ヶ月 / なし |
礼金 |
1ヶ月 |
| 敷引 |
- |
保証金償却 |
- |
| その他一時金 |
Eリリーブ:27,500円、鍵交換代等:33,000円~ |
保険等 |
要 2年 23,000円 フレックス少額短期 |
| 維持費等 |
- |
| 間取り |
1K |
専有面積 |
20.15m² |
| 築年月 |
2012年10月(築13年5ヶ月)
|
階建 / 階 |
10階建 / 3階 |
| 建物構造 |
RC |
総戸数 |
- |
| 主要採光面 |
北 |
駐車場 |
- |
| バイク置き場 |
有 |
駐輪場 |
有 |
| 建物名・部屋番号 |
ル・リオン大鳥居 315 |
ペット |
小型犬可・ 猫可・ 犬敷+1ヶ月、猫敷+1.5ヶ月 |
| リフォーム履歴 |
- |
| リノベーション履歴 |
- |
| 備考 |
賃貸保証等:利用可(Casa。初回保証料50%~65%)
管理形態/管理員の勤務形態:-/-
単身者限定
|
| エネルギー消費性能 |
- |
| 断熱性能 |
- |
| 目安光熱費 |
- |
| バス・トイレ |
バス・トイレ別、浴室暖房、浴室乾燥機、洗面所独立、洗面所、洗面台、シャワー、温水洗浄便座、タンクレストイレ、トイレ |
| キッチン |
システムキッチン、2口コンロ、ガスコンロ付、グリル |
| セキュリティー |
オートロック、モニター付インターホン、ダブルロックドア、防犯カメラ、火災警報器(報知機) |
| 収納 |
収納スペース、クローゼット、シューズボックス |
| 設備・サービス |
室内洗濯機置場、二重床、給湯、全居室フローリング、フローリング、都市ガス、エアコン、暖房、冷房 |
| TV・通信 |
インターネット対応、光ファイバー、ケーブルTV、CS、BS端子 |
| その他 |
宅配BOX、バイク置き場、バルコニー、駐輪場、エレベーター |
| 契約期間 |
2年 |
現況 |
空家 |
| 条件等 |
- |
入居可能時期 |
相談 |
| 更新料 |
新賃料 1.5ヶ月 |
物件番号 |
6989153819 |
| 情報公開日 |
2026年1月20日 |
次回更新予定日 |
2026年2月17日 |
| ケータイ用バーコード |
- スマートフォンでこの物件を見る
- スマートフォンからもこの物件をご覧になれます。
|
※「-」と表示されている項目については、情報提供会社にご確認ください。
ここから簡単にお問い合わせをすることができます。
(SSLでの暗号化での送信を希望されるお客さまは
こちら
よりお問い合わせください)
お問い合わせを行う前に
「個人情報の取り扱いについて」を必ずお読みください。
「個人情報の取り扱いについて」に同意いただいた場合は「上記にご同意の上 確認画面へ進む」のボタンをクリックしてください。
個人情報の取り扱いについて
皆さまが送付された個人情報はアットホーム(株)のサーバを経由し、お問い合わせ先の不動産会社にメールまたはFAXにて転送されるためアットホーム(株)にも保管されます。アットホーム(株)で保管された個人情報の取り扱いについては、【こちら】をご覧ください。
また、本画面でご記入いただいた個人情報は、お問い合わせ先の不動産会社でも保管します。 お問い合わせ先の不動産会社が保管する個人情報の取り扱いについては、不動産会社に直接お問い合わせください。
東京都知事免許(2)第105536号 |
|---|
- 交通:
- JR京浜東北線/蒲田駅 徒歩3分
- 東京都大田区蒲田5丁目4-8
- TEL:
- 03-5877-9819
- FAX:
- 03-6320-0682
- 所属団体:
- (公社)東京都宅地建物取引業協会会員(公社)首都圏不動産公正取引協議会加盟
取引態様:仲介  - 00269207
|
- スマートフォンで
この不動産会社を見る

|
- 提携サイト等より掲載されている物件情報につきましては、不動産会社詳細情報にリンクされていないものがあります。
- 物件に関するお問合せは、物件詳細ページの「情報提供会社」に表示されている不動産会社へ直接お願いいたします。
- 間取図は、現況を優先させていただきます。
- 映像は物件の一部を撮影したものです。物件の契約にあたっての最終判断はご自身の判断に基づいて行ってください。
- 仲介手数料について

アットホームは物件情報の適正化に努めております。
内容に誤りがある場合にはこちらへご連絡ください。